Valutazione immobiliare indipendente, accurata e gratuita
Appartamento in vendita a Riccione in zona Centro Storico a 1.265.000 € (cod.64f55af0)
Caasa non ha sufficienti informazioni per commentare l'appartamento a Riccione in zona Centro Storico - 64f55af0.
Analisi immobiliare
I dati in posseso di Caasa per quest'immobile sono insufficienti, inaffidabili o contraddittori per proporre un'analisi attendibile.
Mercato immobiliare a Riccione
Per quanto riguarda più in generale la città di Riccione, sono presenti al momento ben oltre mille annunci per
appartamenti in vendita (meno di un terzo dell'intera provincia)
e il maggior numero di annunci per questa tipologia sono relativi alla zona di Alba, mentre nella zona di Centro Storico è presente un numero significativamente inferiore di annunci.
La richiesta media nella zona dove sorge l'appartamento (Centro Storico pressi Viale Maria Ceccarini) è pari a
5.420 €/m² e ne fa la più pregiata della città .
Per quanto riguarda la dinamica dei prezzi, negli ultimi 6 mesi i prezzi medi in tutta la città per appartamenti in vendita sono
sostanzialmente stabili (+0,87%).
NOVITÀ Il risultato che vedi dipende dai dati che siamo riusciti ad estrarre dall'annuncio: ottieni una stima più accuranta di questo immobile, inserendo dati più precisi.
N.B. L'Opinione di Caasa® è un servizio sperimentale realizzato tramite tecniche di Intelligenza Artificiale, fornito senza alcuna garanzia di correttezza e completezza. Leggi il disclaimer o segnalaci un problema.
IMMAGINI
IN SINTESI
PROPOSTO DA:
Facile Rogitare
DESCRIZIONE
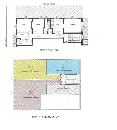
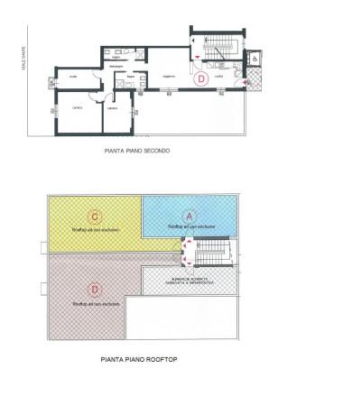
di nuova costruzione con posto auto con garage con terrazza con balcone di nuova costruzione con ascensore con cucina abitabile
A soli 50 metri da Viale Ceccarini, cuore pulsante di Riccione, tra boutique eleganti, ristoranti raffinati e a pochi passi dal mare, prende vita un progetto residenziale che unisce stile, tecnologia e comfort in pieno centro: Ceccarini Square | Luxury Home. In una delle zone più ambite della città, questa nuova residenza contemporanea ospita solo quattro unità abitative, tutte in vendita singolarmente. Ogni appartamento è progettato per offrirti un’esperienza abitativa di alto livello, con finiture di lusso, impianti di ultima generazione, box o posto auto di proprietà e consegna prevista per l’estate 2026. APPARTAMENTO A – € 1.170.000 Al primo piano con ascensore, questo appartamento ti accoglie con un ampio soggiorno illuminato da una splendida vetrata affacciata su Piazzale Ceccarini, una cucina abitabile, tre camere da letto,di cui due matrimoniali e due bagni finestrati. Due balconi completano l’abitazione, insieme ad una terrazza privata di 45 mq, ideale per rilassarti all’aperto, con vista mare. A disposizione un posto auto coperto di proprietà. Superficie commerciale: 149,39 mq. APPARTAMENTO B – € 1.150.000 Sempre al primo piano, questa soluzione dispone di un soggiorno, cucina abitabile, tre camere, di cui due matrimoniali, due bagni di cui uno finestrato e due balconi. Si distingue per l’incredibile terrazza privata di 45 mq, perfetta per i tuoi momenti all’aperto in totale privacy. Dispone inoltre di un comodo box auto. Superficie commerciale: 140,43 mq. APPARTAMENTO C – € 1.265.000 Al piano attico, il salone si apre su una scenografica vetrata con affaccio su Piazzale Ceccarini. La cucina è abitabile, le camere da letto sono tre, di cui due matrimoniali, con doppi servizi entrambi finestrati. Due balconi ti collegano all’esterno, ma il vero valore aggiunto è la terrazza privata di circa 55 mq con vista mare. Box di proprietà incluso. Superficie commerciale: 157,42 mq. APPARTAMENTO D – € 1.250.000 Anche questo al piano attico, con ampi spazi interni: salone, cucina abitabile, tre camere di cu[…]

