Valutazione immobiliare indipendente, accurata e gratuita
L'Opinione di Caasa® per l'appartamento in vendita a Riccione a 453.000 € (cod.64f305d7)
Secondo Caasa, per l'appartamento in vendita a Riccione, la richiesta di 453.000 € è significativamente vantaggiosa rispetto agli annunci simili.
Analisi immobiliare
L'appartamento, situato nella zona OMI C4, è proposto in vendita a
453.000 € per una
superficie commerciale di
91 m² e quindi ad un prezzo per metro quadrato pari a
4978 €/m²
.
Tale valore
è decisamente inferiore a quello stimato da Caasa per immobili in vendita simili per tipologia, caratteristiche, classe energetica e localizzati nella stessa zona OMI, che è compreso tra
5.562 €/m² e
5.925 €/m².
La conoscenza con buona approssimazione della localizzazione dell'immobile ha consentito di utilizzare come raffronto i dati medi elaborati esattamente nella zona OMI di appertenenza (ZONA COMPRESA TRA LA FERROVIA E SS.16 DA MARANO ALLE TERME). Inoltre, Caasa ha potuto affinare la stima anche con la conoscenza della classe energetica (A+) oltre che dello stato dell'immobile (di nuova costruzione) e di alcune caratteristiche significative come il garage. Per i motivi esposti i valori accettabili per l'offerta costituiscono un intervallo abbastanza limitato.
Mercato immobiliare a Riccione
Per quanto riguarda più in generale la città di Riccione, sono presenti al momento ben oltre mille annunci per
appartamenti in vendita (meno di un terzo dell'intera provincia)
e il maggior numero di annunci per questa tipologia sono relativi alla zona di Alba.
La dinamica dei prezzi in tutta la città mostra che negli ultimi 6 mesi, i prezzi per appartamenti in vendita sono
sostanzialmente stabili (+0,67%).
NOVITÀ Il risultato che vedi dipende dai dati che siamo riusciti ad estrarre dall'annuncio: ottieni una stima più accuranta di questo immobile, inserendo dati più precisi.
N.B. L'Opinione di Caasa® è un servizio sperimentale realizzato tramite tecniche di Intelligenza Artificiale, fornito senza alcuna garanzia di correttezza e completezza. Leggi il disclaimer o segnalaci un problema.
IMMAGINI
IN SINTESI
PROPOSTO DA:
Noi Immobiliare
DESCRIZIONE
di nuova costruzione con posto auto con garage di nuova costruzione con termocondizionamento con angolo cottura con riscaldamento autonomo
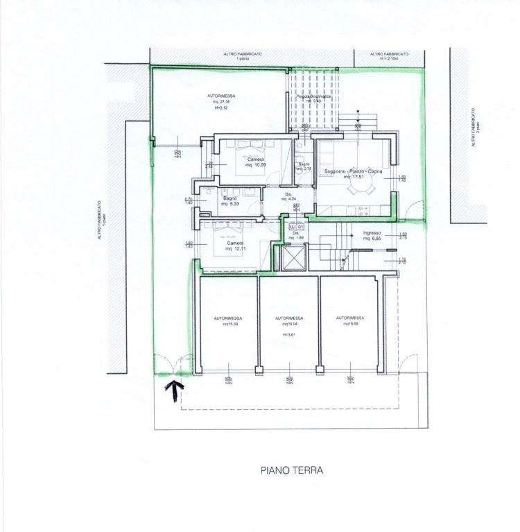
A2-242SV1 Noi Immobiliare, propone in vendita a Riccione in via Santarosa zona Paese, un trilocale in fase di realizzazione, in una palazzina residenziale che sarà composta da quattro unità immobiliari in L'immobile è composto da un living con angolo cottura, due camere da letto, di cui ,una matrimoniale, bagno e disimpegno. L'appartamento ha un ingresso principale dal vano scala e un secondo ingresso al quale si accede dalla corte privata collegata al garage. La soluzione verrà venduta alla carta con previsione di completamento lavori fine 2026 e il capitolato già completato, sarà fornito dall'agenzia. L'appartamento ha in dotazione: Classe En. A4, termo-cappotto Ivas 14 cm, infissi Wall Luxor Alu& Wood con oscuranti New Solar, sezione elettrica, impianto fotovoltaico 2,1 kw con gestione da smartphone, predisposizione allarme e video sorveglianza, riscaldamento autonomo con generatore costituito da pompa di calore alimentata elettricamente con riscaldamento interno a pannelli radianti a pavimento, VMC ventilazione meccanica controllata, aria condizionata. Scelta su campionario pavimentazione legno e gres porcellanato massivo B-Ticino. Per informazioni e visite contattare 375 873 8242 - Stefano V.1 Noi Immobiliare, propone in vendita a Riccione in via Santarosa zona Paese, un trilocale in fase di realizzazione, in una palazzina residenziale che sarà composta da quattro unità immobiliari in L'immobile è composto da un living con angolo cottura, due camere da letto, di cui ,una matrimoniale, bagno e disimpegno. L'appartamento ha un ingresso principale dal vano scala e un secondo ingresso al quale si accede dalla corte privata collegata al garage. La soluzione verrà venduta alla carta con previsione di completamento lavori fine 2026 e il capitolato già completato, sarà fornito dall'agenzia. L'appartamento ha in dotazione: Classe En. A4, termo-cappotto Ivas 14 cm, infissi Wall Luxor Alu& Wood con oscuranti New Solar, sezione elettrica, impianto fotovoltaico 2,1 kw con gestione da smartphone, predisposizione[…]


