Valutazione immobiliare indipendente, accurata e gratuita
Appartamento in vendita a Riccione a 828.000 € (cod.64f305cc)
Caasa non ha sufficienti informazioni per commentare l'appartamento in vendita a Riccione - 64f305cc.
Analisi immobiliare
I dati in posseso di Caasa per quest'immobile sono insufficienti, inaffidabili o contraddittori per proporre un'analisi attendibile.
Mercato immobiliare a Riccione
Per quanto riguarda più in generale la città di Riccione, sono presenti al momento ben oltre mille annunci per
appartamenti in vendita (meno di un terzo dell'intera provincia)
e il maggior numero di annunci per questa tipologia sono relativi alla zona di Alba.
Per quanto riguarda la dinamica dei prezzi, negli ultimi 6 mesi i prezzi medi in tutta la città per appartamenti in vendita sono
in debole aumento (+1,55%).
NOVITÀ Il risultato che vedi dipende dai dati che siamo riusciti ad estrarre dall'annuncio: ottieni una stima più accuranta di questo immobile, inserendo dati più precisi.
N.B. L'Opinione di Caasa® è un servizio sperimentale realizzato tramite tecniche di Intelligenza Artificiale, fornito senza alcuna garanzia di correttezza e completezza. Leggi il disclaimer o segnalaci un problema.
IMMAGINI
IN SINTESI
PROPOSTO DA:
Noi Immobiliare
DESCRIZIONE
di nuova costruzione con posto auto con garage con terrazza con balcone di nuova costruzione con cantina con termocondizionamento con ascensore con angolo cottura con riscaldamento autonomo
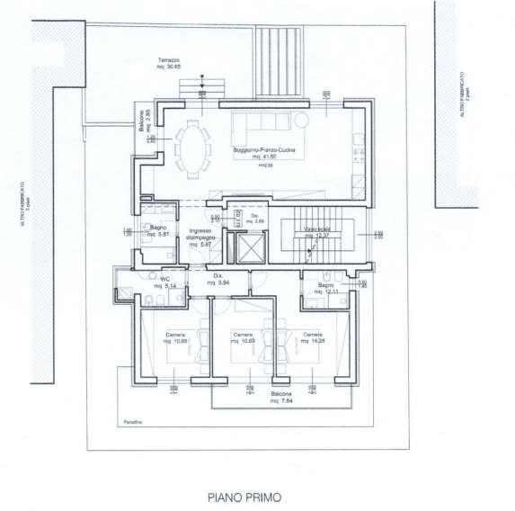
Rif.A3-134SV1 Noi Immobiliare, propone in vendita a Riccione in via Santarosa zona Paese, un quadrilocale in fase di realizzazione, in una palazzina residenziale che sarà composta da quattro unità immobiliari in L'immobile è sito al primo piano servito da ascensore ed è composto da: un ampio living con angolo cottura di oltre 40 mq con accesso al terrazzo esposto ad ovest di 30 mq, tre camere di cui una matrimoniale, tre bagni, disimpegno, due balconi, garage e cantina. L'appartamento verrà venduto alla carta con previsione di completamento lavori fine 2026 e il capitolato già completato, sarà fornito dall'agenzia ed è dotato di: classe A4, termo-cappotto Ivas 14 cm, infissi Wall Luxor Alu&Wood con oscuranti New Solar, scelta su campionario pavimentazione legno e gres porcellanato massivo B-Ticino sezione elettrica, impianto fotovoltaico 2,1 kw con gestione da smartphone, predisposizione allarme e videosorveglianza, riscaldamento autonomo con generatore costituito da pompa di calore alimentata elettricamente con riscaldamento interno a pannelli radianti a pavimento, VMC ventilazione meccanica controlla., aria condizionata. Per informazioni e visite contattare 375 873 8242 - Stefano V

