Valutazione immobiliare indipendente, accurata e gratuita
Appartamento in vendita a Riccione in zona Centro Storico a 350.000 € (cod.64e451c5)
Caasa non ha sufficienti informazioni per commentare l'appartamento a Riccione in zona Centro Storico - 64e451c5.
Analisi immobiliare
I dati in posseso di Caasa per quest'immobile sono insufficienti, inaffidabili o contraddittori per proporre un'analisi attendibile.
Mercato immobiliare a Riccione
Per quanto riguarda più in generale la città di Riccione, sono presenti al momento ben oltre mille annunci per
appartamenti in vendita (meno di un terzo dell'intera provincia)
e il maggior numero di annunci per questa tipologia sono relativi alla zona di Alba, mentre nella zona di Centro Storico è presente un numero significativamente inferiore di annunci.
La richiesta media nella zona dove sorge l'appartamento (Centro Storico pressi Viale Antonio Gramsci) è pari a
5.400 €/m² e ne fa la più pregiata della città .
Relativamente alla dinamica dei prezzi, possiamo dire che negli ultimi 6 mesi i prezzi medi in tutta la città per appartamenti in vendita sono
sostanzialmente stabili (+0,67%).
NOVITÀ Il risultato che vedi dipende dai dati che siamo riusciti ad estrarre dall'annuncio: ottieni una stima più accuranta di questo immobile, inserendo dati più precisi.
N.B. L'Opinione di Caasa® è un servizio sperimentale realizzato tramite tecniche di Intelligenza Artificiale, fornito senza alcuna garanzia di correttezza e completezza. Leggi il disclaimer o segnalaci un problema.
IMMAGINI
IN SINTESI
PROPOSTO DA:
IMMOBILIARE ABISSINIA
Viale Antonio Gramsci, 194, Riccione (RN)
Verificata da Caasa®
DESCRIZIONE
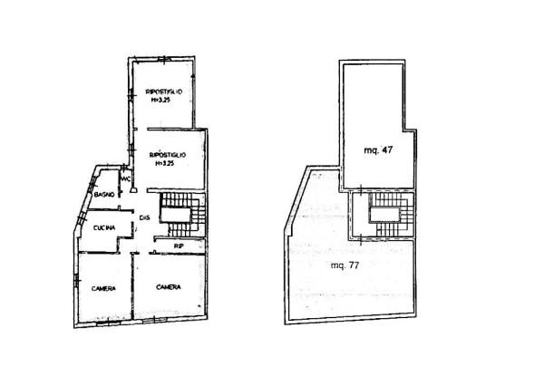
da ristrutturare con posto auto con garage con cantina da ristrutturare
RICCIONE PAESE, app. indipendente 130mq + garage 20mq In zona centrale nel cuore del Paese proponiamo appartamento indipendente di ampia metratura con garage. . L'immobile è composto come segue: ingresso indipendente livello strada, corridoio con 2 ripostigli, scala interna porta al 1° piano, disimpegno, 3 camere, 1 bagno e 1 bagnetto di servizio, cucina, soggiorno, dal vano ripostiglio di accede al sottotetto di pari metratura attualmente grezzo non sfruttato. Completa sul retro dell'immobile un comodo garage di 20mq. . L'immobile è completamente da ristrutturare ma ha un'ottima metratura interna untile anche per valutare la divisone in due appartamenti. Posizione centrale, mentratura ampia e indipendenza sono i punti forte dell'appartamento! Possibilità di creare 2 appartamenti! . LIBERO SUBITO! da vedere. . IMMOBILIARE ABISSINIA RICCIONE Viale Gramsci 194 Riccione FISSA ORA IL TUO APPUNTAMENTO DI VISITA CHIAMA IL 338 3219842 o 0541 414231 Contattaci anche per una valutazione senza


