Valutazione immobiliare indipendente, accurata e gratuita
L'Opinione di Caasa® per l'appartamento in vendita a Riccione a 265.000 € (cod.64e3cfad)
Secondo Caasa, per l'appartamento in vendita a Riccione, la richiesta di 265.000 € è leggermente vantaggiosa rispetto agli annunci simili.
Analisi immobiliare
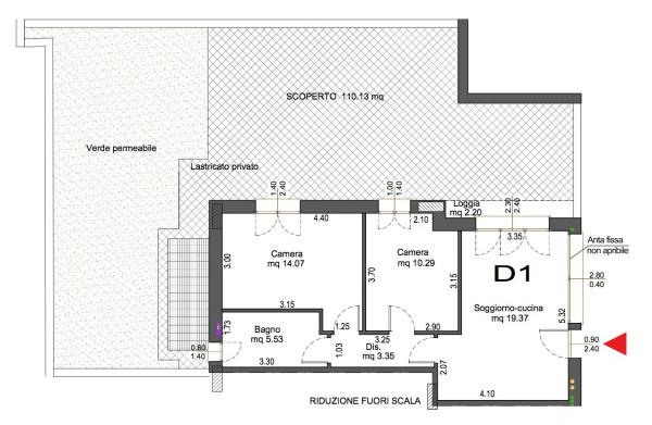
L'appartamento, situato nella zona OMI D2, è proposto in vendita a
265.000 € per una
superficie commerciale di
88 m² e quindi ad un prezzo per metro quadrato pari a
3011 €/m²
.
Tale prezzo
è di poco inferiore a quello stimato da Caasa per immobili in vendita simili per tipologia e caratteristiche e localizzati nella stessa zona OMI, che è compreso tra
3.246 €/m² e
3.568 €/m².
Grazie alla conoscenza con buona approssimazione della localizzazione dell'immobile, è stato possibile utilizzare come raffronto i dati medi elaborati esattamente nella zona OMI di appertenenza (ZONA A MONTE DELLA STATALE). Anche se Caasa non è riuscita a determinare la classe energetica, ad affinare la stima ha contribuito anche la presenza di alcune caratteristiche significative come il garage. Per queste ragioni i valori accettabili per l'offerta costituiscono un intervallo relativamente limitato.
Mercato immobiliare a Riccione
Per quanto riguarda più in generale la città di Riccione, sono presenti al momento ben oltre mille annunci per
appartamenti in vendita (meno di un terzo dell'intera provincia)
e il maggior numero di annunci per questa tipologia sono relativi alla zona di Alba.
Relativamente alla dinamica dei prezzi, possiamo dire che negli ultimi 6 mesi i prezzi medi in tutta la città per appartamenti in vendita sono
sostanzialmente stabili (+0,67%).
NOVITÀ Il risultato che vedi dipende dai dati che siamo riusciti ad estrarre dall'annuncio: ottieni una stima più accuranta di questo immobile, inserendo dati più precisi.
N.B. L'Opinione di Caasa® è un servizio sperimentale realizzato tramite tecniche di Intelligenza Artificiale, fornito senza alcuna garanzia di correttezza e completezza. Leggi il disclaimer o segnalaci un problema.
IMMAGINI
IN SINTESI
PROPOSTO DA:
PESARESI DANIELA
DESCRIZIONE
con posto auto con garage con terrazza con giardino con termocondizionamento con angolo cottura
Appartamento in Vendita: Splendida soluzione a breve distanza da Riccione. Situato in una piccola palazzina all'interno di un tranquillo condominio, questo appartamento al piano terra offre tutto il comfort di cui hai bisogno. Con una superficie di c […]
