Valutazione immobiliare indipendente, accurata e gratuita
Appartamento in vendita a Riccione in zona Alba a 440.000 € (cod.64e3cf47)
Caasa non ha sufficienti informazioni per commentare l'appartamento in vendita a Riccione in zona Alba - 64e3cf47.
Analisi immobiliare
I dati in posseso di Caasa per quest'immobile sono insufficienti, inaffidabili o contraddittori per proporre un'analisi attendibile.
Mercato immobiliare a Riccione
Per quanto riguarda più in generale la città di Riccione, sono presenti al momento ben oltre mille annunci per
appartamenti in vendita (meno di un terzo dell'intera provincia)
e il maggior numero di annunci per questa tipologia sono relativi proprio alla zona di Alba.
La richiesta media nella zona dove sorge l'appartamento (Alba pressi Viale Catullo) è pari a
4.815 €/m², molto vicina ai valori della zona Centro Storico che sono i più alti della città .
La dinamica dei prezzi in tutta la città mostra che negli ultimi 6 mesi, i prezzi per appartamenti in vendita sono
sostanzialmente stabili (+0,67%).
NOVITÀ Il risultato che vedi dipende dai dati che siamo riusciti ad estrarre dall'annuncio: ottieni una stima più accuranta di questo immobile, inserendo dati più precisi.
N.B. L'Opinione di Caasa® è un servizio sperimentale realizzato tramite tecniche di Intelligenza Artificiale, fornito senza alcuna garanzia di correttezza e completezza. Leggi il disclaimer o segnalaci un problema.
IMMAGINI
IN SINTESI
PROPOSTO DA:
PESARESI DANIELA
DESCRIZIONE
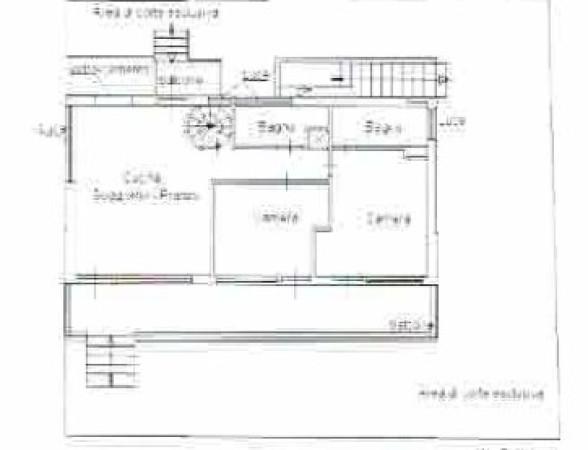
con posto auto con terrazza con balcone con cantina
RICCIONE ALBA MARE A due passi dal mare vi propomiamo in villetta bifamiliare appartamento sito al piano rialzato con ingresso indipendente. Ha una corte privata e un posto auto. Libero su quattro lati. L'ingresso è al piano rialzato con balcone. L' appartamento si compone di un soggiorno-pranzo, due camere da letto, due bagni una scala a chiocciola che collega il piano interrato con tavernetta e ripostiglio arredato con vano caldaia e bagno. Richiesta € 440.000 Nostro Riferimento A343 Non perdere l'occasione di visitare questo luminoso appartamento, richiedi subito un appuntamento! Per ulteriori informazioni o chiarimenti potete contattare l'Agenzia Immobiliare TRONI e PESARESI con sede a Riccione Via Catullo, 21 Riccione (RN) sarà lieta di fornirti tutte le informazioni necessarie e organizzare una visita. Ufficio 0541 692472 Daniela 329 2230012 info@immobiliarepesaresi.it. sito www.immobiliarepesaresi.it Giulio 347 5308724


