Valutazione immobiliare indipendente, accurata e gratuita
Negozio in vendita a Bellaria-Igea Marina in zona Igea Marina a 1.250.000 € (cod.6502b138)
Caasa non ha sufficienti informazioni per commentare il negozio a Bellaria-Igea Marina in zona Igea Marina - 6502b138.
Analisi immobiliare
I dati in posseso di Caasa per quest'immobile sono insufficienti, inaffidabili o contraddittori per proporre un'analisi attendibile.
Mercato immobiliare a Bellaria-Igea Marina
Per quanto riguarda più in generale la città di Bellaria-Igea Marina, sono presenti al momento più di cento annunci per
negozi in vendita (meno del 10% dell'intera provincia)
e il maggior numero di annunci per questa tipologia sono relativi proprio alla zona di Igea Marina.
Vedi altre informazioni direttamente su
Mercato-Immobiliare.info
NOVITÀ Il risultato che vedi dipende dai dati che siamo riusciti ad estrarre dall'annuncio: ottieni una stima più accuranta di questo immobile, inserendo dati più precisi.
N.B. L'Opinione di Caasa® è un servizio sperimentale realizzato tramite tecniche di Intelligenza Artificiale, fornito senza alcuna garanzia di correttezza e completezza. Leggi il disclaimer o segnalaci un problema.
IMMAGINI
IN SINTESI
PROPOSTO DA:
Chiodi Immobiliare Ing. Simone Chiodi
DESCRIZIONE
di recente costruzione con terrazza con balcone con cantina con ascensore di recente ristrutturazione di recente costruzione con termocondizionamento
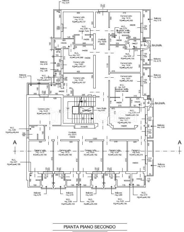
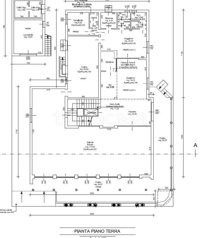
Vendita muri Hotel. Hotel 3 stelle in ottimo stato manutentivo con 38 CAMERE ubicato a BELLARIA IGEA MARINA, VISTA MARE. FATTURATI ALTI E VISIONABILI. PLANIMETRIE ALLEGATE. Si sonsiglia di visionare la planimetrie allegate all'annuncio per rendersi conto della suddivisione interna. Chiodi Immobiliare propone in vendita un ESCLUSIVO Hotel 3 stelle IN OTTIMO STATO MANUTENTIVO, SEMPRE MANUTENTATO E RISTRUTTURATO A 100 METRI DAL MARE. La struttura alberghiera è ubicata a 100 metri dalla spiaggia, questo comporta che MOLTE camere VEDONO IL MARE. Suddivisa in 4 piani fuori terra e 38 CAMERE TUTTE CON BOX DOCCIA e riscaldamento nei bagni, servite da comodo ascensore. ATTUALMENTE LICENZA STAGIONALE. Possibilità di adibire molte CAMERE a TRIPLE E QUADRUPLE, in quanto tutte di grandi dimensioni. Visionare le planimetrie allegate con le aree interne calpestabili. Al piano quarto, raggiungibile sempre con ascensore sono presenti 2/3 camere SOLO PER IL PERSONALE, queste camere esulano dalle 38 naturalmente. L'hotel ha goduto di diverse ristrutturazioni INTERNE ED ESTERNE negli anni, ed ora è in OTTIMO STATO MANUTENTIVO. La struttura è sempre stata in attività, gestito sempre dalla proprietà, gode di OTTIME RECENSIONI e FATTURATI ALTI E VISIONABILI. La proprietà ha gestito sempre a pensione completa. In particolare, architettonicamente l'hotel risulta cosi composto: - Al Piano seminterrato è presente una piccola Cantina ; - Il Piano terra suddiviso attualmente in ingresso-hall, ufficio, grande sala da pranzo, cucina, spogliatoi, dispense e bagni. In corpo staccato risulta presente una lavanderia; - Il piano primo e secondo risultano rispettivamente coposti da 13 camere con balcone, bagni in ottimo stato manutentivo con box doccia e riscaldati; - Il piano terzo risulta composto di 12 camere con balcone, bagni in ottimo stato manutentivo con box doccia e riscaldati; - Il piano quarto risulta composto di vani adibiti a camere del pesronale, vani tecnici e un ampio terrazzo vista mare. Si sonsiglia di visionare la planimet[…]

