Valutazione immobiliare indipendente, accurata e gratuita
L'Opinione di Caasa® per la casa indipendente in vendita a Vezzano sul Crostolo in zona Villa a 280.000 € (cod.6545b003)
Secondo Caasa, per la casa indipendente a Vezzano sul Crostolo Villa, la richiesta di 280.000 € è leggermente vantaggiosa rispetto agli annunci simili.
Analisi immobiliare
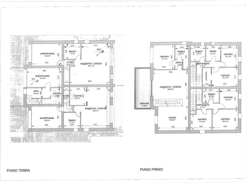
La casa indipendente, situata nella zona OMI B2, è proposta in vendita a
280.000 € per una
superficie commerciale di
153 m² e quindi ad un prezzo per metro quadrato pari a
1830 €/m²
.
Tale valore
è leggeremente più conveniente di quello stimato da Caasa per immobili in vendita simili per tipologia e caratteristiche e localizzati nella stessa zona OMI, che è compreso tra
2.000 €/m² e
2.144 €/m².
Grazie alla conoscenza con buona approssimazione della localizzazione dell'immobile, è stato possibile utilizzare come raffronto i dati medi elaborati esattamente nella zona OMI di appertenenza (CAPOLUOGO - CENTRO URBANO) per case indipendenti (da 1.105 €/m² a 1.960 €/m²) e per ville (da 1.325 €/m² a 2.250 €/m²). Anche se Caasa non è riuscita a determinare la classe energetica, ad affinare la stima hanno contribuito anche lo stato dell'immobile (di nuova costruzione) e la presenza di alcune caratteristiche significative come il garage. Per queste considerazioni i valori accettabili per l'offerta costituiscono un intervallo relativamente limitato.
Mercato immobiliare a Vezzano sul Crostolo
Per quanto riguarda più in generale il comune di Vezzano sul Crostolo, sono presenti al momento circa cento annunci per
case indipendenti in vendita (meno del 5% dell'intera provincia) .
La richiesta media nella zona dove sorge la casa indipendente (Villa) è pari a
1.560 €/m² che la rende la più economica del comune .
La dinamica dei prezzi in tutto il comune mostra che negli ultimi 6 mesi, i prezzi per case indipendenti in vendita sono
in forte aumento (+21,31%).
NOVITÀ Il risultato che vedi dipende dai dati che siamo riusciti ad estrarre dall'annuncio: ottieni una stima più accuranta di questo immobile, inserendo dati più precisi.
N.B. L'Opinione di Caasa® è un servizio sperimentale realizzato tramite tecniche di Intelligenza Artificiale, fornito senza alcuna garanzia di correttezza e completezza. Leggi il disclaimer o segnalaci un problema.
IMMAGINI
IN SINTESI
PROPOSTO DA:
STUDIO DUGONI IMMOBILIARE
