Valutazione immobiliare indipendente, accurata e gratuita
L'Opinione di Caasa® per la casa indipendente in vendita a Vezzano sul Crostolo in zona Villa a 325.000 € (cod.65445206)
Secondo Caasa, per la casa indipendente a Vezzano sul Crostolo Villa, la richiesta di 325.000 € è leggermente svantaggiosa rispetto agli annunci simili.
Analisi immobiliare
La casa indipendente, situata nella zona OMI R3, è proposta in vendita a
325.000 € per una
superficie commerciale di
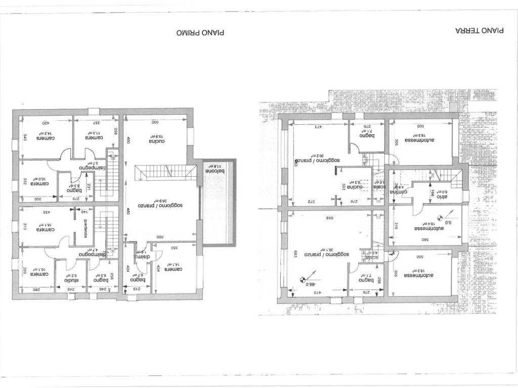
177 m² e quindi ad un prezzo per metro quadrato pari a
1836 €/m²
.
Questo prezzo
è di poco superiore a quello stimato da Caasa per immobili in vendita simili per tipologia e caratteristiche e localizzati nella stessa zona OMI, che è compreso tra
1.587 €/m² e
1.745 €/m².
Grazie alla conoscenza con buona approssimazione della localizzazione dell'immobile, è stato possibile utilizzare come raffronto i dati medi elaborati esattamente nella zona OMI di appertenenza (TERRITORIO RURALE E FRAZIONI MINORI) per case indipendenti (da 1.055 €/m² a 1.895 €/m²) e per ville (da 1.290 €/m² a 2.240 €/m²). Anche se Caasa non è riuscita a determinare la classe energetica, ad affinare la stima hanno contribuito anche lo stato dell'immobile (di nuova costruzione) e la presenza di alcune caratteristiche significative come il garage. Per queste ragioni l'intervallo dei valori accettabili per l'offerta è relativamente limitato.
Mercato immobiliare a Vezzano sul Crostolo
Per quanto riguarda più in generale il comune di Vezzano sul Crostolo, sono presenti al momento circa cento annunci per
case indipendenti in vendita (meno del 5% dell'intera provincia) .
Per quanto riguarda la richiesta media in zona Villa, dove sorge la casa indipendente, essa è pari a circa
1.500 €/m² per case indipendenti in vendita.
Possiamo inoltre considerare che in tutto il comune negli ultimi 6 mesi, i prezzi per case indipendenti in vendita sono
in forte aumento (+21,51%).
NOVITÀ Il risultato che vedi dipende dai dati che siamo riusciti ad estrarre dall'annuncio: ottieni una stima più accuranta di questo immobile, inserendo dati più precisi.
N.B. L'Opinione di Caasa® è un servizio sperimentale realizzato tramite tecniche di Intelligenza Artificiale, fornito senza alcuna garanzia di correttezza e completezza. Leggi il disclaimer o segnalaci un problema.
IMMAGINI
IN SINTESI
PROPOSTO DA:
STUDIO DUGONI IMMOBILIARE
DESCRIZIONE
di nuova costruzione con garage con giardino con terrazza con cucina abitabile di nuova costruzione con balcone
Due Abbinate in costruzione composte da al piano terra sala, cucina abitabile, bagno, autorimessa, portico, giardino, al primo piano, ampia camera padronale con cabina armadio e balcone, una camera matrimoniale con balcone, una camera 3/4, bagno. Ref […]
