Valutazione immobiliare indipendente, accurata e gratuita
Appartamento in vendita a Scandiano in zona Ventoso a 325.545 € (cod.6581a3b8)
Caasa non ha sufficienti informazioni per commentare l'appartamento a Scandiano in zona Ventoso - 6581a3b8.
Analisi immobiliare
I dati in posseso di Caasa per quest'immobile sono insufficienti, inaffidabili o contraddittori per proporre un'analisi attendibile.
Mercato immobiliare a Scandiano
Per quanto riguarda più in generale la città di Scandiano, sono presenti al momento più di 300 annunci per
appartamenti in vendita (meno del 5% dell'intera provincia)
e il maggior numero di annunci per questa tipologia sono relativi alla zona di Arceto, mentre nella zona di Ventoso è presente un numero significativamente inferiore di annunci.
La richiesta media nella zona dove sorge l'appartamento (Ventoso) è pari a
2.430 €/m² e ne fa la più pregiata della città .
Per quanto riguarda la dinamica dei prezzi, negli ultimi 6 mesi i prezzi medi in tutta la città per appartamenti in vendita sono
in deciso aumento (+8,50%).
NOVITÀ Il risultato che vedi dipende dai dati che siamo riusciti ad estrarre dall'annuncio: ottieni una stima più accuranta di questo immobile, inserendo dati più precisi.
N.B. L'Opinione di Caasa® è un servizio sperimentale realizzato tramite tecniche di Intelligenza Artificiale, fornito senza alcuna garanzia di correttezza e completezza. Leggi il disclaimer o segnalaci un problema.
IMMAGINI
IN SINTESI
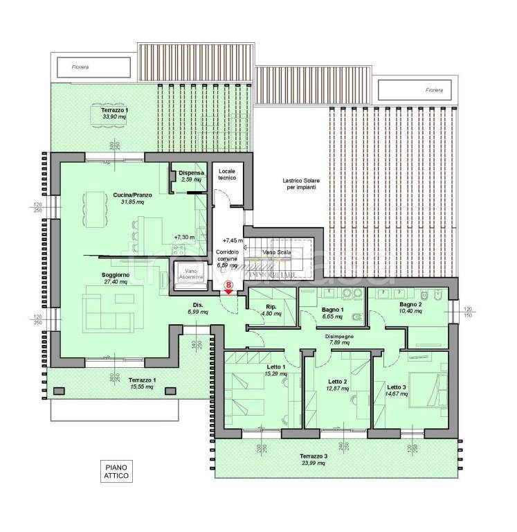
DESCRIZIONE
di nuova costruzione con posto auto con garage con giardino con cantina di nuova costruzione
In quartiere residenziale di Ventoso, posto in zona tranquilla con vista sulle nostre colline, proponiamo in vendita appartamento trilocale di nuova costruzione al piano terra con giardino privato e ingresso indipendente. L'immobile, classificato in classe A4 e dotato di tutti i comfort più moderni, è composto da ingresso su soggiorno con cucina open - space, disimpegno, camera matrimoniale, cameretta e bagno. Scendendo dalle scale, interne all'appartamento, si arriva direttamente all'ampia cantina collegata al garage privato. All'esterno troviamo il giardino esclusivo di circa 80 mq con l'ingresso indipendente. Soluzione ad alta prestazione energetica e completa di tutte le tecnologie di ultima generazione, come per esempio i pannelli fotovoltaici da 3 Kw, gli isolanti termici e acustici, la pompa di calore e tanto altro. All'interno del condominio, costruito nel rispetto delle ultime normative antisismiche, sono disponibili diverse soluzioni di varie metrature e prezzo, personalizzabili a proprio piacimento, contattaci per scoprirle tutte e trovare quella più adatta alle tue esigenze

