Valutazione immobiliare indipendente, accurata e gratuita
Casa indipendente in vendita a Scandiano in zona Fellegara a 185.000 € (cod.656c79b8)
Caasa non ha sufficienti informazioni per commentare la casa indipendente a Scandiano in zona Fellegara - 656c79b8.
Analisi immobiliare
I dati in posseso di Caasa per quest'immobile sono insufficienti, inaffidabili o contraddittori per proporre un'analisi attendibile.
Mercato immobiliare a Scandiano
Per quanto riguarda più in generale la città di Scandiano, sono presenti al momento più di 300 annunci per
case indipendenti in vendita (meno del 5% dell'intera provincia)
e il maggior numero di annunci per questa tipologia sono relativi alla zona di Arceto, mentre la zona di Fellegara risulta molto meno attiva considerando il numero di annunci presenti.
La richiesta media nella zona dove sorge la casa indipendente (Fellegara) è pari a
1.990 €/m², molto vicina ai valori della zona Ventoso che sono i più alti della città .
Per quanto riguarda la dinamica dei prezzi, negli ultimi 6 mesi i prezzi medi in tutta la città per case indipendenti in vendita sono
sostanzialmente stabili (+0,89%).
NOVITÀ Il risultato che vedi dipende dai dati che siamo riusciti ad estrarre dall'annuncio: ottieni una stima più accuranta di questo immobile, inserendo dati più precisi.
N.B. L'Opinione di Caasa® è un servizio sperimentale realizzato tramite tecniche di Intelligenza Artificiale, fornito senza alcuna garanzia di correttezza e completezza. Leggi il disclaimer o segnalaci un problema.
IMMAGINI
IN SINTESI
DESCRIZIONE
di recente ristrutturazione con giardino con cantina con terrazza di recente ristrutturazione di recente costruzione con termocondizionamento con caminetto con climatizzazione
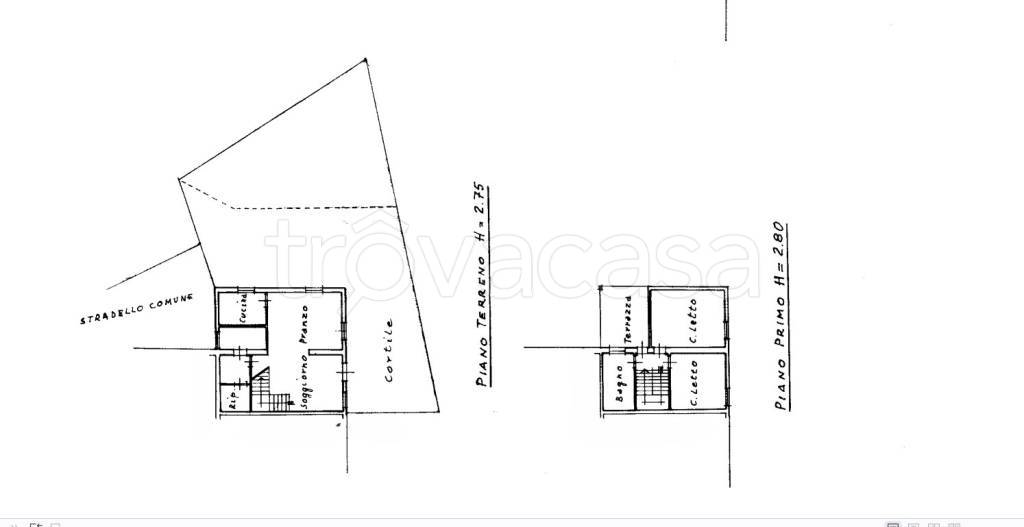
Rif. S694 Iconacasa Scandiano agenzia affiliata in via Vittorio Tognoli 4/a, Scandiano, propone in vendita a Fellegara, in contesto tranquillo e riservato, porzione di casa con ingresso indipendente, parzialmente ristrutturata e sviluppata su tre livelli, per una superficie complessiva di 113 mq. L’abitazione offre ambienti funzionali e ben distribuiti così composti: al piano terra troviamo un accogliente soggiorno, una cucina e un ripostiglio. Salendo al livello superiore si accede alla zona notte composta da due camere da letto, un bagno finestrato e una terrazza ideale per momenti di relax all’aperto. L’ultimo piano ospita un’ulteriore camera, un ripostiglio e un vano mansardato, perfetto come studio, cabina armadio o spazio hobby. Tutti i livelli sono collegati da una comoda scala interna che garantisce continuità e praticità negli spazi. L’immobile è stato parzialmente ristrutturato nel 2023 con interventi che hanno interessato impianti, pavimentazioni e migliorie strutturali. È dotato di riscaldamento a pavimento, cappotto interno termo-isolante e acustico, porta blindata, infissi in PVC con doppio vetro e tre split di aria condizionata. Presente inoltre la predisposizione per termo-camino Soluzione ideale per chi cerca indipendenza, comfort moderno ed efficienza energetica, senza spese condominiali. Per eventuali appuntamenti o maggiori informazioni chiama il numero 0522 - 1691915 o manda un e-mail a scandiano@iconacasa.com

