Valutazione immobiliare indipendente, accurata e gratuita
Appartamento in vendita a Scandiano in zona Ventoso a 359.100 € (cod.64ab846b)
Caasa non ha sufficienti informazioni per commentare l'appartamento a Scandiano in zona Ventoso - 64ab846b.
Analisi immobiliare
I dati in posseso di Caasa per quest'immobile sono insufficienti, inaffidabili o contraddittori per proporre un'analisi attendibile.
Mercato immobiliare a Scandiano
Per quanto riguarda più in generale la città di Scandiano, sono presenti al momento più di 200 annunci per
appartamenti in vendita (meno del 5% dell'intera provincia)
e il maggior numero di annunci per questa tipologia sono relativi alla zona di Arceto, mentre nella zona di Ventoso è presente un numero significativamente inferiore di annunci.
La richiesta media nella zona dove sorge l'appartamento (Ventoso) è pari a
2.145 €/m², molto vicina ai valori della zona Fellegara che sono i più alti della città .
La dinamica dei prezzi in tutta la città mostra che negli ultimi 6 mesi, i prezzi per appartamenti in vendita sono
in aumento (+3,28%).
NOVITÀ Il risultato che vedi dipende dai dati che siamo riusciti ad estrarre dall'annuncio: ottieni una stima più accuranta di questo immobile, inserendo dati più precisi.
N.B. L'Opinione di Caasa® è un servizio sperimentale realizzato tramite tecniche di Intelligenza Artificiale, fornito senza alcuna garanzia di correttezza e completezza. Leggi il disclaimer o segnalaci un problema.
IMMAGINI
IN SINTESI
DESCRIZIONE
di nuova costruzione di nuova costruzione
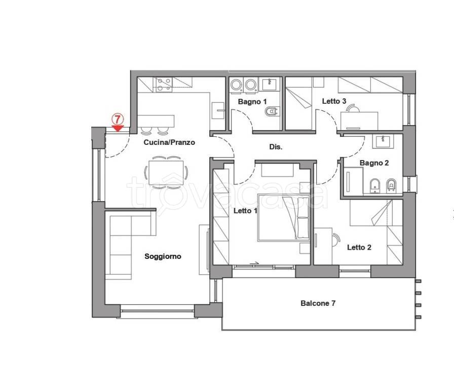
VENTOSO: nel quartiere più richiesto di Scandiano, proponiamo appartamento inserito in esclusiva palazzina di soli 8 alloggi, di prossima realizzazione. L'abitazione, con 3 camere e 2 bagni, sarà realizzata in CLASSE A4 a ZERO EMISSIONI e dotata di 4,5 kw di pannelli fotovoltaici e ventilazione meccanica controllata. Non perdere l'occasione di poter personalizzare la tua nuova casa

