Valutazione immobiliare indipendente, accurata e gratuita
L'Opinione di Caasa® per la casa indipendente in vendita a Reggio nell'Emilia in zona Coviolo a 501.000 € (cod.65800b70)
Secondo Caasa, per la casa indipendente a Reggio nell'Emilia Coviolo, la richiesta di 501.000 € è leggermente vantaggiosa rispetto agli annunci simili.
Analisi immobiliare
La casa indipendente, situata nei pressi di Via Gori nella zona OMI D6, è proposta in vendita a
501.000 € per una
superficie commerciale di
214 m² e quindi ad un prezzo per metro quadrato pari a
2341 €/m²
.
Questo valore
è leggeremente più conveniente di quello stimato da Caasa per immobili in vendita simili per tipologia, caratteristiche, classe energetica e localizzati nella stessa zona OMI, che è compreso tra
2.432 €/m² e
2.595 €/m².
La conoscenza con buona approssimazione della localizzazione dell'immobile ha consentito di utilizzare come raffronto i dati medi elaborati esattamente nella zona OMI di appertenenza (CARROZZONE - PIEVE MODOLENA) per case indipendenti (da 1.560 €/m² a 2.855 €/m²) e per ville (da 1.460 €/m² a 2.785 €/m²). Inoltre, Caasa ha potuto affinare la stima anche con la conoscenza della classe energetica (A) oltre che dello stato dell'immobile (di nuova costruzione) e di alcune caratteristiche significative come il garage o la disponibilità di una cantina. Per queste ragioni è possibile considerare un intervallo di valori accettabili per l'offerta abbastanza limitato.
Mercato immobiliare a Reggio nell'Emilia
Per quanto riguarda più in generale la città di Reggio nell'Emilia, sono presenti al momento ben oltre 2.000 annunci per
case indipendenti in vendita (quasi il 40% dell'intera provincia)
e il maggior numero di annunci per questa tipologia sono relativi alla zona di Città Storica, mentre la zona di Coviolo risulta molto meno attiva considerando il numero di annunci presenti.
La richiesta media nella zona dove sorge la casa indipendente (Coviolo pressi Via Gori) è pari a
2.120 €/m², molto vicina ai valori della zona Baragalla che sono i più alti della città .
Per quanto riguarda la dinamica dei prezzi, negli ultimi 6 mesi i prezzi medi in tutta la città per case indipendenti in vendita sono
in aumento (+3,34%).
NOVITÀ Il risultato che vedi dipende dai dati che siamo riusciti ad estrarre dall'annuncio: ottieni una stima più accuranta di questo immobile, inserendo dati più precisi.
N.B. L'Opinione di Caasa® è un servizio sperimentale realizzato tramite tecniche di Intelligenza Artificiale, fornito senza alcuna garanzia di correttezza e completezza. Leggi il disclaimer o segnalaci un problema.
IMMAGINI
IN SINTESI
PROPOSTO DA:
PRIMA IMMOBILIARE SRL
DESCRIZIONE
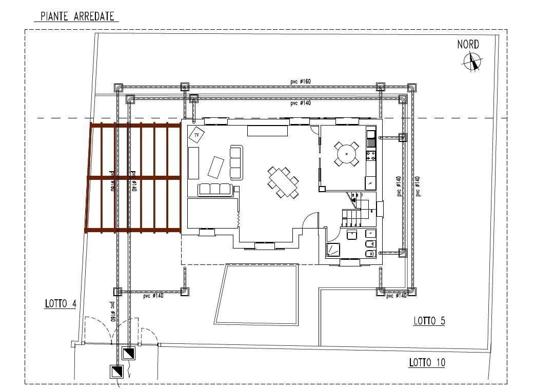
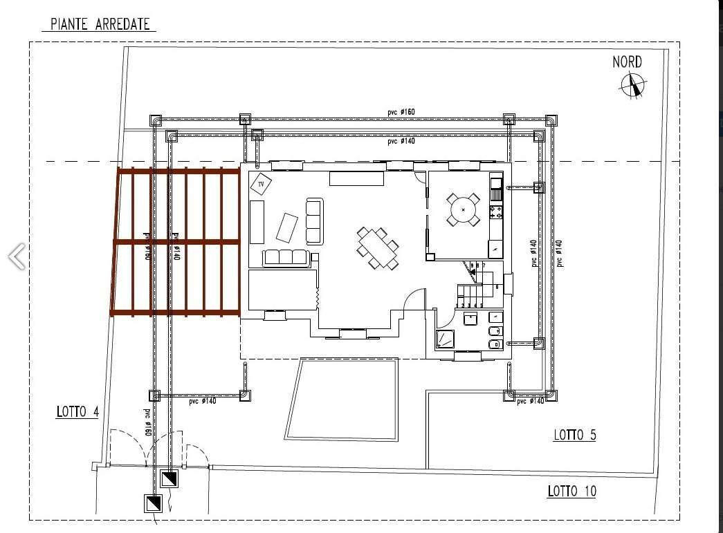
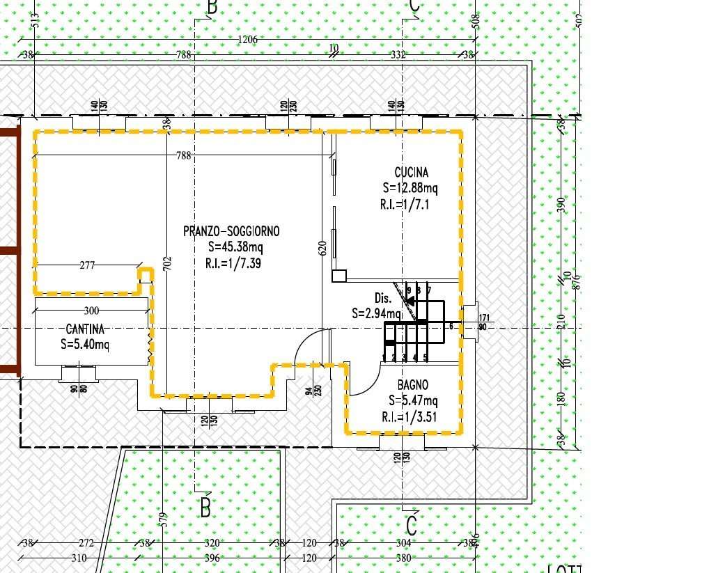
di nuova costruzione con posto auto con garage con cantina con terrazza con balcone con giardino con cucina abitabile con termocondizionamento di nuova costruzione con riscaldamento autonomo
V000261 - FOSCATO: Proponiamo in vendita ville indipendenti in classe energetica A di 213mq. con 330mq di giardino privato. Le ville sono state realizzate con finiture di pregio e con gli attuali parametri di risparmio energetico. Riscaldamento a pavimento e predisposizione condizionamento. Saranno installati pannelli fotovoltaici per un totale di 3 kW. La villa di due piani è così composta: PT. ingresso su ampio salone, cucina abitabile, bagno, e cantina; P1: 2 camere matrimoniali e una 3/4, bagno e ampia terrazza di 30 mq. Completa la proprietà posto auto coperto con pergola. Ampio capitolato. Chiediamo cortesemente, qualora interessati all'immobile in oggetto, di lasciare il recapito telefonico oltre che quello della mail, per poter essere ricontattati, grazie


