Valutazione immobiliare indipendente, accurata e gratuita
L'Opinione di Caasa® per la casa indipendente in vendita a Reggio nell'Emilia a 485.000 € (cod.65768122)
Secondo Caasa, per la casa indipendente in vendita a Reggio nell'Emilia, la richiesta di 485.000 € è equilibrata rispetto agli annunci simili.
Analisi immobiliare
La casa indipendente, situata nella zona OMI D9, è proposta in vendita a
485.000 € per una
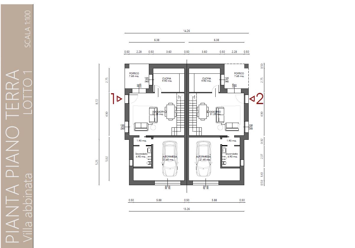
superficie commerciale di
192 m² e quindi ad un prezzo per metro quadrato pari a
2526 €/m²
.
Questo prezzo
è perfettamente allineato a quello stimato da Caasa per immobili in vendita simili per tipologia e caratteristiche e localizzati nella stessa zona OMI, che è compreso tra
2.549 €/m² e
2.785 €/m².
Grazie alla conoscenza con buona approssimazione della localizzazione dell'immobile, è stato possibile utilizzare come raffronto i dati medi elaborati esattamente nella zona OMI di appertenenza (CANALI). Anche se Caasa non è riuscita a determinare la classe energetica, ad affinare la stima hanno contribuito anche lo stato dell'immobile (di nuova costruzione) e la presenza di alcune caratteristiche significative come il garage. Per queste ragioni l'intervallo dei valori accettabili per l'offerta è relativamente limitato.
Mercato immobiliare a Reggio nell'Emilia
Per quanto riguarda più in generale la città di Reggio nell'Emilia, sono presenti al momento ben oltre 2.000 annunci per
case indipendenti in vendita (quasi il 40% dell'intera provincia)
e il maggior numero di annunci per questa tipologia sono relativi alla zona di Città Storica.
Possiamo inoltre considerare che in tutta la città negli ultimi 6 mesi, i prezzi per case indipendenti in vendita sono
in aumento (+3,34%).
NOVITÀ Il risultato che vedi dipende dai dati che siamo riusciti ad estrarre dall'annuncio: ottieni una stima più accuranta di questo immobile, inserendo dati più precisi.
N.B. L'Opinione di Caasa® è un servizio sperimentale realizzato tramite tecniche di Intelligenza Artificiale, fornito senza alcuna garanzia di correttezza e completezza. Leggi il disclaimer o segnalaci un problema.
IMMAGINI
IN SINTESI
PROPOSTO DA:
IMMOBILIARE DEI MILLE DI CASELLI FRANCO & C.
DESCRIZIONE
di nuova costruzione con posto auto con garage con terrazza con giardino con balcone con termocondizionamento di nuova costruzione con riscaldamento autonomo
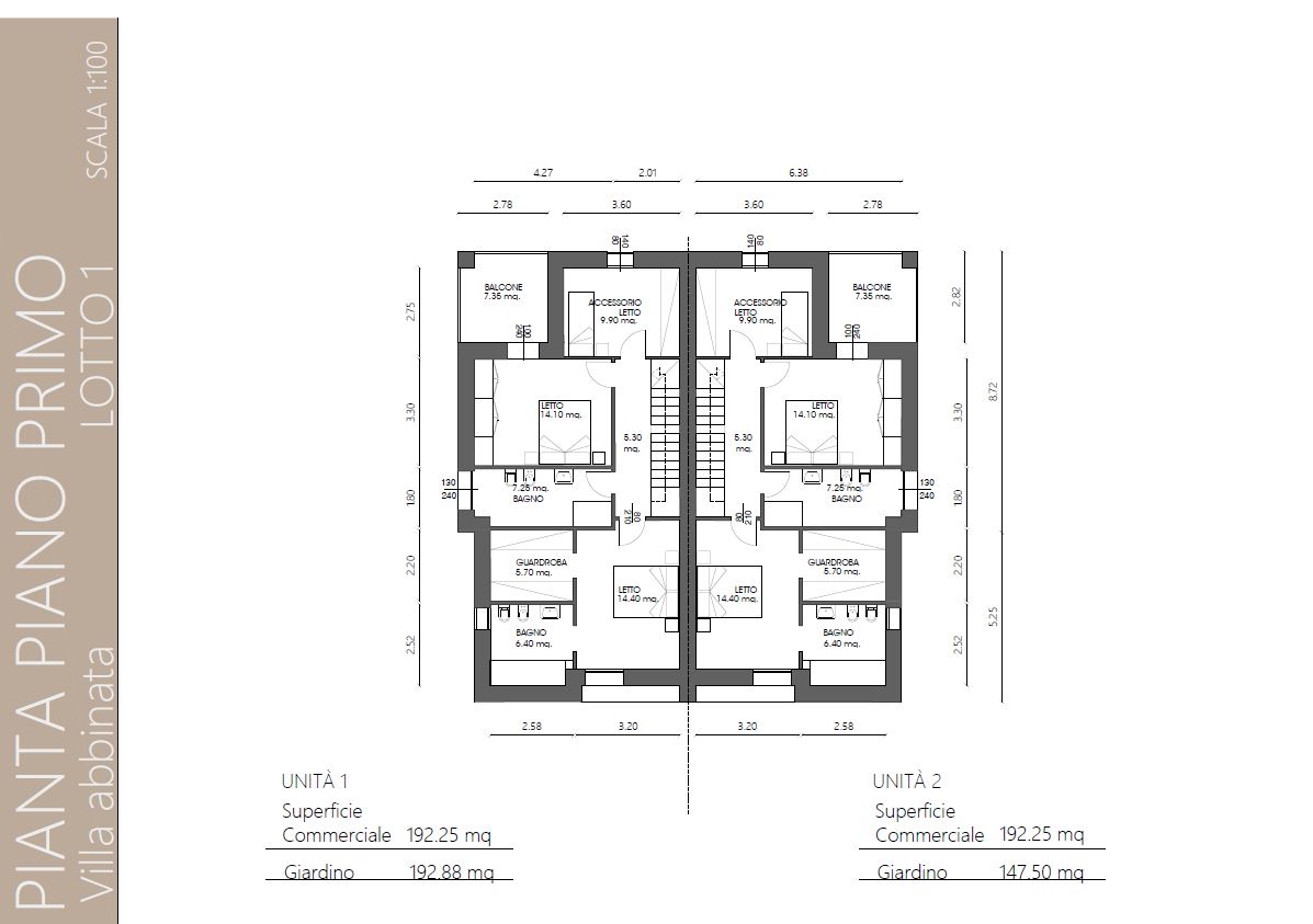
Rif. 871 - Nella bella zona residenziale di Canali proponiamo ville abbinate in fase di realizzazione , con particolare attenzione alla qualità abitativa. La villa Nr.1 sarà così disposta: al piano terra sala e cucina con accesso tramite il portico al giardino privato di 193 mq, bagno/lavanderia e garage. Al primo piano verrà realizzata una camera matrimoniale con cabina armadio e bagno privato, un'altra matrimoniale con balcone, 1 singola e bagno

