Valutazione immobiliare indipendente, accurata e gratuita
L'Opinione di Caasa® per la casa indipendente a Reggio nell'Emilia in zona Rosta Nuova a 650.000 € (cod.65736ac5)
Secondo Caasa, per la casa indipendente a Reggio nell'Emilia Rosta Nuova, la richiesta di 650.000 € è equilibrata rispetto agli annunci simili.
Analisi immobiliare
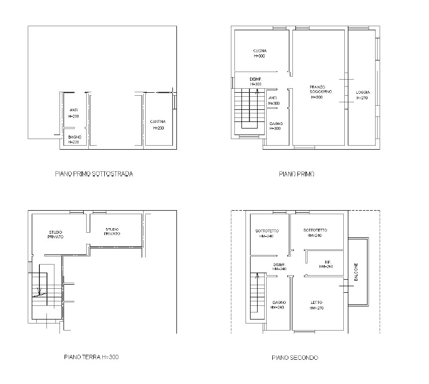
La casa indipendente, situata nella zona OMI C8, è proposta in vendita a
650.000 € per una
superficie commerciale di
350 m² e quindi ad un prezzo per metro quadrato pari a
1857 €/m²
.
Tale prezzo
è in linea con quello stimato da Caasa per immobili in vendita simili per tipologia, caratteristiche, classe energetica e localizzati nella stessa zona OMI, che è compreso tra
1.873 €/m² e
2.021 €/m².
La conoscenza con buona approssimazione della localizzazione dell'immobile ha consentito di utilizzare come raffronto i dati medi elaborati esattamente nella zona OMI di appertenenza (ROSTA NUOVA - MIRABELLO - PAPPAGNOCCA - OSPIZIO) per case indipendenti (da 1.425 €/m² a 2.420 €/m²) e per appartamenti (da 1.455 €/m² a 2.445 €/m²). Inoltre, Caasa ha potuto affinare la stima anche con la conoscenza della classe energetica (G) oltre che di alcune caratteristiche significative come il garage o la disponibilità di una cantina. Per queste considerazioni i valori accettabili per l'offerta costituiscono un intervallo abbastanza limitato.
Mercato immobiliare a Reggio nell'Emilia
Per quanto riguarda più in generale la città di Reggio nell'Emilia, sono presenti al momento ben oltre 2.000 annunci per
case indipendenti in vendita (quasi il 40% dell'intera provincia)
e il maggior numero di annunci per questa tipologia sono relativi alla zona di Città Storica, mentre la zona di Rosta Nuova risulta molto meno attiva considerando il numero di annunci presenti.
La richiesta media nella zona dove sorge la casa indipendente (Rosta Nuova) è pari a
1.835 €/m², molto vicina ai valori della zona Baragalla che sono i più alti della città .
Relativamente alla dinamica dei prezzi, possiamo dire che negli ultimi 6 mesi i prezzi medi in tutta la città per case indipendenti in vendita sono
in aumento (+3,45%).
NOVITÀ Il risultato che vedi dipende dai dati che siamo riusciti ad estrarre dall'annuncio: ottieni una stima più accuranta di questo immobile, inserendo dati più precisi.
N.B. L'Opinione di Caasa® è un servizio sperimentale realizzato tramite tecniche di Intelligenza Artificiale, fornito senza alcuna garanzia di correttezza e completezza. Leggi il disclaimer o segnalaci un problema.
IMMAGINI
IN SINTESI
PROPOSTO DA:
IMMOBILIARE DEI MILLE DI CASELLI FRANCO & C.
DESCRIZIONE
con posto auto con garage con cantina con terrazza con giardino con balcone con cucina abitabile con termocondizionamento con riscaldamento autonomo
Rif. 396 - Si propone casa singola di ampia metratura con 400 mq di giardino e disposta su diversi livelli come segue. Al piano seminterrato: garage doppio in lunghezza, cantina, studio, bagno con finestra Al piano rialzato: attualmente ci sono 3 stanze con bagno per uso professionale ma all'occorrenza può diventare un comodo appartamento di 90 mq. Al 1°piano: salone, cucina abitabile, bagno e balcone. Al 2°piano con tetto in legno: 1 matrimoniale, 2 singole, bagno e balcone



