Valutazione immobiliare indipendente, accurata e gratuita
L'Opinione di Caasa® per l'appartamento a Reggio nell'Emilia in zona Buco del Signore a 390.000 € (cod.652aa487)
Secondo Caasa, per l'appartamento a Reggio nell'Emilia Buco del Signore, la richiesta di 390.000 € è significativamente svantaggiosa rispetto agli annunci simili.
Analisi immobiliare
L'appartamento, situato nella zona OMI D10, è proposto in vendita (da MELLONI IMMOBILIARE) a
390.000 € per una
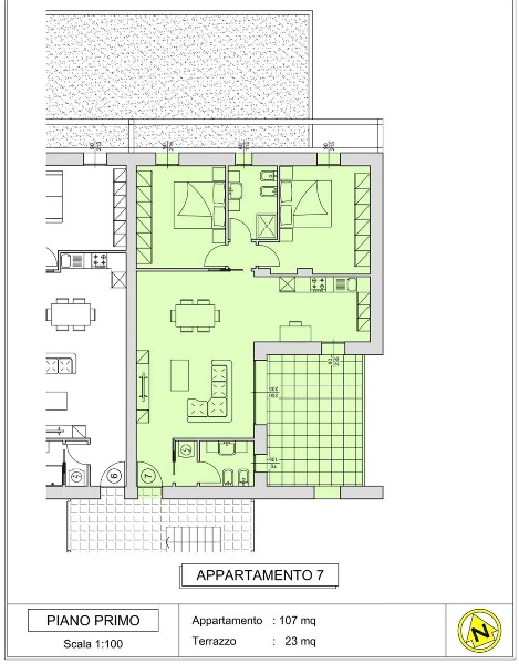
superficie commerciale di
107 m² e quindi ad un prezzo per metro quadrato pari a
3644 €/m²
.
Tale valore
è decisamente superiore a quello stimato da Caasa per immobili in vendita simili per tipologia e caratteristiche e localizzati nella stessa zona OMI, che è compreso tra
2.713 €/m² e
2.906 €/m².
Grazie alla conoscenza con buona approssimazione della localizzazione dell'immobile, è stato possibile utilizzare come raffronto i dati medi elaborati esattamente nella zona OMI di appertenenza (BUCO DEL SIGNORE) per appartamenti (da 1.750 €/m² a 2.880 €/m²) e per trivani (da 1.725 €/m² a 3.135 €/m²). Anche se Caasa non è riuscita a determinare la classe energetica, ad affinare la stima hanno contribuito anche lo stato dell'immobile (di nuova costruzione) e la presenza di alcune caratteristiche significative come il garage o la presenza dell'ascensore. Per queste ragioni i valori accettabili per l'offerta costituiscono un intervallo relativamente limitato.
Mercato immobiliare a Reggio nell'Emilia
Per quanto riguarda più in generale la città di Reggio nell'Emilia, sono presenti al momento ben oltre 3.000 annunci per
appartamenti in vendita (quasi la metà dell'intera provincia)
e il maggior numero di annunci per questa tipologia sono relativi alla zona di Città Storica, mentre la zona di Buco del Signore risulta molto meno attiva considerando il numero di annunci presenti.
La richiesta media nella zona dove sorge l'appartamento (Buco del Signore) è pari a
2.340 €/m², molto vicina ai valori della zona Baragalla che sono i più alti della città .
La dinamica dei prezzi in tutta la città mostra che negli ultimi 6 mesi, i prezzi per appartamenti in vendita sono
in debole aumento (+1,64%).
NOVITÀ Il risultato che vedi dipende dai dati che siamo riusciti ad estrarre dall'annuncio: ottieni una stima più accuranta di questo immobile, inserendo dati più precisi.
N.B. L'Opinione di Caasa® è un servizio sperimentale realizzato tramite tecniche di Intelligenza Artificiale, fornito senza alcuna garanzia di correttezza e completezza. Leggi il disclaimer o segnalaci un problema.
IMMAGINI
IN SINTESI
DESCRIZIONE
di nuova costruzione con posto auto con garage con terrazza con ascensore di nuova costruzione
Nella zona di Via Settembrini - Buco del Signore proponiamo in vendita un appartamento di 107 mq, al primo piano, servito da ascensore, in palazzina di sole 12 unità abitative. L'immobile è composto da: ingresso su splendida zona giorno, con cucina a vista, e terrazzo di 23 mq con esposizione ad est, due camere da letto matrimoniali e due bagni. Possibilità di acquistare un garage di circa 19 mq ad € 25.000, ed eventualmente anche un posto auto scoperto ad € 9.000. Edifici sostenibili da un punto di vista ecologico ed economico, realizzati con materiali ad alto isolamento termico che garantiscono basse spese di gestione e manutenzione


