Valutazione immobiliare indipendente, accurata e gratuita
L'Opinione di Caasa® per la casa indipendente a Reggio nell'Emilia in zona Città Storica a 570.000 € (cod.65064638)
Secondo Caasa, per la casa indipendente in vendita in zona Città Storica, la richiesta di 570.000 € è significativamente svantaggiosa rispetto agli annunci simili.
Analisi immobiliare
La casa indipendente è proposta in vendita a
570.000 € per una
superficie commerciale di
180 m² e quindi ad un prezzo per metro quadrato pari a
3166 €/m²
.
Questo valore
è significativamente più alto di quello stimato da Caasa per immobili in vendita simili per tipologia e caratteristiche, presenti nella stessa zona, che è compreso tra
2.290 €/m² e
2.512 €/m².
Considerata la posizione della casa indipendente sono stati utilizzati come raffronto i valori medi nelle zone limitrofe e soprattutto le richieste in vendita per case indipendenti in zona Città Storica (da 1.440 €/m² a 2.755 €/m²) e per ville in zona Città Storica (da 1.360 €/m² a 2.610 €/m²). Caasa non è stata in grado di determinare la classe energetica, ma ad affinare la stima hanno contribuito però anche lo stato dell'immobile (di nuova costruzione) e la presenza di alcune caratteristiche significative come il garage o la disponibilità di una cantina. Per i motivi esposti l'intervallo dei valori possibili per l'offerta è relativamente ampio.
Mercato immobiliare a Reggio nell'Emilia
Per quanto riguarda più in generale la città di Reggio nell'Emilia, sono presenti al momento ben oltre 2.000 annunci per
case indipendenti in vendita (quasi il 40% dell'intera provincia)
e il maggior numero di annunci per questa tipologia sono relativi proprio alla zona di Città Storica.
La richiesta media nella zona dove sorge la casa indipendente (Città Storica) è pari a
2.070 €/m², molto vicina ai valori della zona Baragalla che sono i più alti della città .
Per quanto riguarda la dinamica dei prezzi, negli ultimi 6 mesi i prezzi medi in tutta la città per case indipendenti in vendita sono
in leggero aumento (+2,65%).
NOVITÀ Il risultato che vedi dipende dai dati che siamo riusciti ad estrarre dall'annuncio: ottieni una stima più accuranta di questo immobile, inserendo dati più precisi.
N.B. L'Opinione di Caasa® è un servizio sperimentale realizzato tramite tecniche di Intelligenza Artificiale, fornito senza alcuna garanzia di correttezza e completezza. Leggi il disclaimer o segnalaci un problema.
IMMAGINI
IN SINTESI
PROPOSTO DA:
IMMOBILIARE PELLINI
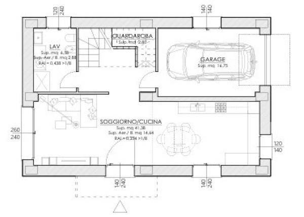
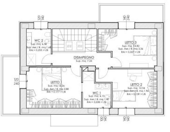
DESCRIZIONE
di nuova costruzione con posto auto con garage con cantina con balcone con giardino di nuova costruzione
Reggio Emilia, San Bartolomeo. In ottimo quartiere residenziale nuova costruzione di tre ville singole in classe A4, antisismiche, disposte su due livelli e con ampie vetrate che si affacciano sui giardini privati. Le ville sono così composte: piano terra ingresso, soggiorno open space con la cucina di oltre 35 mq con vetrate sul giardino, bagno/lavanderia e garage. Al primo piano due camere matrimoniali, bagno, camera matrimoniale di oltre 16 mq con bagno in camera, ripostiglio e due balconi. Le ville avranno ottime finiture a scelta dell'acquirente e tetto in legno a vista. Ultime due disponibili. Chiamare Cristian al 345/6013525



