Valutazione immobiliare indipendente, accurata e gratuita
Casa indipendente a Reggio nell'Emilia in zona Città Storica a 720.000 € (cod.650566aa)
Caasa non ha sufficienti informazioni per commentare la casa indipendente in vendita in zona Città Storica - 650566aa.
Analisi immobiliare
I dati in posseso di Caasa per quest'immobile sono insufficienti, inaffidabili o contraddittori per proporre un'analisi attendibile.
Mercato immobiliare a Reggio nell'Emilia
Per quanto riguarda più in generale la città di Reggio nell'Emilia, sono presenti al momento ben oltre 2.000 annunci per
case indipendenti in vendita (quasi il 40% dell'intera provincia)
e il maggior numero di annunci per questa tipologia sono relativi proprio alla zona di Città Storica.
La richiesta media nella zona dove sorge la casa indipendente (Città Storica) è pari a
2.080 €/m², molto vicina ai valori della zona Baragalla che sono i più alti della città .
Possiamo inoltre considerare che in tutta la città negli ultimi 6 mesi, i prezzi per case indipendenti in vendita sono
in leggero aumento (+2,65%).
NOVITÀ Il risultato che vedi dipende dai dati che siamo riusciti ad estrarre dall'annuncio: ottieni una stima più accuranta di questo immobile, inserendo dati più precisi.
N.B. L'Opinione di Caasa® è un servizio sperimentale realizzato tramite tecniche di Intelligenza Artificiale, fornito senza alcuna garanzia di correttezza e completezza. Leggi il disclaimer o segnalaci un problema.
IMMAGINI
IN SINTESI
PROPOSTO DA:
PRIMA IMMOBILIARE SRL
DESCRIZIONE
con posto auto con garage con terrazza con giardino
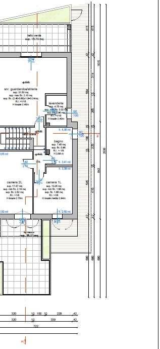
Villetta Abbinata di prossima realizzazione, superficie di circa 220 mq, ubicata in contesto residenziale riservato, a breve distanza dal centro cittadino. Si propone in vendita esclusiva una villetta abbinata caratterizzata da un elevato standard costruttivo e massime prestazioni energetiche. L'immobile, in corso di costruzione, sarà certificato in e sarà dotato di pannelli solari fotovoltaici. È prevista la facoltà di personalizzazione degli ambienti interni in base alle specifiche esigenze dell'acquirente . La proprietà è disposta su due livelli, ottimizzando la separazione tra zona giorno e zona notte. Piano Terra , Ingresso che accede direttamente all'ampia zona living, per garantire luminosità e funzionalità. Un bagno di servizio e un accesso diretto al garage doppio (con disposizione affiancata). La zona giorno si connette a un portico e al giardino privato di circa 120 mq e una piscina .Piano Primo, zona Notte: composta da due camere da letto matrimoniali ,un bagno padronale, un locale adibito a lavanderia e uno spazio flessibile da destinare a guardaroba o terza camera/studio. La costruzione verrà eseguita con le più recenti tecnologie edilizie, garantendo comfort abitativo e sostenibilità. Si invitano gli interessati a voler cortesemente fornire, oltre al recapito di posta elettronica, un contatto telefonico per poter essere contattati. Grazie. Villetta Abbinata di prossima realizzazione, superficie di circa 200 mq, ubicata in contesto residenziale riservato, a breve distanza dal centro cittadino. Si propone in vendita esclusiva una villetta abbinata caratterizzata da un elevato standard costruttivo e massime prestazioni energetiche. L'immobile, in corso di costruzione, sarà certificato in e sarà dotato di pannelli solari fotovoltaici. È prevista la facoltà di personalizzazione degli ambienti interni in base alle specifiche esigenze dell'acquirente . La proprietà è disposta su due livelli, ottimizzando la separazione tra zona giorno e zona notte. Piano Terra , Ingresso che accede direttamente al[…]



