Valutazione immobiliare indipendente, accurata e gratuita
Ufficio in affitto a Reggio nell'Emilia in zona Mancasale a 4.500 € mese (cod.650c3fef)
Caasa non ha sufficienti informazioni per commentare l'ufficio a Reggio nell'Emilia in zona Mancasale - 650c3fef.
Analisi immobiliare
I dati in posseso di Caasa per quest'immobile sono insufficienti, inaffidabili o contraddittori per proporre un'analisi attendibile.
Mercato immobiliare a Reggio nell'Emilia
Per quanto riguarda più in generale la città di Reggio nell'Emilia, sono presenti al momento più di 200 annunci per
uffici in affitto (quasi tre quarti dell'intera provincia)
e il maggior numero di annunci per questa tipologia sono relativi alla zona di Città Storica, mentre la zona di Mancasale risulta molto meno attiva considerando il numero di annunci presenti.
La richiesta media nella zona dove sorge l'ufficio (Mancasale) è pari a
8,8 €/m² mese che la rende la più economica della città .
La dinamica dei prezzi in tutta la città mostra che negli ultimi 6 mesi, i prezzi per uffici in affitto sono
sostanzialmente stabili (+0,38%).
NOVITÀ Il risultato che vedi dipende dai dati che siamo riusciti ad estrarre dall'annuncio: ottieni una stima più accuranta di questo immobile, inserendo dati più precisi.
N.B. L'Opinione di Caasa® è un servizio sperimentale realizzato tramite tecniche di Intelligenza Artificiale, fornito senza alcuna garanzia di correttezza e completezza. Leggi il disclaimer o segnalaci un problema.
IMMAGINI
IN SINTESI
PROPOSTO DA:
PIAZZA AFFARI L'IMMOBILIARE SU MISURA
DESCRIZIONE
con termocondizionamento con riscaldamento autonomo
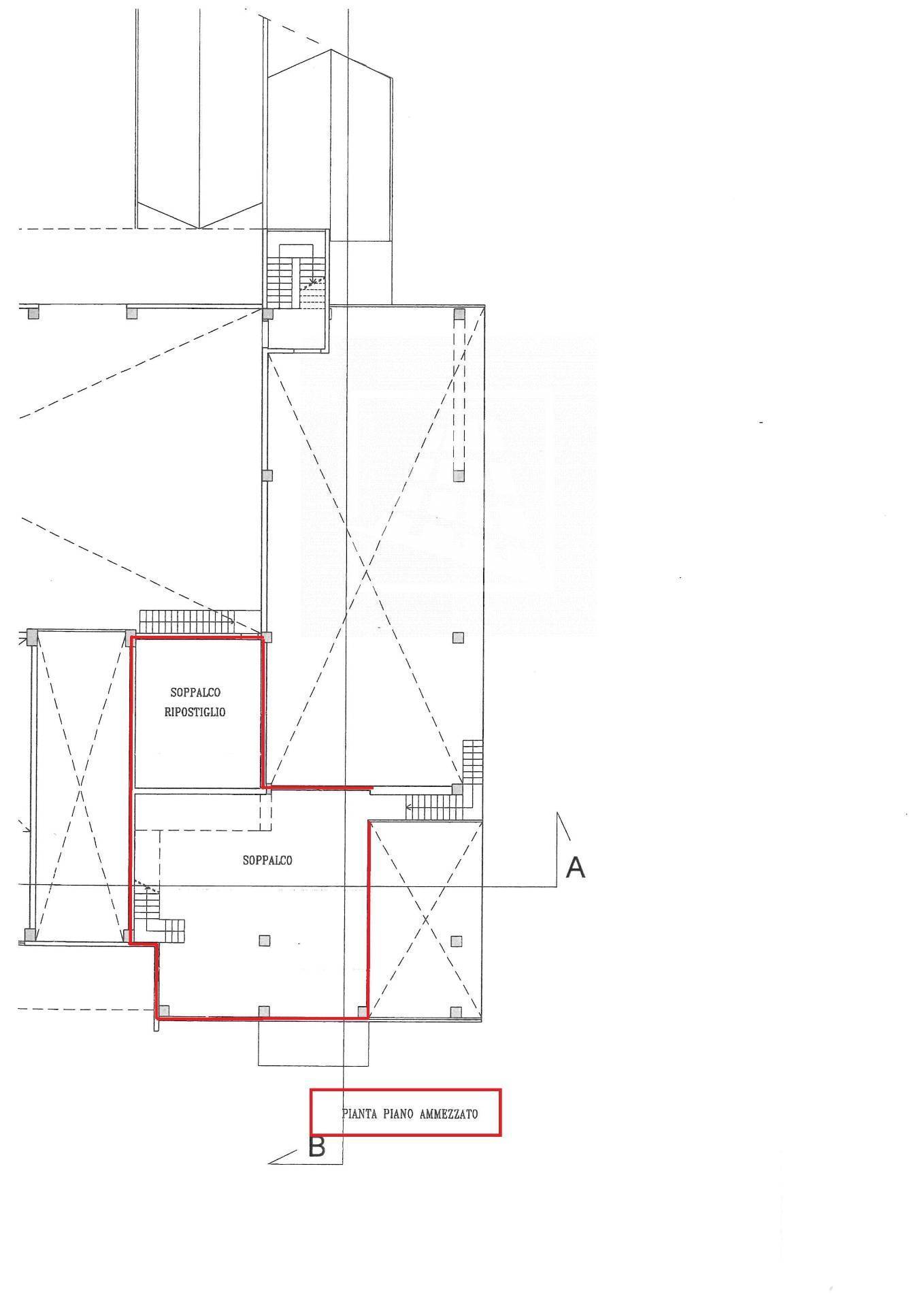
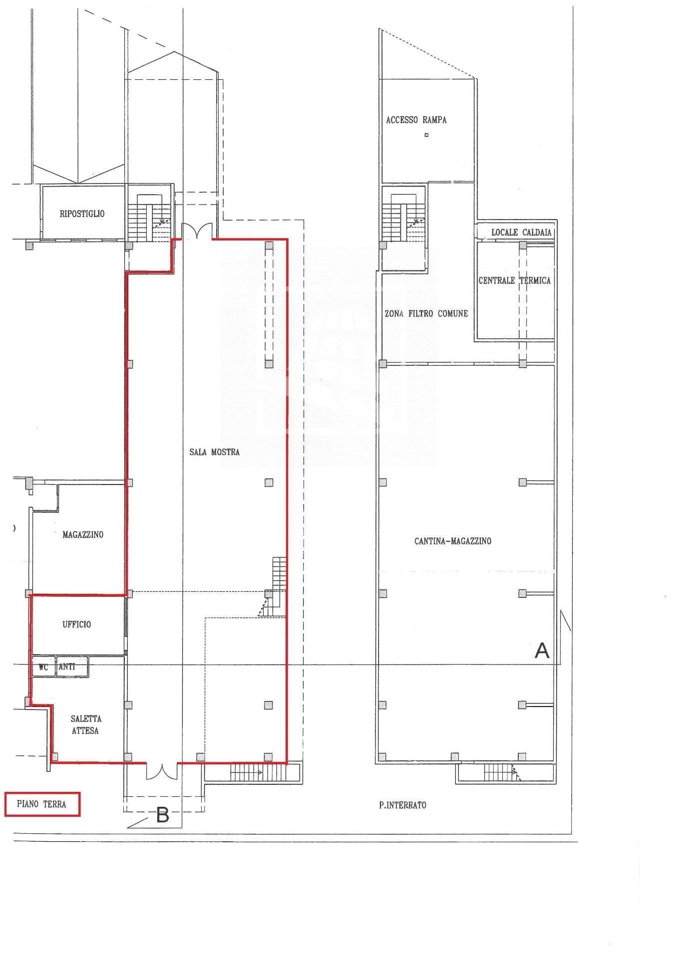
Reggio nord - Locale commerciale (Rif. KV1060) Nella zona di Mancasale, Spazio commerciale di totali mq 580 per altezza m 5,50 composto da: piano terra mq 415 open space con doppio ingresso indipendente e un servizio. Le grandi vetrate da terra a soffitto che corrono su due lati dell'immobile lo rendono particolarmente luminoso e visibile. piano primo soppalcato mq 165, raggiungibile tramite scala, con servizi, vani e ufficio area cortiliva ad uso esclusivo interamente pavimentata da adibire a parcheggi, recintata, con cancello carraio e cancelletto pedonale. Riscaldamento e raffrescamento sono autonomi, prese 220, controsoffitti con corpi illuminanti, filodiffusione e impianto insegna. Il Negozio gode di ottima visibilità, posizionato sulla strada, in una zona molto frequentata, è immediatamente individuabile, ben servito e facilmente raggiungibile


