Valutazione immobiliare indipendente, accurata e gratuita

Capannone in affitto a Reggio nell'Emilia a 5.500 € mese (cod.64eedc6b)

Caasa non ha sufficienti informazioni per commentare il capannone in affitto a Reggio nell'Emilia - 64eedc6b.

Analisi immobiliare
I dati in posseso di Caasa per quest'immobile sono insufficienti, inaffidabili o contraddittori per proporre un'analisi attendibile.
Mercato immobiliare a Reggio nell'Emilia
Per quanto riguarda più in generale la città di Reggio nell'Emilia, sono presenti al momento circa cento annunci per capannoni in affitto (quasi la metà dell'intera provincia) e il maggior numero di annunci per questa tipologia sono relativi alla zona di Mancasale.

Vedi altre informazioni direttamente su Mercato-Immobiliare.info

NOVITÀ Il risultato che vedi dipende dai dati che siamo riusciti ad estrarre dall'annuncio: ottieni una stima più accuranta di questo immobile, inserendo dati più precisi.

N.B. L'Opinione di Caasa® è un servizio sperimentale realizzato tramite tecniche di Intelligenza Artificiale, fornito senza alcuna garanzia di correttezza e completezza. Leggi il disclaimer o segnalaci un problema.

IMMAGINI

IN SINTESI

Prezzo:
5.500 € mese
Superficie:
1134 m²
Prezzo al m²:
4,9/mese €/m²
Piano:
n.d.
Bagni:
n.d.
Classe energetica:
n.d.
Città:
Reggio nell'Emilia (RE)
Zona OMI:
E7 (CAVAZZOLI - SESSO)
Indirizzo:
Pubblicato:
mar 30 settembre 2025

PROPOSTO DA:

PIAZZA AFFARI L'IMMOBILIARE SU MISURA

DESCRIZIONE

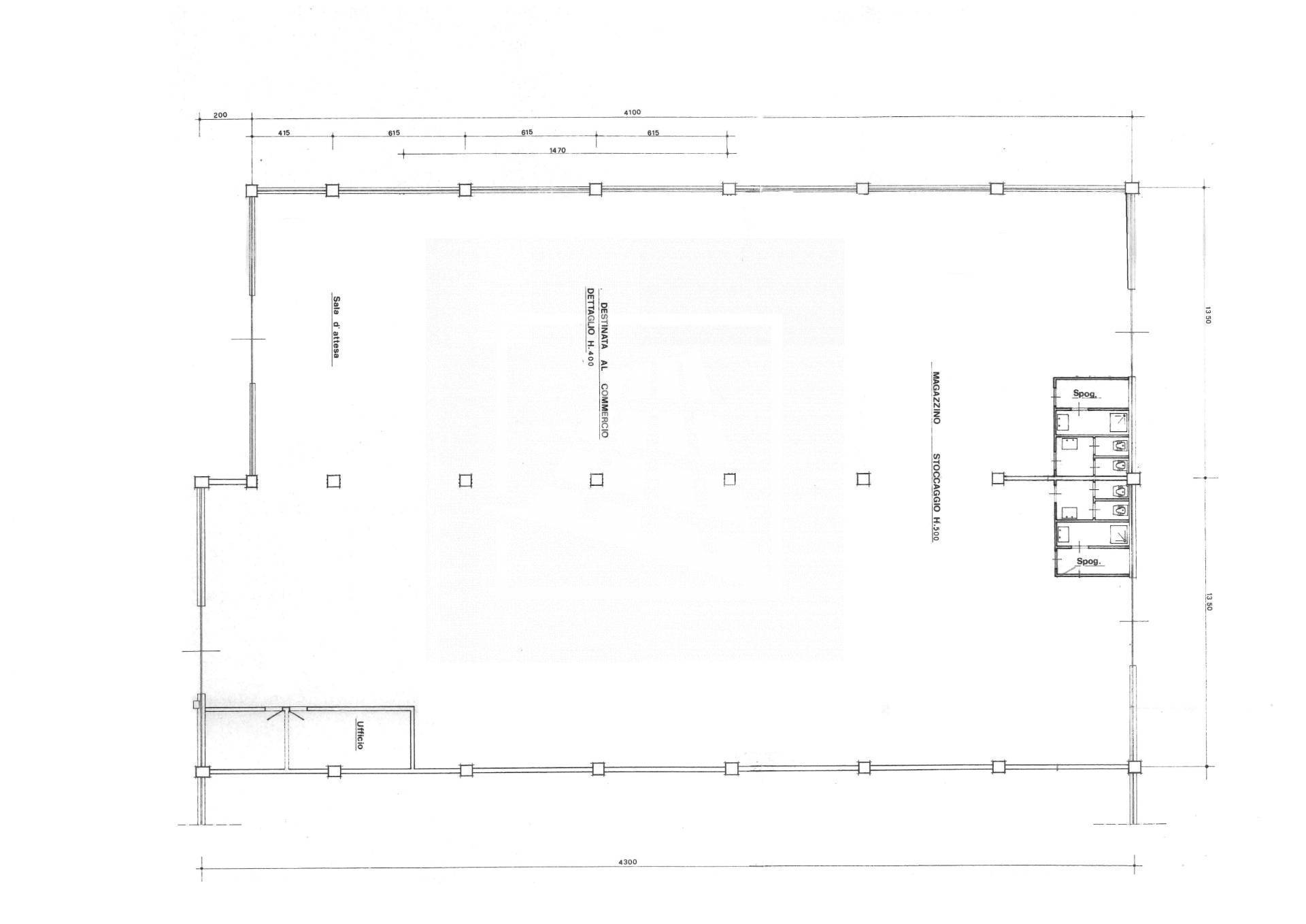
Reggio nord - Capannone di testa (Rif. VJ1029) Nella zona industriale del Villaggio Crostolo proponiamo capannone per una superficie a sedime di mq 1.134 divisi in area magazzino mq 1.073 per un'altezza di m 4 con quattro portoni contrapposti. area uffici mq 61 comprensiva di doppi spogliatoi e doppi servizi con raffrescamento indipendente con pompa di calore e rete dati. L'immobile è completamente riscaldato e possiede una cabina elettrica di proprietà. Area cortiliva per mq 930 circa parzialmente recintata e con due cancelli carrai per un'ampia disponibilità di manovra e parcheggi. La zona è dinamica, ben servita e facilmente raggiungibile, questo capannone, grazie alle sue caratteristiche rappresenta una soluzione ideale per chi cerca uno spazio ampio, funzionale e ben posizionato per la propria attività. Disponibilità di canone agevolato. Le immagini non sono originali dell'immobile, per tutelare la privacy dei nostri clienti

  • immobiliare.it
  • fiaip
  • idealista.it
  • trovacasa.net