Valutazione immobiliare indipendente, accurata e gratuita

Locale commerciale in affitto a Reggio nell'Emilia a 5.738 € mese (cod.64e65425)

Caasa non ha sufficienti informazioni per commentare il locale commerciale in affitto a Reggio nell'Emilia - 64e65425.

Analisi immobiliare
I dati in posseso di Caasa per quest'immobile sono insufficienti, inaffidabili o contraddittori per proporre un'analisi attendibile.
Mercato immobiliare a Reggio nell'Emilia
Per quanto riguarda più in generale la città di Reggio nell'Emilia, sono presenti al momento più di cento annunci per locali commerciali in affitto (quasi la metà dell'intera provincia) e il maggior numero di annunci per questa tipologia sono relativi alla zona di Città Storica.

Relativamente alla dinamica dei prezzi, possiamo dire che negli ultimi 6 mesi i prezzi medi in tutta la città per locali commerciali in affitto sono in forte calo (-25,94%).

NOVITÀ Il risultato che vedi dipende dai dati che siamo riusciti ad estrarre dall'annuncio: ottieni una stima più accuranta di questo immobile, inserendo dati più precisi.

N.B. L'Opinione di Caasa® è un servizio sperimentale realizzato tramite tecniche di Intelligenza Artificiale, fornito senza alcuna garanzia di correttezza e completezza. Leggi il disclaimer o segnalaci un problema.

IMMAGINI

IN SINTESI

Prezzo:
5.738 € mese
Superficie:
786 m²
Prezzo al m²:
7,3/mese €/m²
Piano:
terra
Bagni:
2
Classe energetica:
n.d.
Città:
Reggio nell'Emilia (RE)
Zona OMI:
E8 (CELLA)
Indirizzo:
Pubblicato:
gio 26 giugno 2025

PROPOSTO DA:

PIAZZA AFFARI L'IMMOBILIARE SU MISURA

DESCRIZIONE

di recente costruzione con termocondizionamento con riscaldamento autonomo di recente costruzione di nuova costruzione

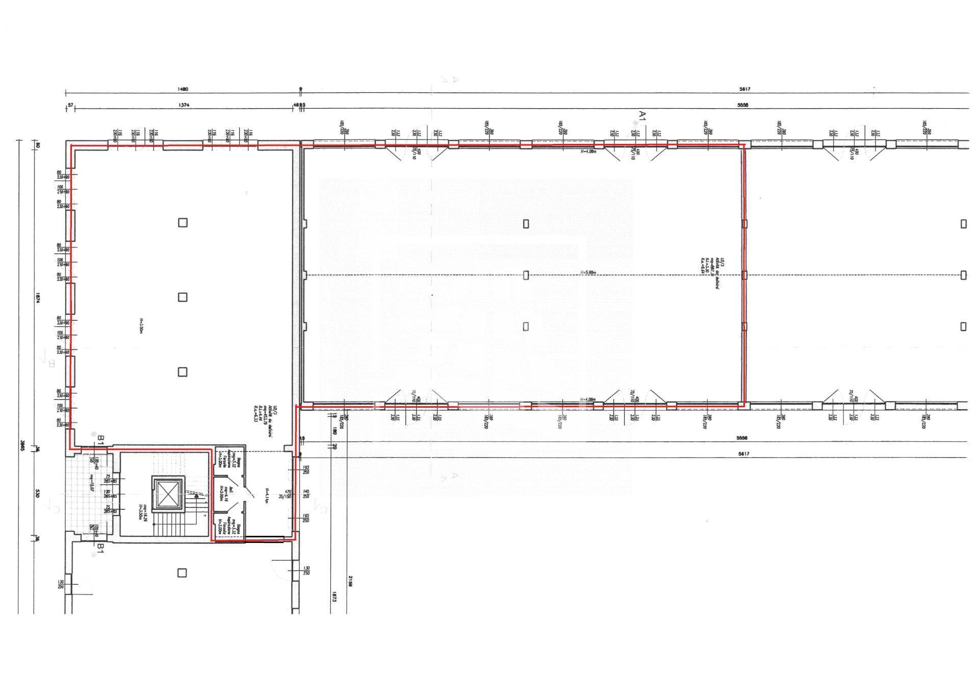
Reggio Ovest - Spazio Commerciale (Rif. CA3753/3) In stabile di recente costruzione, spazioso e moderno locale commerciale per una superficie totale di mq 786 circa, divisi in due open space comunicanti e doppi servizi. Il bene vanta ampi spazi vetrati che lo rendono molto luminoso e numerosi ingressi indipendenti. Riscaldamento e raffrescamento sono autonomi. Lo stato di conservazione è ottimo, con finiture moderne e di alta qualità. L'immobile si trova in posizione strategica, sulla strada principale, con una ottima visibilità e un comodo e ampio parcheggio per i clienti

  • immobiliare.it
  • fiaip
  • annuncio-casa.it
  • trovacasa.net