Valutazione immobiliare indipendente, accurata e gratuita
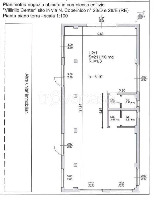
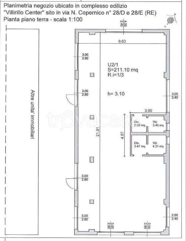
Negozio in affitto a Reggio nell'Emilia in zona Carrozzone a 3.600 € mese (cod.63861f15)
Caasa non ha sufficienti informazioni per commentare il negozio a Reggio nell'Emilia in zona Carrozzone - 63861f15.
Analisi immobiliare
I dati in posseso di Caasa per quest'immobile sono insufficienti, inaffidabili o contraddittori per proporre un'analisi attendibile.
Mercato immobiliare a Reggio nell'Emilia
Per quanto riguarda più in generale la città di Reggio nell'Emilia, sono presenti al momento più di 300 annunci per
negozi in affitto (quasi due terzi dell'intera provincia)
e il maggior numero di annunci per questa tipologia sono relativi alla zona di Città Storica, mentre la zona di Carrozzone risulta molto meno attiva considerando il numero di annunci presenti.
Vedi altre informazioni direttamente su
Mercato-Immobiliare.info
NOVITÀ Il risultato che vedi dipende dai dati che siamo riusciti ad estrarre dall'annuncio: ottieni una stima più accuranta di questo immobile, inserendo dati più precisi.
N.B. L'Opinione di Caasa® è un servizio sperimentale realizzato tramite tecniche di Intelligenza Artificiale, fornito senza alcuna garanzia di correttezza e completezza. Leggi il disclaimer o segnalaci un problema.


