Valutazione immobiliare indipendente, accurata e gratuita
Casa indipendente a Quattro Castella in zona Montecavolo a 415.000 € (cod.654a05e2)
Caasa non ha sufficienti informazioni per commentare la casa indipendente a Quattro Castella Montecavolo - 654a05e2.
Analisi immobiliare
I dati in posseso di Caasa per quest'immobile sono insufficienti, inaffidabili o contraddittori per proporre un'analisi attendibile.
Mercato immobiliare a Quattro Castella
Per quanto riguarda più in generale il comune di Quattro Castella, sono presenti al momento più di 150 annunci per
case indipendenti in vendita (meno del 5% dell'intera provincia)
e il maggior numero di annunci per questa tipologia sono relativi proprio alla zona di Montecavolo.
La richiesta media nella zona dove sorge la casa indipendente (Montecavolo) è pari a
1.850 €/m² e ne fa la più pregiata del comune .
Possiamo inoltre considerare che in tutto il comune negli ultimi 6 mesi, i prezzi per case indipendenti in vendita sono
in leggero aumento (+3,11%).
NOVITÀ Il risultato che vedi dipende dai dati che siamo riusciti ad estrarre dall'annuncio: ottieni una stima più accuranta di questo immobile, inserendo dati più precisi.
N.B. L'Opinione di Caasa® è un servizio sperimentale realizzato tramite tecniche di Intelligenza Artificiale, fornito senza alcuna garanzia di correttezza e completezza. Leggi il disclaimer o segnalaci un problema.
IMMAGINI
IN SINTESI
DESCRIZIONE
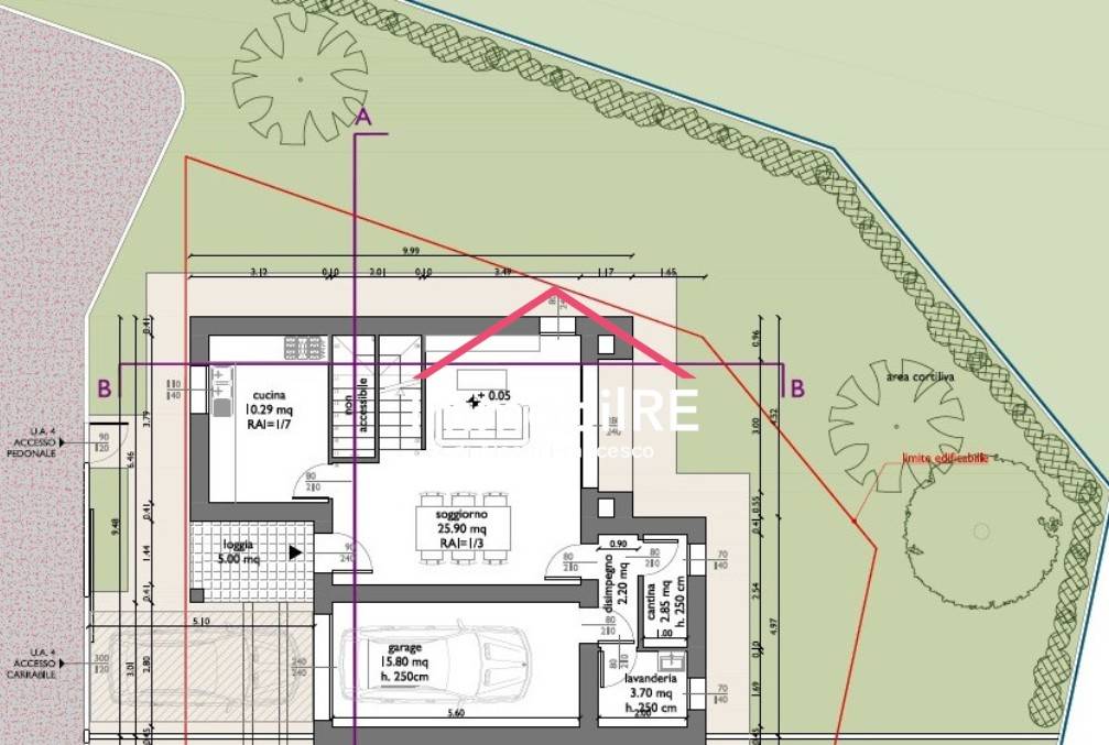
di nuova costruzione con garage con cantina con terrazza con cucina abitabile di nuova costruzione
V119/V - MONTECAVOLO: Hai sempre sognato una tua casa indipendente, moderna e che ti faccia risparmiare? Queste soluzioni sono state progettate per garantire il massimo comfort abitativo con minime spese di gestione grazie alle sue caratteristiche di […]
