Valutazione immobiliare indipendente, accurata e gratuita
L'Opinione di Caasa® per la casa indipendente in vendita a Montecchio Emilia a 485.000 € (cod.6527a935)
Secondo Caasa, per la casa indipendente in vendita a Montecchio Emilia, la richiesta di 485.000 € è equilibrata rispetto agli annunci simili.
Analisi immobiliare
La casa indipendente, situata nella zona OMI D2, è proposta in vendita a
485.000 € per una
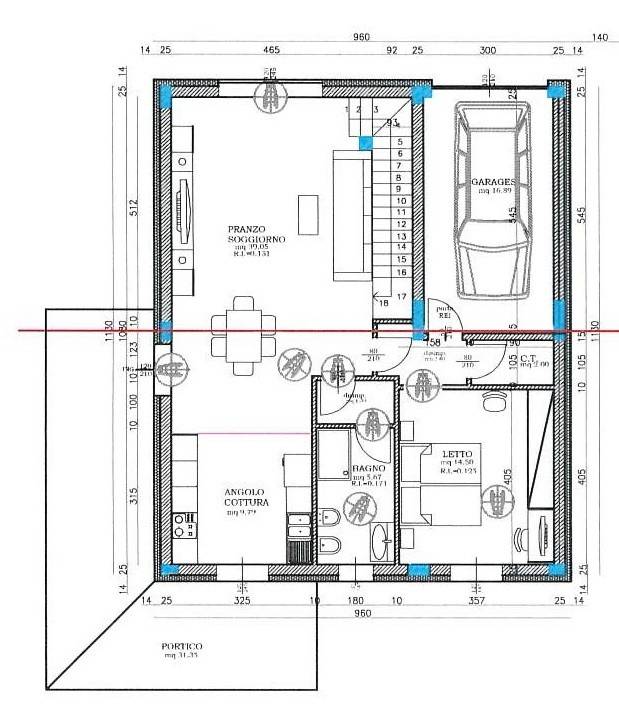
superficie commerciale di
200 m² e quindi ad un prezzo per metro quadrato pari a
2425 €/m²
.
Tale prezzo
è molto vicino a quello stimato da Caasa per immobili in vendita simili per tipologia e caratteristiche, che è compreso tra
2.250 €/m² e
2.509 €/m².
E' stato possibile utilizzare in raffronto i soli valori medi cittadini per case indipendenti (da 1.290 €/m² a 2.660 €/m²) e per ville (da 1.445 €/m² a 2.625 €/m²). Caasa non dispone infatti di informazioni di dettaglio e di adeguata affidabilità sulle singole zone immobiliari nelle vicinanze dell'immobile e non è stata in grado di determinare in modo affidabile la classe energetica. Ad affinare la stima hanno contribuito però anche lo stato dell'immobile (di nuova costruzione) e la presenza di alcune caratteristiche significative come il garage o la disponibilità di una cantina. Per queste ragioni i valori considerati accettabili per l'offerta economica devono costituire un intervallo adeguatamente ampio.
Mercato immobiliare a Montecchio Emilia
Per quanto riguarda più in generale il comune di Montecchio Emilia, sono presenti al momento circa cento annunci per
case indipendenti in vendita (meno del 5% dell'intera provincia) .
Relativamente alla dinamica dei prezzi, possiamo dire che negli ultimi 6 mesi i prezzi medi in tutto il comune per case indipendenti in vendita sono
in forte aumento (+16,26%).
NOVITÀ Il risultato che vedi dipende dai dati che siamo riusciti ad estrarre dall'annuncio: ottieni una stima più accuranta di questo immobile, inserendo dati più precisi.
N.B. L'Opinione di Caasa® è un servizio sperimentale realizzato tramite tecniche di Intelligenza Artificiale, fornito senza alcuna garanzia di correttezza e completezza. Leggi il disclaimer o segnalaci un problema.
IMMAGINI
IN SINTESI
PROPOSTO DA:
IMMOBILIARE PELLINI
DESCRIZIONE
di nuova costruzione con garage con giardino con cantina con terrazza di nuova costruzione
Montecchio Emilia. Vicino al centro di Montecchio, in posizione strategica nei pressi di tutti i servizi pubblici, proponiamo ville singole con ampi spazi verdi privati in Classe A4, antisismiche e dotate di tutte le nuove tecnologie costruttive. Le […]
