Valutazione immobiliare indipendente, accurata e gratuita
Casa indipendente in vendita a Luzzara a 31.800 € (cod.64f17356)
Caasa non ha sufficienti informazioni per commentare la casa indipendente in vendita a Luzzara - 64f17356.
Analisi immobiliare
I dati in posseso di Caasa per quest'immobile sono insufficienti, inaffidabili o contraddittori per proporre un'analisi attendibile.
Mercato immobiliare a Luzzara
Per quanto riguarda più in generale il comune di Luzzara, sono presenti al momento più di cento annunci per
case indipendenti in vendita (meno del 5% dell'intera provincia)
e il maggior numero di annunci per questa tipologia sono relativi alla zona di Codisotto.
Possiamo inoltre considerare che in tutto il comune negli ultimi 6 mesi, i prezzi per case indipendenti in vendita sono
in debole diminuzione (-1,65%).
NOVITÀ Il risultato che vedi dipende dai dati che siamo riusciti ad estrarre dall'annuncio: ottieni una stima più accuranta di questo immobile, inserendo dati più precisi.
N.B. L'Opinione di Caasa® è un servizio sperimentale realizzato tramite tecniche di Intelligenza Artificiale, fornito senza alcuna garanzia di correttezza e completezza. Leggi il disclaimer o segnalaci un problema.
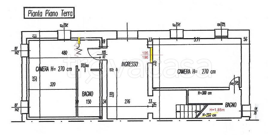
IMMAGINI
IN SINTESI
PROPOSTO DA:
Case all'Asta
DESCRIZIONE
con giardino con angolo cottura in asta giudiziaria
Porzione di casa su più livelli con cinque camere e giardino il piano terra è composto da cucina/soggiorno, disimpegno, camera, due bagni e scala che conduce al piano primo, il quale consiste in disimpegno, camera da letto, bagno e camera uso monoloc […]
