Valutazione immobiliare indipendente, accurata e gratuita
Locale commerciale in vendita a Gualtieri in zona Santa Vittoria a 88.000 € (cod.659ee701)
Caasa non ha sufficienti informazioni per commentare il locale commerciale a Gualtieri Santa Vittoria - 659ee701.
Analisi immobiliare
I dati in posseso di Caasa per quest'immobile sono insufficienti, inaffidabili o contraddittori per proporre un'analisi attendibile.
Mercato immobiliare a Gualtieri
Per quanto riguarda più in generale il comune di Gualtieri, sono presenti al momento più di dieci annunci per
locali commerciali in vendita (meno del 5% dell'intera provincia)
e il maggior numero di annunci per questa tipologia sono relativi proprio alla zona di Santa Vittoria.
NOVITÀ Il risultato che vedi dipende dai dati che siamo riusciti ad estrarre dall'annuncio: ottieni una stima più accuranta di questo immobile, inserendo dati più precisi.
N.B. L'Opinione di Caasa® è un servizio sperimentale realizzato tramite tecniche di Intelligenza Artificiale, fornito senza alcuna garanzia di correttezza e completezza. Leggi il disclaimer o segnalaci un problema.
IMMAGINI
IN SINTESI
PROPOSTO DA:
PRIMA IMMOBILIARE SRL
DESCRIZIONE
con cantina con termocondizionamento con riscaldamento autonomo
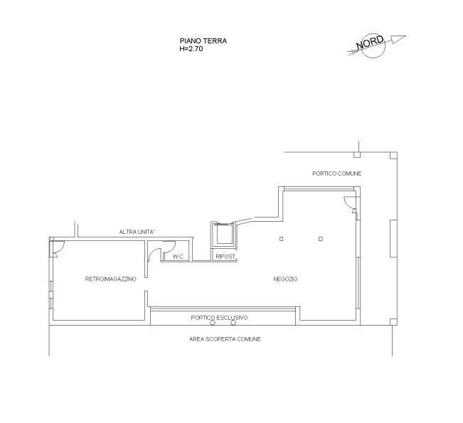
V000279 - GUALTIERI (SANTA VITTORIA) - Proponiamo in esclusiva negozio sito nel condominio "ai portici" così composto: negozio, ripostiglio, bagno, retro-magazzino dotato di porta per l'accesso dell'area cortiliva e portico esclusivo. Sono presenti tre accessi, uno su via Berlinguer, uno su via D'Antona ed uno secondario sul lato est dell'area privata condominiale. Chiediamo cortesemente, qualora interessati all'immobile in oggetto, di lasciare il recapito telefonico oltre che quello della mail, per poter essere ricontattati, grazie


