Valutazione immobiliare indipendente, accurata e gratuita

Appartamento in vendita a Cavriago a 139.000 € (cod.64e0bbc5)

Caasa non ha sufficienti informazioni per commentare l'appartamento in vendita a Cavriago - 64e0bbc5.

Analisi immobiliare
I dati in posseso di Caasa per quest'immobile sono insufficienti, inaffidabili o contraddittori per proporre un'analisi attendibile.
Mercato immobiliare a Cavriago
Per quanto riguarda più in generale il comune di Cavriago, sono presenti al momento più di cinquanta annunci per appartamenti in vendita (meno dell'1% dell'intera provincia) .

Relativamente alla dinamica dei prezzi, possiamo dire che negli ultimi 6 mesi i prezzi medi in tutto il comune per appartamenti in vendita sono sostanzialmente stabili (-0,93%).

NOVITÀ Il risultato che vedi dipende dai dati che siamo riusciti ad estrarre dall'annuncio: ottieni una stima più accuranta di questo immobile, inserendo dati più precisi.

N.B. L'Opinione di Caasa® è un servizio sperimentale realizzato tramite tecniche di Intelligenza Artificiale, fornito senza alcuna garanzia di correttezza e completezza. Leggi il disclaimer o segnalaci un problema.

IMMAGINI

IN SINTESI

Prezzo:
139.000 €
Superficie:
135 m²
Prezzo al m²:
1029 €/m²
Piano:
n.d.
Bagni:
n.d.
Classe energetica:
F
Città:
Cavriago (RE)
Zona OMI:
B2 (CENTRO ABITATO)
Indirizzo:
Pubblicato:
lun 22 settembre 2025

PROPOSTO DA:

Sonja Guberinic

DESCRIZIONE

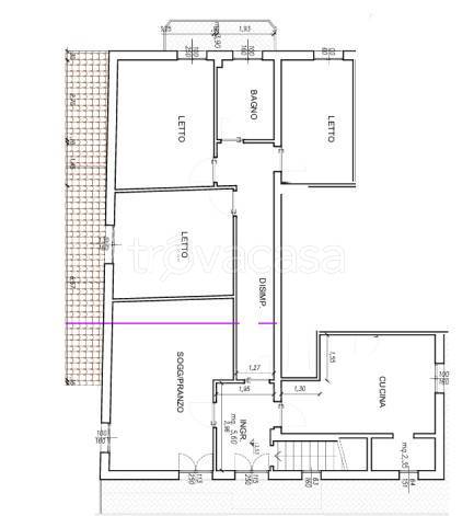
con posto auto con garage con giardino con cucina abitabile

Appartamento in vendita Cavriago Reggio Emilia Reggio Emilia - Comune di Cavriago - via Del Canale 3 - in contesto bifamiliare piano primo scon accesso al piano terra senza barriere architettoniche e con giardino giardino di pertinenza, SG IMMOBOLI propone in esclusiva quadrilocale con ingresso indipendente. L'appartamento abitabile, attualmente è composto da ingresso, grande soggiorno, cucina abitabile, tre camere bagno, locale lavanderia e bancone. L'immobile si presta facilmente ad eventuali modifiche rispetto alla disposizione attuale degli spazi. La palazzina composta da sole due unità abitative è in perfette condizioni e posizionata in zona centrale e ben servita. Completano la proprietà due posti auto e grande giardino di proprietà. PER INFORMAZIONI E/O FISSARE UN SOPRALLUOGO CONTATTARE IL NOSTRO AGENTE A REGGIO EMILIA AL 3517986723 PREFERIBILMENTE MESSAGGIO SU WHATSAPP

  • immobiliare.it
  • trovacasa.net