Valutazione immobiliare indipendente, accurata e gratuita
L'Opinione di Caasa® per l'appartamento in vendita ad Albinea a 310.000 € (cod.652beb37)
Secondo Caasa, per l'appartamento in vendita ad Albinea, la richiesta di 310.000 € è significativamente svantaggiosa rispetto agli annunci simili.
Analisi immobiliare
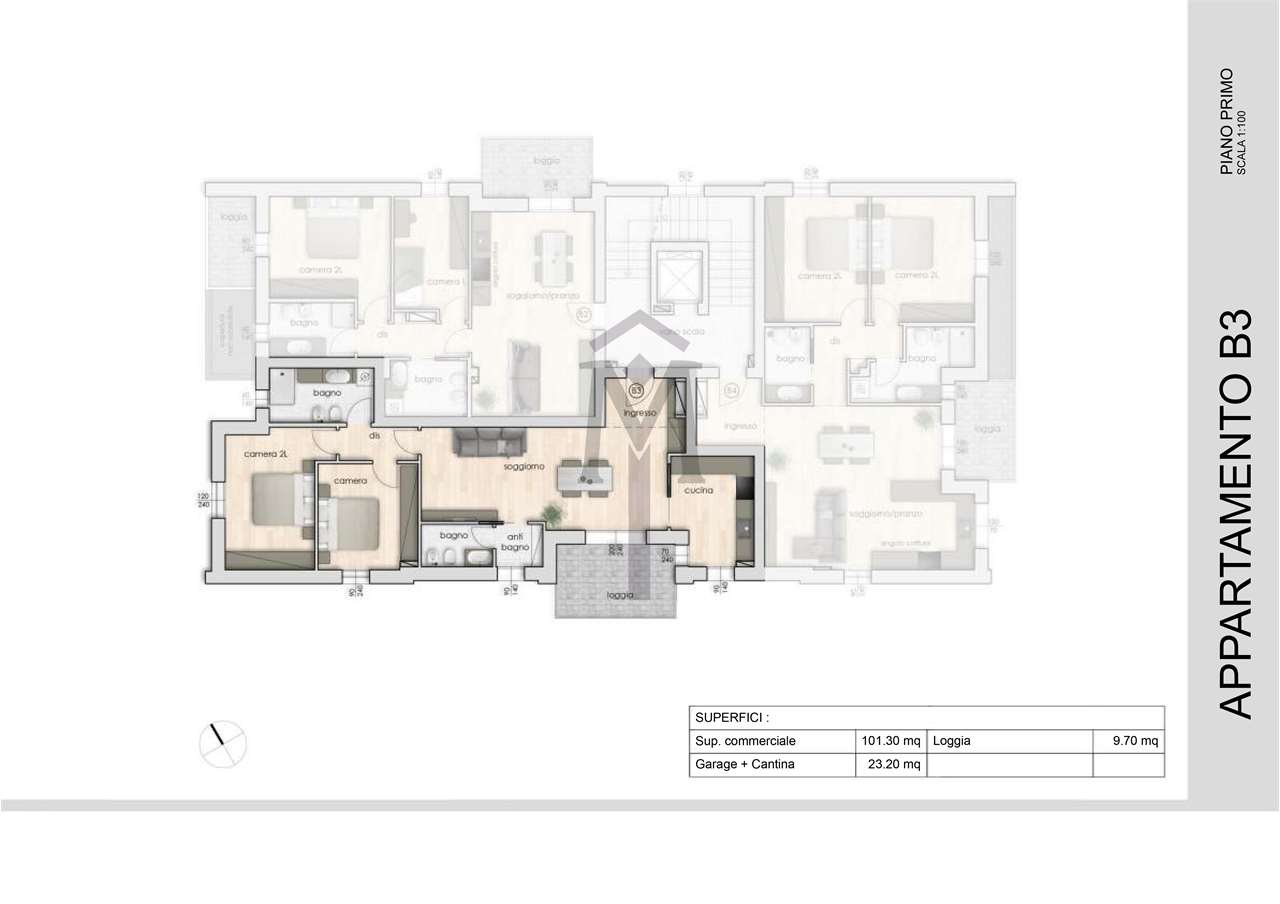
L'appartamento, situato nella zona OMI B2, è proposto in vendita (da MELLONI IMMOBILIARE) a
310.000 € per una
superficie commerciale di
81 m² e quindi ad un prezzo per metro quadrato pari a
3827 €/m²
.
Tale valore
è decisamente superiore a quello stimato da Caasa per immobili in vendita simili per tipologia e caratteristiche e localizzati nella stessa zona OMI, che è compreso tra
3.216 €/m² e
3.457 €/m².
Grazie alla conoscenza con buona approssimazione della localizzazione dell'immobile, è stato possibile utilizzare come raffronto i dati medi elaborati esattamente nella zona OMI di appertenenza (CENTRO - CAPOLUOGO). Anche se Caasa non è riuscita a determinare la classe energetica, ad affinare la stima hanno contribuito anche lo stato dell'immobile (di nuova costruzione) e la presenza di alcune caratteristiche significative come il garage o la disponibilità di una cantina. Per queste considerazioni i valori accettabili per l'offerta costituiscono un intervallo relativamente limitato.
Mercato immobiliare ad Albinea
Per quanto riguarda più in generale il comune di Albinea, sono presenti al momento più di cento annunci per
appartamenti in vendita (meno del 5% dell'intera provincia)
e il maggior numero di annunci per questa tipologia sono relativi alla zona di Borzano.
La dinamica dei prezzi in tutto il comune mostra che negli ultimi 6 mesi, i prezzi per appartamenti in vendita sono
in aumento (+3,51%).
NOVITÀ Il risultato che vedi dipende dai dati che siamo riusciti ad estrarre dall'annuncio: ottieni una stima più accuranta di questo immobile, inserendo dati più precisi.
N.B. L'Opinione di Caasa® è un servizio sperimentale realizzato tramite tecniche di Intelligenza Artificiale, fornito senza alcuna garanzia di correttezza e completezza. Leggi il disclaimer o segnalaci un problema.
IMMAGINI
IN SINTESI
DESCRIZIONE
di nuova costruzione con posto auto con garage con cantina con terrazza di nuova costruzione con balcone con termocondizionamento con angolo cottura con riscaldamento autonomo
Proponiamo in centro ad Albinea, in palazzina attenta a tutti i comfort e al risparmio energetico, tre appartamenti al piano primo dagli 80 ai 102 mq. Gli immobili risultano composti da soggiorno con cucina/angolo cottura, due camere e due bagni oltre a logge. Possibilità di acquistare cantina e garage. PREZZO A PARTIRE DA 310.000





