Valutazione immobiliare indipendente, accurata e gratuita
Appartamento in vendita a Sant'Agata sul Santerno a 45.000 € (cod.658d2325)
Caasa non ha sufficienti informazioni per commentare l'appartamento in vendita a Sant'Agata sul Santerno - 658d2325.
Analisi immobiliare
I dati in posseso di Caasa per quest'immobile sono insufficienti, inaffidabili o contraddittori per proporre un'analisi attendibile.
Mercato immobiliare a Sant'Agata sul Santerno
Per quanto riguarda più in generale il comune di Sant'Agata sul Santerno, sono presenti al momento più di trenta annunci per
appartamenti in vendita (meno dell'1% dell'intera provincia) .
Relativamente alla dinamica dei prezzi, possiamo dire che negli ultimi 6 mesi i prezzi medi in tutto il comune per appartamenti in vendita sono
in forte aumento (+82,90%).
NOVITÀ Il risultato che vedi dipende dai dati che siamo riusciti ad estrarre dall'annuncio: ottieni una stima più accuranta di questo immobile, inserendo dati più precisi.
N.B. L'Opinione di Caasa® è un servizio sperimentale realizzato tramite tecniche di Intelligenza Artificiale, fornito senza alcuna garanzia di correttezza e completezza. Leggi il disclaimer o segnalaci un problema.
IMMAGINI
IN SINTESI
PROPOSTO DA:
Quimmo
DESCRIZIONE
di recente ristrutturazione con giardino con posto auto con garage in asta giudiziaria di recente ristrutturazione con angolo cottura senza ascensore
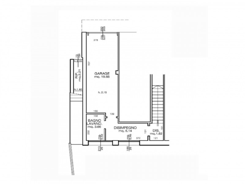
Quest'immobile viene venduto tramite asta online. Quota 1/2 di trilocale al piano terra con corte e garage sito a Sant'Agata sul Santerno (RA), in Via Ludovico Ariosto n. 6. Trattasi di appartamento ristrutturato con ingresso indipendente ricompreso in una palazzina a schiera di due piani fuori terra ed uno interrato, ubicata in zona residenziale tranquilla. Il bene è composto da open space cucina-soggiorno luminoso e funzionale, zona notte composta da una camera matrimoniale, una camera singola e un bagno. Una scala interna collega direttamente il piano abitativo al livello seminterrato, dove sono presenti un secondo bagno/lavanderia e un garage. Gli interventi recenti hanno interessato finiture, impianti, pavimentazioni e tramezzature. Per maggiori informazioni vedasi documentazione allegata. Quimmo.it: iniziativa tech del Gruppo illimity specializzata nell'intermediazione digitale di beni immobili provenienti da tribunali, nuovi sviluppi immobiliari, financial institutions e libero mercato. Da oltre 10 anni Quimmo.it è il portale specializzato nella compravendita di immobili tramite asta giudiziaria. Il portale è infatti iscritto nel Registro Gestori della vendita telematica e nell'elenco dei siti web autorizzati allo svolgimento della pubblicità legale. Con Quimmo puoi scegliere tra migliaia di immobili di ogni tipo e partecipare alle aste online per acquistare la soluzione più adatta alle tue esigenze. Affidati all'esperienza decennale dei nostri esperti e richiedi l'assistenza gratuita per la presentazione e compilazione dell'offerta. Contattaci subito


