Valutazione immobiliare indipendente, accurata e gratuita
L'Opinione di Caasa® per la casa indipendente in vendita a Ravenna in zona Sant'Alberto a 298.000 € (cod.6563d3f1)
Secondo Caasa, per la casa indipendente a Ravenna in zona Sant'Alberto, la richiesta di 298.000 € è leggermente vantaggiosa rispetto agli annunci simili.
Analisi immobiliare
La casa indipendente, situata nella zona OMI E10, è proposta in vendita a
298.000 € per una
superficie commerciale di
206 m² e quindi ad un prezzo per metro quadrato pari a
1446 €/m²
.
Tale prezzo
è leggeremente più conveniente di quello stimato da Caasa per immobili in vendita simili per tipologia e caratteristiche e localizzati nella stessa zona OMI, che è compreso tra
1.595 €/m² e
1.773 €/m².
Grazie alla conoscenza con buona approssimazione della localizzazione dell'immobile, è stato possibile utilizzare come raffronto i dati medi elaborati esattamente nella zona OMI di appertenenza (SANT`ALBERTO) per case indipendenti (da 855 €/m² a 2.000 €/m²) e per case semindipendenti (da 845 €/m² a 2.060 €/m²). Anche se Caasa non è riuscita a determinare la classe energetica, ad affinare la stima ha contribuito anche lo stato dell'immobile (di recente ristrutturazione). Per queste ragioni i valori accettabili per l'offerta costituiscono un intervallo relativamente limitato.
Mercato immobiliare a Ravenna
Per quanto riguarda più in generale la città di Ravenna, sono presenti al momento ben oltre 2.000 annunci per
case indipendenti in vendita (quasi la metà dell'intera provincia)
e il maggior numero di annunci per questa tipologia sono relativi alla zona di Centro Storico, mentre la zona di Sant'Alberto risulta molto meno attiva considerando il numero di annunci presenti.
La richiesta media nella zona dove sorge la casa indipendente (Sant'Alberto) è pari a
1.370 €/m², di poco superiore al valore della zona Mezzano che è la più economica della città .
Relativamente alla dinamica dei prezzi, possiamo dire che negli ultimi 6 mesi i prezzi medi in tutta la città per case indipendenti in vendita sono
sostanzialmente stabili (+0,80%).
NOVITÀ Il risultato che vedi dipende dai dati che siamo riusciti ad estrarre dall'annuncio: ottieni una stima più accuranta di questo immobile, inserendo dati più precisi.
N.B. L'Opinione di Caasa® è un servizio sperimentale realizzato tramite tecniche di Intelligenza Artificiale, fornito senza alcuna garanzia di correttezza e completezza. Leggi il disclaimer o segnalaci un problema.
IMMAGINI
IN SINTESI
PROPOSTO DA:
Affiliato Tecnocasa: DOMUS IMMOBILIARE SRL - Tecnocasa
DESCRIZIONE
di recente ristrutturazione con giardino di recente ristrutturazione di recente costruzione
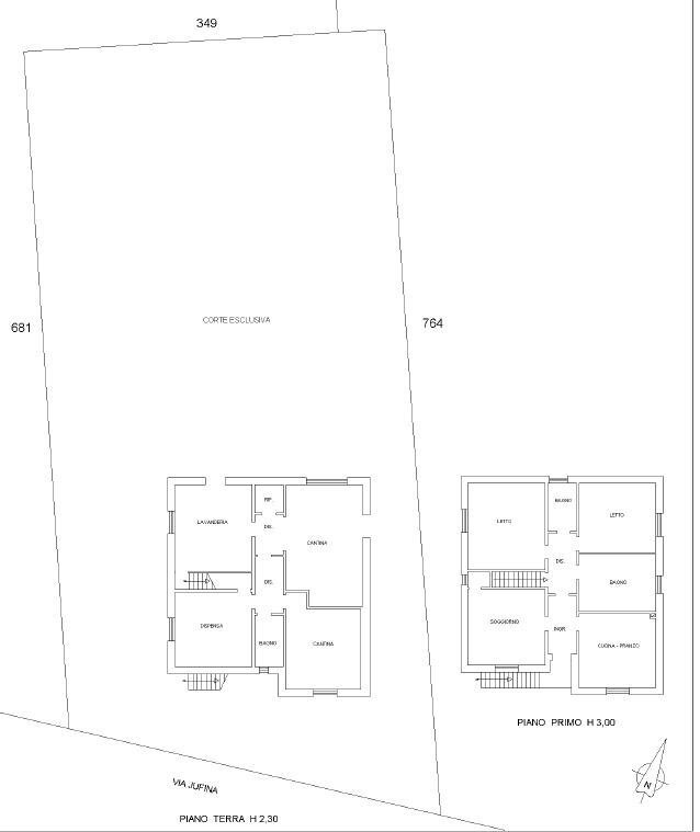
RAVENNA, località SANT'ALBERTO. Alle porte di Sant'Alberto proponiamo in vendita una casa indipendente di circa 210 mq, di recente ristrutturazione. Questa proprietà è divisa in due piani, al piano terra un interessante disposizione che potrebbe tranquillamente essere un secondo appartamento, mentre al primo piano troviamo soggiorno, cucina, 3 ampie camere da letto e 2 bagni. Plus dell'immobile anche il fatto che offra un ampio giardino privato di circa 800 mq, ideale per chi cerca uno spazio verde da personalizzare; terreno tra l'altro edificabile, ad oggi per una superficie di circa 81 mq al piano: Gli infissi nuovi in tutta la casa assicurano un'ottima efficienza energetica e isolamento acustico. Il tetto è stato recentemente rifatto a nuovo, è presente cappotto esterno su tutti i lati della casa, e per quanto riguarda l'interno ad oggi è stata portata a termine la ristrutturazione del primo piano, mentre il piano terra è ancora in uno stato di grezzo avanzato. Questa casa rappresenta un'opportunità unica per chi desidera vivere in un contesto tranquillo, senza rinunciare alla comodità dei servizi cittadini, che sono per altro molto vicini; come permette anche la vicinanza alla città ed alle località di mare. CHIAMACI per ulteriori informazioni o per fissare un appuntamento allo 0544.1885644 oppure invia una mail a raca0 e sarai ricontattato al più presto. Ogni agenzia ha un proprio titolare ed è autonoma - Le presenti informazioni non costituiscono elemento contrattuale

