Valutazione immobiliare indipendente, accurata e gratuita
Casa indipendente in vendita a Lugo a 109.000 € (cod.654c92c6)
Caasa non ha sufficienti informazioni per commentare la casa indipendente in vendita a Lugo - 654c92c6.
Analisi immobiliare
I dati in posseso di Caasa per quest'immobile sono insufficienti, inaffidabili o contraddittori per proporre un'analisi attendibile.
Mercato immobiliare a Lugo
Per quanto riguarda più in generale la città di Lugo, sono presenti al momento più di 300 annunci per
case indipendenti in vendita (meno del 10% dell'intera provincia)
e il maggior numero di annunci per questa tipologia sono relativi alla zona di Voltana.
Possiamo inoltre considerare che in tutta la città negli ultimi 6 mesi, i prezzi per case indipendenti in vendita sono
in debole aumento (+1,37%).
NOVITÀ Il risultato che vedi dipende dai dati che siamo riusciti ad estrarre dall'annuncio: ottieni una stima più accuranta di questo immobile, inserendo dati più precisi.
N.B. L'Opinione di Caasa® è un servizio sperimentale realizzato tramite tecniche di Intelligenza Artificiale, fornito senza alcuna garanzia di correttezza e completezza. Leggi il disclaimer o segnalaci un problema.
IMMAGINI
IN SINTESI
DESCRIZIONE
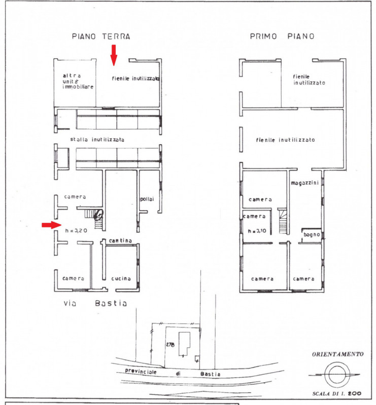
da ristrutturare con posto auto con garage con giardino con cantina da ristrutturare con cucina abitabile senza ascensore
Se stai cercando un'opportunità per realizzare una casa completamente su misura immersa nel verde, questo casolare di campagna totalmente da ristrutturare rappresenta una soluzione ideale. La proprietà si trova in posizione tranquilla, nella campagna a pochi minuti da Lugo, e offre ampi spazi e grande potenziale di valorizzazione. Il fabbricato principale si sviluppa su due livelli ed è interamente da ristrutturare. Al piano terra sono presenti ingresso, cucina abitabile, soggiorno, una camera e una cantina. Al piano primo si trovano quattro camere da letto, un bagno e un magazzino. Gli ambienti, grazie alle metrature generose, permettono una completa ridistribuzione degli spazi secondo le proprie esigenze. Completa la proprietà un fienile a doppio volume, anch'esso da ristrutturare, con piano terra in precedenza adibito a stalla e piano superiore a fienile, ideale per la realizzazione di ulteriori spazi abitativi, uno studio, un laboratorio o un'area dedicata agli hobby. È inoltre presente un garage al piano terra. L'immobile è completamente indipendente ed è circondato da un giardino pertinenziale di circa 1.000 mq, perfetto per chi desidera vivere all'aria aperta, creare un orto o trascorrere momenti di relax in famiglia. La posizione garantisce privacy e tranquillità, pur restando comoda ai principali servizi e alle comodità offerte dal centro di Lugo. Questa proprietà rappresenta un'ottima opportunità per chi è alla ricerca di un progetto di ristrutturazione totale, con ampi spazi e grande possibilità di personalizzazione. Chiamaci subito per informazioni




