Valutazione immobiliare indipendente, accurata e gratuita
L'Opinione di Caasa® per l'appartamento in vendita a Faenza a 399.000 € (cod.65a2a331)
Secondo Caasa, per l'appartamento in vendita a Faenza, la richiesta di 399.000 € è significativamente vantaggiosa rispetto agli annunci simili.
Analisi immobiliare
L'appartamento, situato vicino a Via Piero della Francesca nella zona OMI D3, è proposto in vendita (da IL LABIRINTO IMMOBILIARE DI BRUNETTI MARIA CRISTINA SNC) a
399.000 € per una
superficie commerciale di
160 m² e quindi ad un prezzo per metro quadrato pari a
2493 €/m²
.
Tale prezzo
è più conveniente di quello stimato da Caasa per immobili in vendita simili per tipologia e caratteristiche e localizzati nella stessa zona OMI, che è compreso tra
2.766 €/m² e
2.954 €/m².
Grazie alla conoscenza con buona approssimazione della localizzazione dell'immobile, è stato possibile utilizzare come raffronto i dati medi elaborati esattamente nella zona OMI di appertenenza (ZONA ARTIGIANALE INDUSTRIALE). Anche se Caasa non è riuscita a determinare la classe energetica, ad affinare la stima ha contribuito anche la presenza di alcune caratteristiche significative come la disponibilità di una cantina, il garage o la presenza dell'ascensore. In virtù di queste considerazioni i valori accettabili per l'offerta costituiscono un intervallo relativamente limitato.
Mercato immobiliare a Faenza
Per quanto riguarda più in generale la città di Faenza, sono presenti al momento circa mille annunci per
appartamenti in vendita (quasi il 20% dell'intera provincia)
e il maggior numero di annunci per questa tipologia sono relativi alla zona di Centro Storico.
Relativamente alla dinamica dei prezzi, possiamo dire che negli ultimi 6 mesi i prezzi medi in tutta la città per appartamenti in vendita sono
in aumento (+4,58%).
NOVITÀ Il risultato che vedi dipende dai dati che siamo riusciti ad estrarre dall'annuncio: ottieni una stima più accuranta di questo immobile, inserendo dati più precisi.
N.B. L'Opinione di Caasa® è un servizio sperimentale realizzato tramite tecniche di Intelligenza Artificiale, fornito senza alcuna garanzia di correttezza e completezza. Leggi il disclaimer o segnalaci un problema.
IMMAGINI
IN SINTESI
PROPOSTO DA:
IL LABIRINTO IMMOBILIARE DI BRUNETTI MARIA CRISTINA SNC
CORSO MATTEOTTI,22, Faenza (RA)
DESCRIZIONE
con posto auto con garage con cantina con terrazza con ascensore
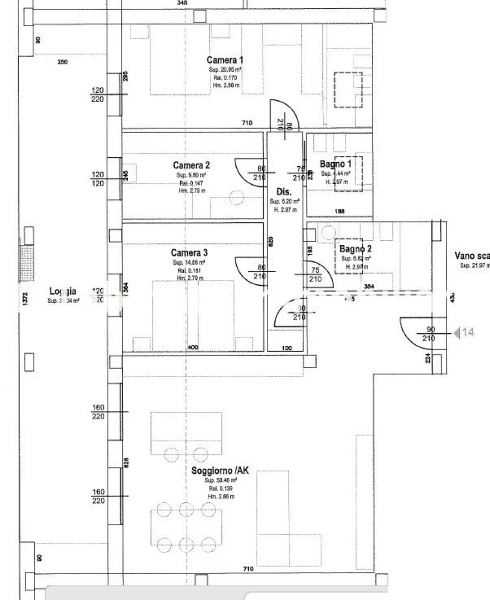
Faenza, in zona strategica vicino ai servizi e alle principali vie di raccordo, in NUOVO COMPLESSO in fase di PROGETTAZIONE chiamato NEXT HOME, che prevede la realizzazione di DUE PALAZZINE da 15 appartamenti ognuna, proponiamo APPARTAMENTO posto al TERZO PIANO ATTICO servito da ASCENSORE così composto: ingresso su soggiorno con cucina a vista di mq. 50,46 in affaccio a LOGGIA ESCLUSIVA di mq. 38, disimpegno notte, TRE CAMERE DA LETTO, tutte affacciate alla Loggia e DUE BAGNI. Possibilità di acquisto GARAGE e/o CANTINA e/o POSTO AUTO. Finiture personalizzabili. IMPIANTO FOTOVOLTAICO Privato e per le parti comuni. INFORMAZIONI SU PROGETTI E PRENOTAZIONI IN AGENZIA. Rif. UNITA' 14


