Valutazione immobiliare indipendente, accurata e gratuita
L'Opinione di Caasa® per l'appartamento in vendita a Faenza in zona Pieve Ponte a 175.000 € (cod.6577a22c)
Secondo Caasa, per l'appartamento a Faenza in zona Pieve Ponte, la richiesta di 175.000 € è leggermente svantaggiosa rispetto agli annunci simili.
Analisi immobiliare
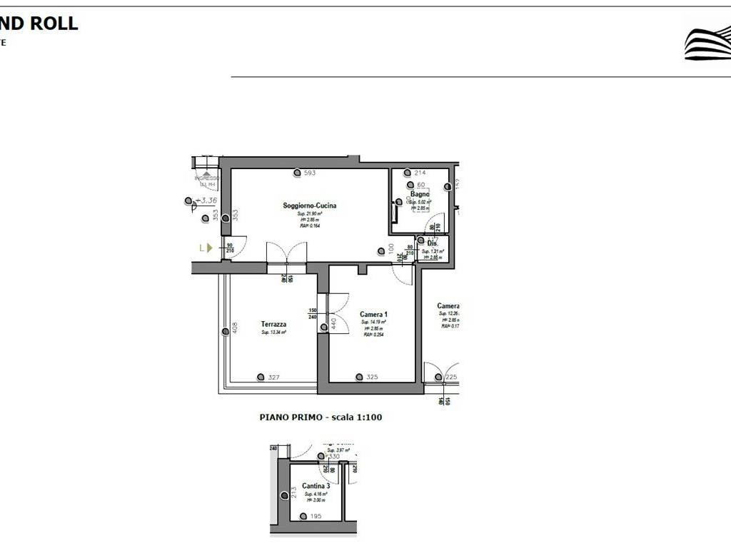
L'appartamento, situato nella zona OMI D3, è proposto in vendita (da GARONI IMMOBILIARE) a
175.000 € per una
superficie commerciale di
70 m² e quindi ad un prezzo per metro quadrato pari a
2500 €/m²
.
Questo valore
è un po' più alto di quello stimato da Caasa per immobili in vendita simili per tipologia e caratteristiche e localizzati nella stessa zona OMI, che è compreso tra
2.256 €/m² e
2.412 €/m².
Grazie alla conoscenza con buona approssimazione della localizzazione dell'immobile, è stato possibile utilizzare come raffronto i dati medi elaborati esattamente nella zona OMI di appertenenza (ZONA ARTIGIANALE INDUSTRIALE) per appartamenti (da 1.585 €/m² a 2.695 €/m²). Anche se Caasa non è riuscita a determinare la classe energetica, ad affinare la stima ha contribuito anche lo stato dell'immobile (di nuova costruzione). Per questi motivi l'intervallo dei valori accettabili per l'offerta è relativamente limitato.
Mercato immobiliare a Faenza
Per quanto riguarda più in generale la città di Faenza, sono presenti al momento oltre 500 annunci per
appartamenti in vendita (quasi il 20% dell'intera provincia)
e il maggior numero di annunci per questa tipologia sono relativi alla zona di Centro Storico, mentre la zona di Pieve Ponte risulta molto meno attiva considerando il numero di annunci presenti.
Per quanto riguarda la richiesta media in zona Pieve Ponte, dove sorge l'appartamento, essa è pari a circa
2.315 €/m² per appartamenti in vendita.
Per quanto riguarda la dinamica dei prezzi, negli ultimi 6 mesi i prezzi medi in tutta la città per appartamenti in vendita sono
in forte aumento (+11,75%).
NOVITÀ Il risultato che vedi dipende dai dati che siamo riusciti ad estrarre dall'annuncio: ottieni una stima più accuranta di questo immobile, inserendo dati più precisi.
N.B. L'Opinione di Caasa® è un servizio sperimentale realizzato tramite tecniche di Intelligenza Artificiale, fornito senza alcuna garanzia di correttezza e completezza. Leggi il disclaimer o segnalaci un problema.
