Valutazione immobiliare indipendente, accurata e gratuita
L'Opinione di Caasa® per l'appartamento in vendita a Faenza a 399.000 € (cod.65636972)
Secondo Caasa, per l'appartamento in vendita a Faenza, la richiesta di 399.000 € è leggermente vantaggiosa rispetto agli annunci simili.
Analisi immobiliare
L'appartamento, situato nei pressi di Via Piero della Francesca nella zona OMI D3, è proposto in vendita (da IL LABIRINTO IMMOBILIARE DI BRUNETTI MARIA CRISTINA SNC) a
399.000 € per una
superficie commerciale di
160 m² e quindi ad un prezzo per metro quadrato pari a
2493 €/m²
.
Questo prezzo
è di poco inferiore a quello stimato da Caasa per immobili in vendita simili per tipologia e caratteristiche e localizzati nella stessa zona OMI, che è compreso tra
2.687 €/m² e
2.880 €/m².
Grazie alla conoscenza con buona approssimazione della localizzazione dell'immobile, è stato possibile utilizzare come raffronto i dati medi elaborati esattamente nella zona OMI di appertenenza (ZONA ARTIGIANALE INDUSTRIALE). Anche se Caasa non è riuscita a determinare la classe energetica, ad affinare la stima ha contribuito anche la presenza di alcune caratteristiche significative come il garage, la disponibilità di una cantina o la presenza dell'ascensore. Per queste considerazioni l'intervallo dei valori accettabili per l'offerta è relativamente limitato.
Mercato immobiliare a Faenza
Per quanto riguarda più in generale la città di Faenza, sono presenti al momento oltre 500 annunci per
appartamenti in vendita (quasi il 20% dell'intera provincia)
e il maggior numero di annunci per questa tipologia sono relativi alla zona di Centro Storico.
Possiamo inoltre considerare che in tutta la città negli ultimi 6 mesi, i prezzi per appartamenti in vendita sono
in forte aumento (+13,24%).
NOVITÀ Il risultato che vedi dipende dai dati che siamo riusciti ad estrarre dall'annuncio: ottieni una stima più accuranta di questo immobile, inserendo dati più precisi.
N.B. L'Opinione di Caasa® è un servizio sperimentale realizzato tramite tecniche di Intelligenza Artificiale, fornito senza alcuna garanzia di correttezza e completezza. Leggi il disclaimer o segnalaci un problema.
IMMAGINI
IN SINTESI
PROPOSTO DA:
IL LABIRINTO IMMOBILIARE DI BRUNETTI MARIA CRISTINA SNC
CORSO MATTEOTTI,22, Faenza (RA)
DESCRIZIONE
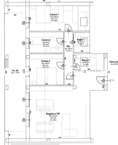
con posto auto con garage con cantina con terrazza con ascensore
Faenza, in zona strategica vicino ai servizi e alle principali vie di raccordo, in NUOVO COMPLESSO in fase di PROGETTAZIONE che prevede la realizzazione di DUE PALAZZINE da 15 appartamenti ognuna, proponiamo APPARTAMENTO posto al TERZO PIANO ATTICO servito da ASCENSORE così composto: ingresso su soggiorno con cucina a vista di mq. 50,46 in affaccio a LOGGIA ESCLUSIVA di mq. 38, disimpegno notte, TRE CAMERE DA LETTO, tutte affacciate alla Loggia e DUE BAGNI. Possibilità di acquisto GARAGE e/o CANTINA e/o POSTO AUTO. Finiture personalizzabili. IMPIANTO FOTOVOLTAICO Privato e per le parti comuni. INFORMAZIONI SU PROGETTI E PRENOTAZIONI IN AGENZIA. Rif. UNITA' 14

