Valutazione immobiliare indipendente, accurata e gratuita
L'Opinione di Caasa® per l'appartamento in vendita a Faenza a 175.000 € (cod.6559ec10)
Secondo Caasa, per l'appartamento in vendita a Faenza, la richiesta di 175.000 € è equilibrata rispetto agli annunci simili.
Analisi immobiliare
L'appartamento, situato nella zona OMI D3, è proposto in vendita (da IL LABIRINTO IMMOBILIARE DI BRUNETTI MARIA CRISTINA SNC) a
175.000 € per una
superficie commerciale di
71 m² e quindi ad un prezzo per metro quadrato pari a
2464 €/m²
.
Questo valore
è perfettamente allineato a quello stimato da Caasa per immobili in vendita simili per tipologia e caratteristiche e localizzati nella stessa zona OMI, che è compreso tra
2.388 €/m² e
2.560 €/m².
Grazie alla conoscenza con buona approssimazione della localizzazione dell'immobile, è stato possibile utilizzare come raffronto i dati medi elaborati esattamente nella zona OMI di appertenenza (ZONA ARTIGIANALE INDUSTRIALE). Anche se Caasa non è riuscita a determinare la classe energetica, ad affinare la stima hanno contribuito anche lo stato dell'immobile (di nuova costruzione) e la presenza di alcune caratteristiche significative come il posto auto o la disponibilità di una cantina. Per queste ragioni l'intervallo dei valori accettabili per l'offerta è relativamente limitato.
Mercato immobiliare a Faenza
Per quanto riguarda più in generale la città di Faenza, sono presenti al momento circa mille annunci per
appartamenti in vendita (quasi il 20% dell'intera provincia)
e il maggior numero di annunci per questa tipologia sono relativi alla zona di Centro Storico.
Per quanto riguarda la dinamica dei prezzi, negli ultimi 6 mesi i prezzi medi in tutta la città per appartamenti in vendita sono
in aumento (+4,58%).
NOVITÀ Il risultato che vedi dipende dai dati che siamo riusciti ad estrarre dall'annuncio: ottieni una stima più accuranta di questo immobile, inserendo dati più precisi.
N.B. L'Opinione di Caasa® è un servizio sperimentale realizzato tramite tecniche di Intelligenza Artificiale, fornito senza alcuna garanzia di correttezza e completezza. Leggi il disclaimer o segnalaci un problema.
IMMAGINI
IN SINTESI
PROPOSTO DA:
IL LABIRINTO IMMOBILIARE DI BRUNETTI MARIA CRISTINA SNC
CORSO MATTEOTTI,22, Faenza (RA)
DESCRIZIONE
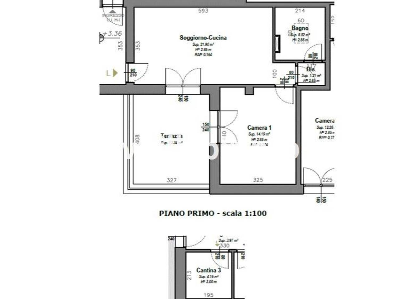
di nuova costruzione con posto auto con cantina con terrazza di nuova costruzione con termocondizionamento
NUOVO COMPLESSO in fase di realizzazione tra FAENZA E CASTEL BOLOGNESE denominato "DANCING RESIDENCE", composto da 10 unità abitative di diverse tipologie e metrature. Vi proponiamo BILOCALE posto al primo piano con LOGGIA e POSTO AUTO ESCLUSIVI, chiamato "ROCK AND ROOL". L' appartamento è composto da una sala con CUCINA A VISTA in affaccio alla LOGGIA PRIVATA, a cui si affaccia anche la CAMERA MATRIMONIALE, disimpegno e BAGNO. Completano la proprietà UN POSTO AUTO e una cantina privata. Frutto di un completo recupero di una Piccola Palazzina a pochi chilometri dalla città, il complesso è situato in una posizione strategica che garantisce comodità negli spostamenti. Impianti di ultimissima generazione per garantire costi di gestione contenuti tra cui l' Impianto di Raffrescamento e Riscaldamento ad aria ed i PANNELLI FOTOVOLTAICI AUTONOMI. Possibilità di personalizzare le finiture. Nelle immagini trovate idee per l'arredo e design degli interni. Informazioni e Planimetria in Agenzia Cl. En. di progetto A Richiesta € 175.000 + iva

