Valutazione immobiliare indipendente, accurata e gratuita
L'Opinione di Caasa® per l'appartamento in vendita a Faenza a 160.000 € (cod.65515831)
Secondo Caasa, per l'appartamento in vendita a Faenza, la richiesta di 160.000 € è significativamente vantaggiosa rispetto agli annunci simili.
Analisi immobiliare
L'appartamento, situato nella zona OMI D4, è proposto in vendita (da IL LABIRINTO IMMOBILIARE DI BRUNETTI MARIA CRISTINA SNC) a
160.000 € per una
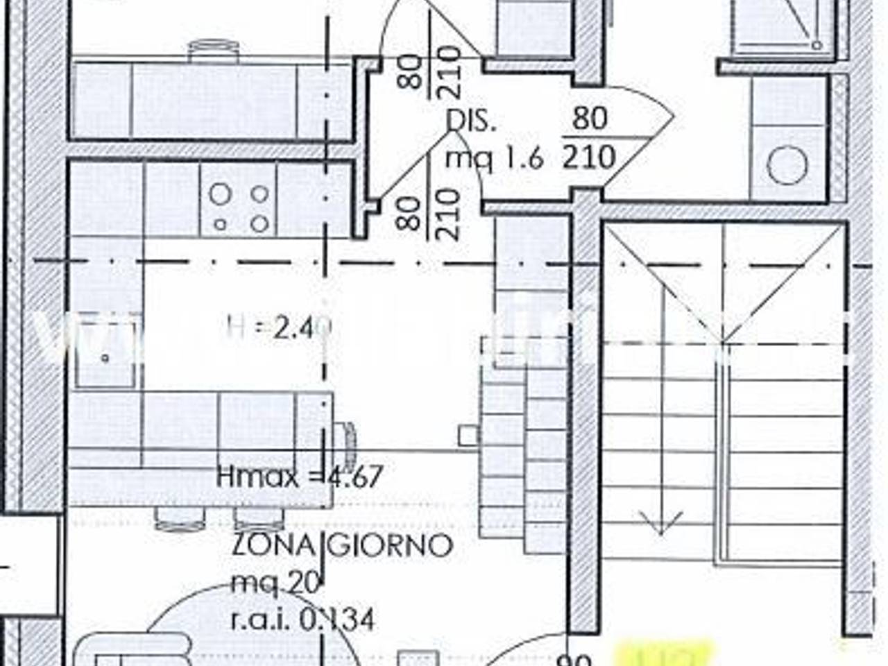
superficie commerciale di
72 m² e quindi ad un prezzo per metro quadrato pari a
2222 €/m²
.
Tale prezzo
è più conveniente di quello stimato da Caasa per immobili in vendita simili per tipologia, caratteristiche, classe energetica e localizzati nella stessa zona OMI, che è compreso tra
2.887 €/m² e
3.094 €/m².
La conoscenza con buona approssimazione della localizzazione dell'immobile ha consentito di utilizzare come raffronto i dati medi elaborati esattamente nella zona OMI di appertenenza (ZONA PERIFERICA RESIDENZIALE). Inoltre, Caasa ha potuto affinare la stima anche con la conoscenza della classe energetica (A) oltre che dello stato dell'immobile (di recente ristrutturazione) e di alcune caratteristiche significative come il posto auto o la climatizzazione. Per queste considerazioni i valori accettabili per l'offerta costituiscono un intervallo abbastanza limitato.
Mercato immobiliare a Faenza
Per quanto riguarda più in generale la città di Faenza, sono presenti al momento circa mille annunci per
appartamenti in vendita (quasi il 20% dell'intera provincia)
e il maggior numero di annunci per questa tipologia sono relativi alla zona di Centro Storico.
Relativamente alla dinamica dei prezzi, possiamo dire che negli ultimi 6 mesi i prezzi medi in tutta la città per appartamenti in vendita sono
in forte aumento (+13,24%).
NOVITÀ Il risultato che vedi dipende dai dati che siamo riusciti ad estrarre dall'annuncio: ottieni una stima più accuranta di questo immobile, inserendo dati più precisi.
N.B. L'Opinione di Caasa® è un servizio sperimentale realizzato tramite tecniche di Intelligenza Artificiale, fornito senza alcuna garanzia di correttezza e completezza. Leggi il disclaimer o segnalaci un problema.
IMMAGINI
immagine non disponibile
IN SINTESI
PROPOSTO DA:
IL LABIRINTO IMMOBILIARE DI BRUNETTI MARIA CRISTINA SNC
CORSO MATTEOTTI,22, Faenza (RA)
DESCRIZIONE
di recente ristrutturazione con posto auto con termocondizionamento di recente ristrutturazione con climatizzazione
Faenza - Zona San Marco in quartiere servito e ben collegato sia al centro che alle migliori vie di raccordo, in Complesso composto da TRE UNITA' che VERRA' COMPLETAMENTE RISTRUTTURATO, proponiamo BILOCALE CON POSTO AUTO ESCLUSIVO così composto: ingr […]
