Valutazione immobiliare indipendente, accurata e gratuita
L'Opinione di Caasa® per l'appartamento in vendita a Faenza a 175.000 € (cod.6550e24c)
Secondo Caasa, per l'appartamento in vendita a Faenza, la richiesta di 175.000 € è leggermente svantaggiosa rispetto agli annunci simili.
Analisi immobiliare
L'appartamento, situato nella zona OMI D3, è proposto in vendita (da IL LABIRINTO IMMOBILIARE DI BRUNETTI MARIA CRISTINA SNC) a
175.000 € per una
superficie commerciale di
70 m² e quindi ad un prezzo per metro quadrato pari a
2500 €/m²
.
Questo valore
è un po' più alto di quello stimato da Caasa per immobili in vendita simili per tipologia e caratteristiche e localizzati nella stessa zona OMI, che è compreso tra
2.291 €/m² e
2.465 €/m².
Grazie alla conoscenza con buona approssimazione della localizzazione dell'immobile, è stato possibile utilizzare come raffronto i dati medi elaborati esattamente nella zona OMI di appertenenza (ZONA ARTIGIANALE INDUSTRIALE). Anche se Caasa non è riuscita a determinare la classe energetica, ad affinare la stima ha contribuito anche la presenza di alcune caratteristiche significative come il posto auto o la disponibilità di una cantina. Per i motivi esposti l'intervallo dei valori accettabili per l'offerta è relativamente limitato.
Mercato immobiliare a Faenza
Per quanto riguarda più in generale la città di Faenza, sono presenti al momento circa mille annunci per
appartamenti in vendita (quasi il 20% dell'intera provincia)
e il maggior numero di annunci per questa tipologia sono relativi alla zona di Centro Storico.
Per quanto riguarda la dinamica dei prezzi, negli ultimi 6 mesi i prezzi medi in tutta la città per appartamenti in vendita sono
in forte aumento (+13,24%).
NOVITÀ Il risultato che vedi dipende dai dati che siamo riusciti ad estrarre dall'annuncio: ottieni una stima più accuranta di questo immobile, inserendo dati più precisi.
N.B. L'Opinione di Caasa® è un servizio sperimentale realizzato tramite tecniche di Intelligenza Artificiale, fornito senza alcuna garanzia di correttezza e completezza. Leggi il disclaimer o segnalaci un problema.
IMMAGINI
IN SINTESI
PROPOSTO DA:
IL LABIRINTO IMMOBILIARE DI BRUNETTI MARIA CRISTINA SNC
CORSO MATTEOTTI,22, Faenza (RA)
DESCRIZIONE
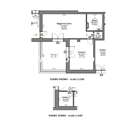
con posto auto con cantina con terrazza con termocondizionamento
Imminente realizzazione di un NUOVO COMPLESSO tra FAENZA E CASTEL BOLOGNESE denominato "DANCING RESIDENCE", composto da 10 unità abitative di diverse tipologie e metrature. Vi proponiamo BILOCALE posto al primo piano con LOGGIA e POSTO AUTO ESCLUSIVI, chiamato "ROCK AND ROOL". L' appartamento è composto da una sala con CUCINA A VISTA in affaccio alla LOGGIA PRIVATA, a cui si affaccia anche la CAMERA MATRIMONIALE, disimpegno e BAGNO. Completano la proprietà UN POSTO AUTO e una cantina privata. Frutto di un completo recupero di una Piccola Palazzina a pochi chilometri dalla città, il complesso è situato in una posizione strategica che garantisce comodità negli spostamenti. Impianti di ultimissima generazione per garantire costi di gestione contenuti tra cui l' Impianto di Raffrescamento e Riscaldamento ad aria ed i PANNELLI FOTOVOLTAICI AUTONOMI. Possibilità di personalizzare le finiture. Nelle immagini trovate idee per l'arredo e design degli interni. Informazioni e Planimetria in Agenzia Cl. En. di progetto A Richiesta € 175.000 + iva

