Valutazione immobiliare indipendente, accurata e gratuita
L'Opinione di Caasa® per l'appartamento in vendita a Faenza in zona Centro Storico a 260.000 € (cod.654be378)
Secondo Caasa, per l'appartamento a Faenza in zona Centro Storico, la richiesta di 260.000 € è significativamente svantaggiosa rispetto agli annunci simili.
Analisi immobiliare
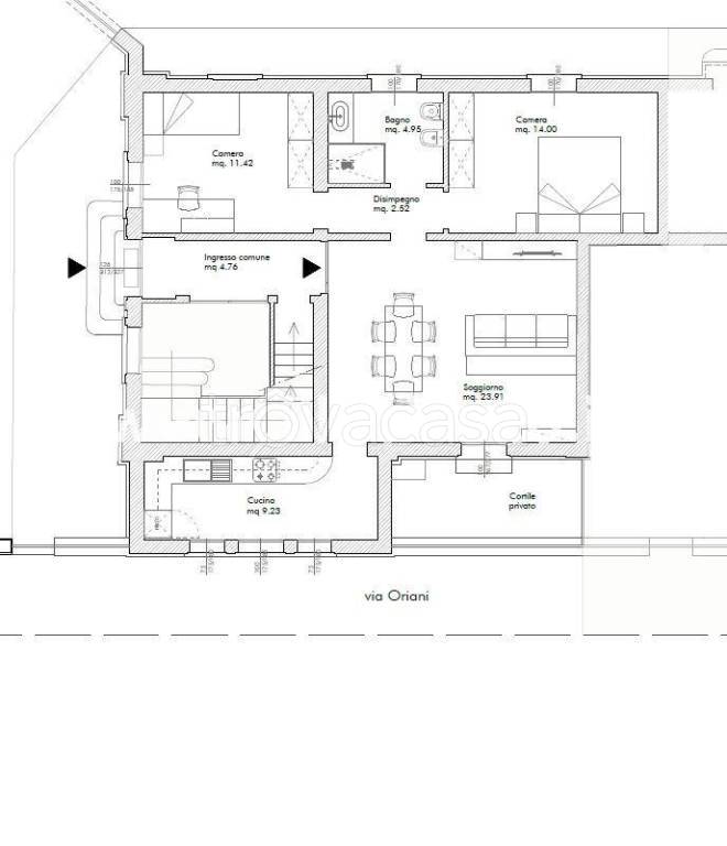
L'appartamento, situato nei pressi di Via Oriani nella zona OMI C1, è proposto in vendita (da IL LABIRINTO IMMOBILIARE DI BRUNETTI MARIA CRISTINA SNC) a
260.000 € per una
superficie commerciale di
86 m² e quindi ad un prezzo per metro quadrato pari a
3023 €/m²
.
Questo valore
è significativamente più alto di quello stimato da Caasa per immobili in vendita simili per tipologia e caratteristiche e localizzati nella stessa zona OMI, che è compreso tra
2.459 €/m² e
2.663 €/m².
Grazie alla conoscenza con buona approssimazione della localizzazione dell'immobile, è stato possibile utilizzare come raffronto i dati medi elaborati esattamente nella zona OMI di appertenenza (SEMICENTRALE RESIDENZIALE) per appartamenti (da 1.675 €/m² a 3.020 €/m²) e per trivani (da 1.710 €/m² a 2.980 €/m²). Anche se Caasa non è riuscita a determinare la classe energetica, ad affinare la stima hanno contribuito anche lo stato dell'immobile (di recente ristrutturazione) e la presenza di alcune caratteristiche significative come il posto auto o la disponibilità di una cantina. Per i motivi esposti l'intervallo dei valori accettabili per l'offerta è relativamente limitato.
Mercato immobiliare a Faenza
Per quanto riguarda più in generale la città di Faenza, sono presenti al momento circa mille annunci per
appartamenti in vendita (quasi il 20% dell'intera provincia)
e il maggior numero di annunci per questa tipologia sono relativi proprio alla zona di Centro Storico.
Per quanto riguarda la richiesta media in zona Centro Storico, dove sorge l'appartamento (pressi Via Oriani), essa è pari a circa
2.410 €/m² per appartamenti in vendita.
Per quanto riguarda la dinamica dei prezzi, negli ultimi 6 mesi i prezzi medi in tutta la città per appartamenti in vendita sono
in forte aumento (+13,24%).
NOVITÀ Il risultato che vedi dipende dai dati che siamo riusciti ad estrarre dall'annuncio: ottieni una stima più accuranta di questo immobile, inserendo dati più precisi.
N.B. L'Opinione di Caasa® è un servizio sperimentale realizzato tramite tecniche di Intelligenza Artificiale, fornito senza alcuna garanzia di correttezza e completezza. Leggi il disclaimer o segnalaci un problema.
IMMAGINI
IN SINTESI
PROPOSTO DA:
IL LABIRINTO IMMOBILIARE DI BRUNETTI MARIA CRISTINA SNC
CORSO MATTEOTTI,22, Faenza (RA)
DESCRIZIONE
di recente ristrutturazione con posto auto con cantina di recente ristrutturazione edificio storico con cortile
Faenza, posizione strategica: vicino alla stazione, ai servizi e al centro cittadino. Prossima ristrutturazione di una splendida palazzina storica, EX FABBRICA MINARDI, all’angolo tra via Oriani e via Salvolini dove proponiamo SEI SOLUZIONI di altissimo livello. Tra le proposte, un TRILOCALE AL PIANO TERRA SVILUPPATO TUTTO SU DI UN PIANO. L' unità si compone da INGRESSO su SOGGIORNO con Patio Privato, CUCINA separata, disimpegno notte, ampia CAMERA SINGOLA, CAMERA MATRIMONIALE entrambe in affaccio alla CORTE INTERNA, bagno finestrato. Anche in questa unità la pianta è funzionale e razionale, favorendo una distribuzione pratica e fluida degli ambienti. Le AMPIE FINESTRE, caratteristiche degli edifici storici, valorizzano gli spazi e garantiscono ambienti luminosi. La proprietà include anche una comoda CANTINA AL PIANO INTERRATO. Il capitolato prevede finiture moderne di livello, che si integrano armoniosamente con il carattere storico dell’edificio grazie a materiali scelti con cura. Possibilità di acquisto POSTI AUTO situati INTERNAMENTE ALLA CORTE. Immagini di rendering. Contattaci per ulteriori dettagli, planimetrie e per scegliere insieme le finiture del capitolato. Rif. Unità A4




