Valutazione immobiliare indipendente, accurata e gratuita
L'Opinione di Caasa® per l'appartamento in vendita a Faenza a 260.000 € (cod.65216744)
Secondo Caasa, per l'appartamento in vendita a Faenza, la richiesta di 260.000 € è significativamente svantaggiosa rispetto agli annunci simili.
Analisi immobiliare
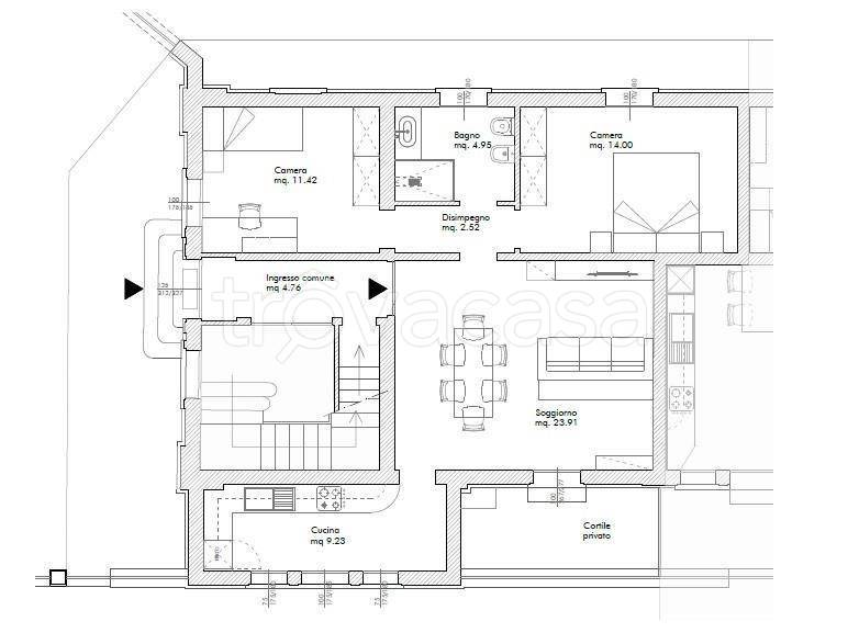
L'appartamento è proposto in vendita (da GARONI IMMOBILIARE) a
260.000 € per una
superficie commerciale di
86 m² e quindi ad un prezzo per metro quadrato pari a
3023 €/m²
.
Questo valore
è significativamente più alto di quello stimato da Caasa per immobili in vendita simili per tipologia e caratteristiche, che è compreso tra
2.262 €/m² e
2.536 €/m².
E' stato possibile utilizzare in raffronto i soli valori medi cittadini per appartamenti (da 1.635 €/m² a 2.945 €/m²) e per quadrivani (da 1.675 €/m² a 3.020 €/m²). Caasa non è stata infatti in grado di determinare in modo affidabile la posizione né la classe energetica dell'immobile. Ad affinare la stima ha contribuito però anche la presenza di alcune caratteristiche significative come la disponibilità di una cantina o il posto auto. In virtù di queste considerazioni l'intervallo dei valori considerati accettabili per l'offerta economica è necessariamente adeguatamente ampio.
Mercato immobiliare a Faenza
Per quanto riguarda più in generale la città di Faenza, sono presenti al momento circa mille annunci per
appartamenti in vendita (quasi il 20% dell'intera provincia)
e il maggior numero di annunci per questa tipologia sono relativi alla zona di Centro Storico.
Per quanto riguarda la dinamica dei prezzi, negli ultimi 6 mesi i prezzi medi in tutta la città per appartamenti in vendita sono
in forte aumento (+22,89%).
NOVITÀ Il risultato che vedi dipende dai dati che siamo riusciti ad estrarre dall'annuncio: ottieni una stima più accuranta di questo immobile, inserendo dati più precisi.
N.B. L'Opinione di Caasa® è un servizio sperimentale realizzato tramite tecniche di Intelligenza Artificiale, fornito senza alcuna garanzia di correttezza e completezza. Leggi il disclaimer o segnalaci un problema.
