Valutazione immobiliare indipendente, accurata e gratuita
L'Opinione di Caasa® per l'appartamento in vendita a Faenza a 281.000 € (cod.6503f771)
Secondo Caasa, per l'appartamento in vendita a Faenza, la richiesta di 281.000 € è leggermente vantaggiosa rispetto agli annunci simili.
Analisi immobiliare
L'appartamento, situato nella zona OMI D4, è proposto in vendita (da IL LABIRINTO IMMOBILIARE DI BRUNETTI MARIA CRISTINA SNC) a
281.000 € per una
superficie commerciale di
120 m² e quindi ad un prezzo per metro quadrato pari a
2341 €/m²
.
Tale prezzo
è di poco inferiore a quello stimato da Caasa per immobili in vendita simili per tipologia e caratteristiche e localizzati nella stessa zona OMI, che è compreso tra
2.426 €/m² e
2.558 €/m².
Grazie alla conoscenza con buona approssimazione della localizzazione dell'immobile, è stato possibile utilizzare come raffronto i dati medi elaborati esattamente nella zona OMI di appertenenza (ZONA PERIFERICA RESIDENZIALE). Anche se Caasa non è riuscita a determinare la classe energetica, ad affinare la stima ha contribuito anche la presenza di alcune caratteristiche significative come il garage, la presenza dell'ascensore o la disponibilità di una cantina. Per queste considerazioni i valori accettabili per l'offerta costituiscono un intervallo relativamente limitato.
Mercato immobiliare a Faenza
Per quanto riguarda più in generale la città di Faenza, sono presenti al momento oltre 500 annunci per
appartamenti in vendita (quasi il 20% dell'intera provincia)
e il maggior numero di annunci per questa tipologia sono relativi alla zona di Centro Storico.
Relativamente alla dinamica dei prezzi, possiamo dire che negli ultimi 6 mesi i prezzi medi in tutta la città per appartamenti in vendita sono
in forte aumento (+22,89%).
NOVITÀ Il risultato che vedi dipende dai dati che siamo riusciti ad estrarre dall'annuncio: ottieni una stima più accuranta di questo immobile, inserendo dati più precisi.
N.B. L'Opinione di Caasa® è un servizio sperimentale realizzato tramite tecniche di Intelligenza Artificiale, fornito senza alcuna garanzia di correttezza e completezza. Leggi il disclaimer o segnalaci un problema.
IMMAGINI
IN SINTESI
PROPOSTO DA:
IL LABIRINTO IMMOBILIARE DI BRUNETTI MARIA CRISTINA SNC
CORSO MATTEOTTI,22, Faenza (RA)
DESCRIZIONE
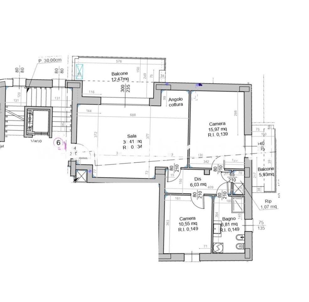
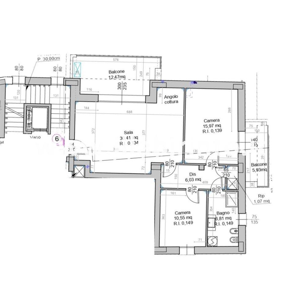
con posto auto con garage con cantina con terrazza con termocondizionamento con balcone con ascensore
FAENZA ZONA VALLE - NUOVO COMPLESSO "LIVING SAN MARCO" Nelle vicinanze del Conad La Filanda, questo innovativo complesso immobiliare offre un’eccellente combinazione di comfort, modernità e funzionalità. Composto da 11 eleganti abitazioni e 2 unità commerciali, il complesso si distingue per le sue finiture di pregio ed impianti all’avanguardia. Il TRILOCALE che proponiamo è collocato al SECONDO PIANO servito da ASCENSORE, composto da una spaziosa zona giorno con CUCINA A VISTA entrambi affacciati su un TERRAZZO di 13 mq. che garantisce luminosità in tutta l'area living. Il disimpegno notte conduce alle DUE CAMERE da letto, di cui la matrimoniale con Balcone esclusivo, al BAGNO FINESTRATO ed ad un piccolo ripostiglio. Completano la proprietà una CANTINA ed un GARAGE di 17 mq al piano sottostrada. POSSIBILITA' DI RICAVARE SECONDO BAGNO. CAPITOLATO PERSONALIZZABILE IMPIANTI AUTONOMI e GAS FREE PANNELLI FOTOVOLTAICI CON POTENZA 2 KW POMPA DI CALORE CON RISCALDAMENTO A PAVIMENTO Rif. SOLUZIONE A6

