Valutazione immobiliare indipendente, accurata e gratuita
Casa indipendente in vendita a Faenza (cod.64993ba4)
Caasa non ha sufficienti informazioni per commentare la casa indipendente in vendita a Faenza - 64993ba4.
Analisi immobiliare
I dati in posseso di Caasa per quest'immobile sono insufficienti, inaffidabili o contraddittori per proporre un'analisi attendibile.
Mercato immobiliare a Faenza
Per quanto riguarda più in generale la città di Faenza, sono presenti al momento oltre 500 annunci per
case indipendenti in vendita (meno del 10% dell'intera provincia)
e il maggior numero di annunci per questa tipologia sono relativi alla zona di Centro Storico.
Per quanto riguarda la dinamica dei prezzi, negli ultimi 6 mesi i prezzi medi in tutta la città per case indipendenti in vendita sono
in sostanziale aumento (+5,49%).
NOVITÀ Il risultato che vedi dipende dai dati che siamo riusciti ad estrarre dall'annuncio: ottieni una stima più accuranta di questo immobile, inserendo dati più precisi.
N.B. L'Opinione di Caasa® è un servizio sperimentale realizzato tramite tecniche di Intelligenza Artificiale, fornito senza alcuna garanzia di correttezza e completezza. Leggi il disclaimer o segnalaci un problema.
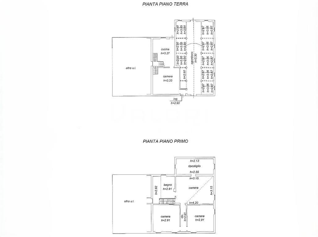
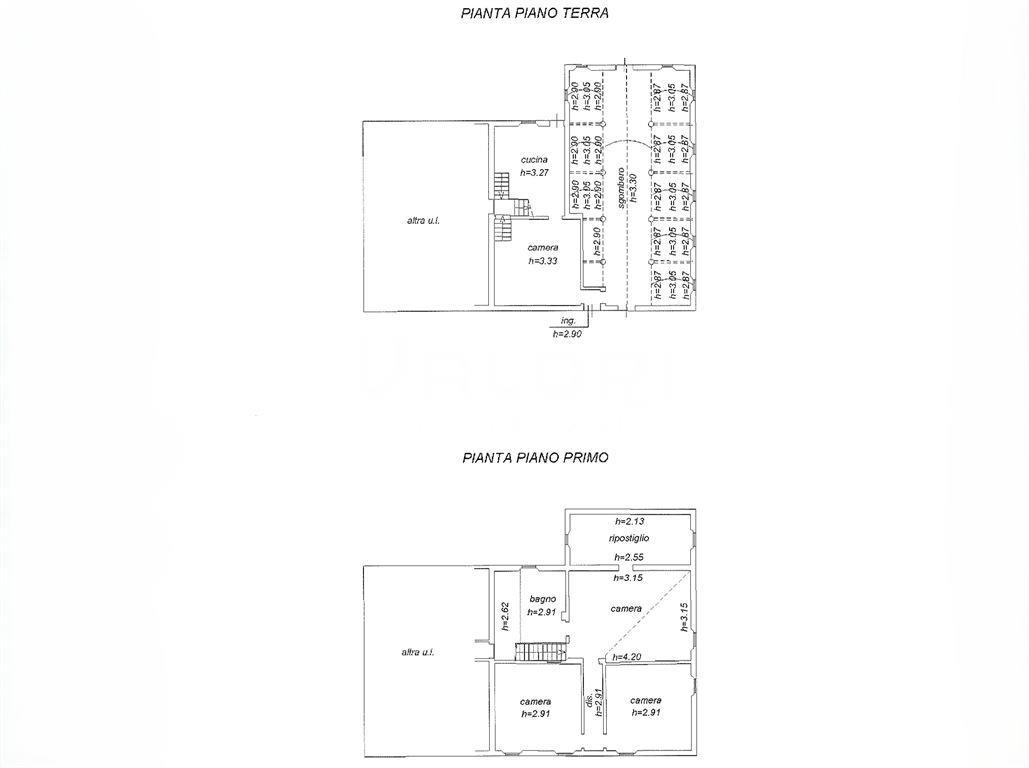
IMMAGINI
IN SINTESI
PROPOSTO DA:
VALORI IMMOBILIARI DI DEBORA RIVOLA E A. SAS
VIA G. OBERDAN, 2/B, Faenza (RA)
Verificata da Caasa®
