Valutazione immobiliare indipendente, accurata e gratuita
Appartamento in vendita a Cervia in zona Pinarella a 430.000 € (cod.655f2902)
Caasa non ha sufficienti informazioni per commentare l'appartamento in vendita a Cervia in zona Pinarella - 655f2902.
Analisi immobiliare
I dati in posseso di Caasa per quest'immobile sono insufficienti, inaffidabili o contraddittori per proporre un'analisi attendibile.
Mercato immobiliare a Cervia
Per quanto riguarda più in generale la città di Cervia, sono presenti al momento ben oltre 2.000 annunci per
appartamenti in vendita (meno di un terzo dell'intera provincia)
e il maggior numero di annunci per questa tipologia sono relativi alla zona di Milano Marittima, mentre nella zona di Pinarella è presente un numero significativamente inferiore di annunci.
La richiesta media nella zona dove sorge l'appartamento (Pinarella) è pari a
3.980 €/m², molto vicina ai valori della zona Milano Marittima che sono i più alti della città .
Possiamo inoltre considerare che in tutta la città negli ultimi 6 mesi, i prezzi per appartamenti in vendita sono
in leggero aumento (+2,49%).
NOVITÀ Il risultato che vedi dipende dai dati che siamo riusciti ad estrarre dall'annuncio: ottieni una stima più accuranta di questo immobile, inserendo dati più precisi.
N.B. L'Opinione di Caasa® è un servizio sperimentale realizzato tramite tecniche di Intelligenza Artificiale, fornito senza alcuna garanzia di correttezza e completezza. Leggi il disclaimer o segnalaci un problema.
IMMAGINI
IN SINTESI
PROPOSTO DA:
MIMA LUXURY HOUSE
DESCRIZIONE
di nuova costruzione con posto auto con terrazza con garage con termocondizionamento di nuova costruzione con angolo cottura con riscaldamento autonomo
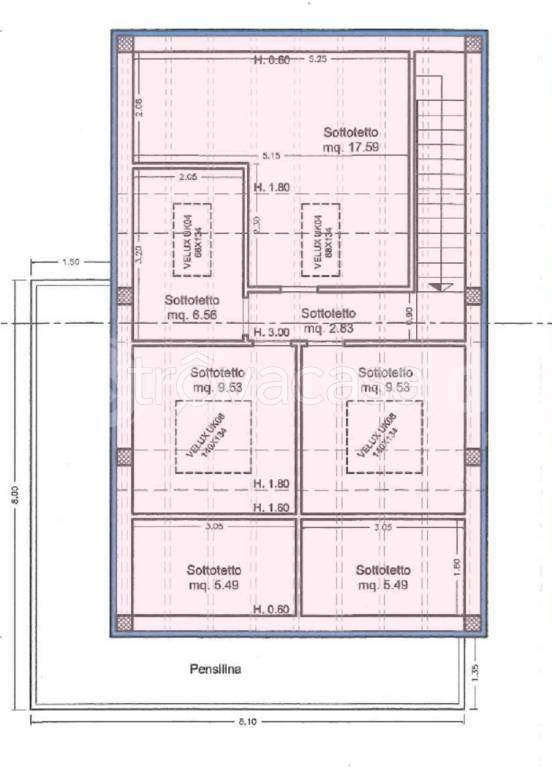
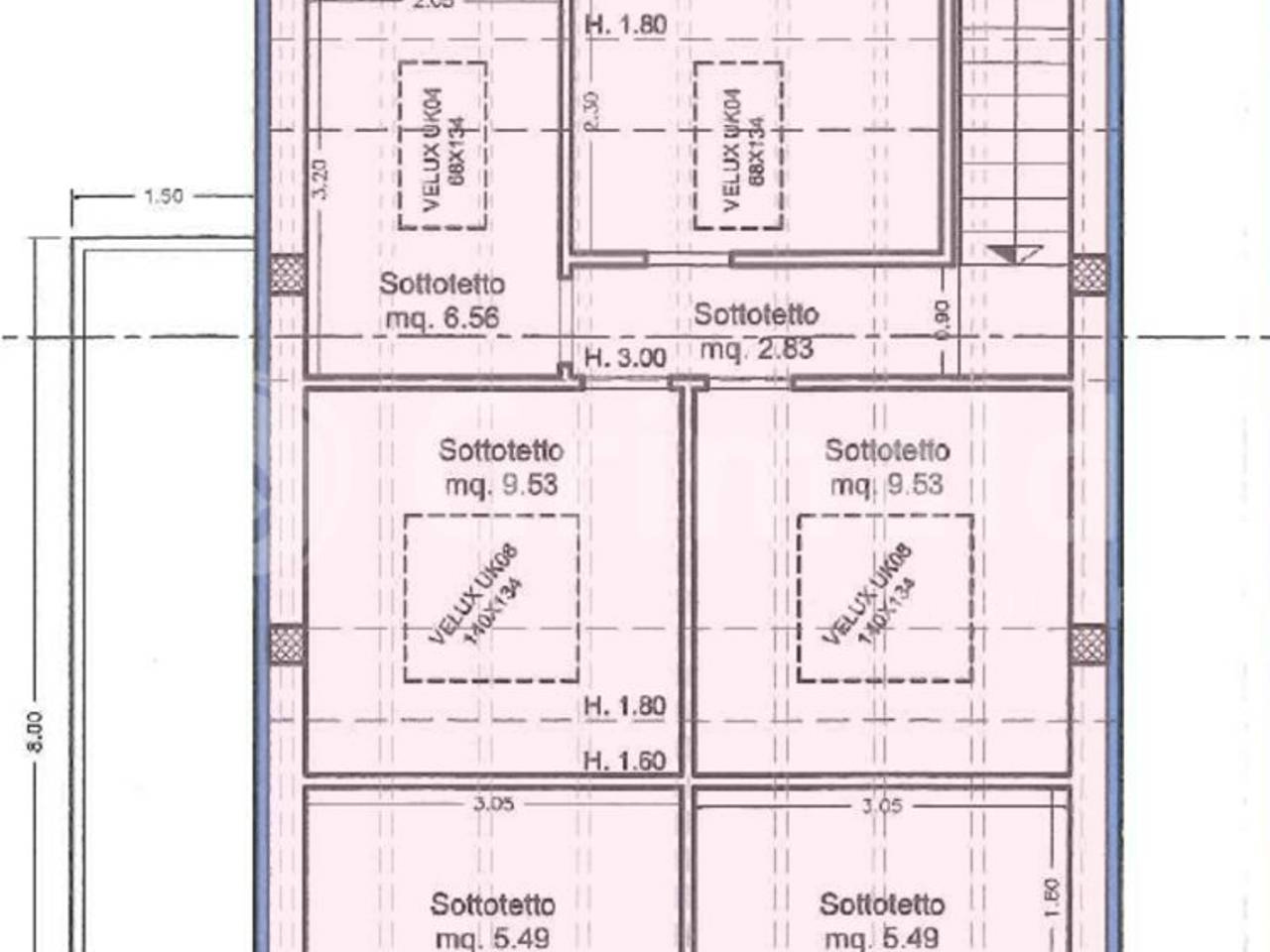
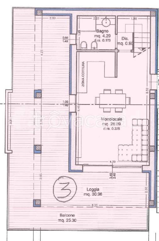
Grimaldi Immobiliare Proponiamo in vendita un'interessante soluzione abitativa sviluppata su due livelli, situata in zona centralissima e servita. Zona giorno e angolo cottura, un bagno e accesso all'Ampio Terrazzo. Mansarda: Tre camere con suggestivo tetto in legno a vista. Un posto auto di proprietà al piano terra e un Garage privato nell'interrato. Ingresso indipendente. Riscaldamento autonomo con sistema a pavimento. Cappotto Esterno. Impianto Fotovoltaico. Tetto in Legno. Porta Blindata. Per informazioni e visite: Grimaldi Immobiliare - Viale Gramsci 33, Milano Marittima Tel: 0544 1888701 Cell:389 9543151 Cell:3451773811 Email: milano.marittima@grimaldifranchising.it



