Valutazione immobiliare indipendente, accurata e gratuita
Appartamento in vendita a Cervia a 650.000 € (cod.654a8a0c)
Caasa non ha sufficienti informazioni per commentare l'appartamento in vendita a Cervia - 654a8a0c.
Analisi immobiliare
I dati in posseso di Caasa per quest'immobile sono insufficienti, inaffidabili o contraddittori per proporre un'analisi attendibile.
Mercato immobiliare a Cervia
Per quanto riguarda più in generale la città di Cervia, sono presenti al momento ben oltre 2.000 annunci per
appartamenti in vendita (meno di un terzo dell'intera provincia)
e il maggior numero di annunci per questa tipologia sono relativi alla zona di Milano Marittima.
Per quanto riguarda la dinamica dei prezzi, negli ultimi 6 mesi i prezzi medi in tutta la città per appartamenti in vendita sono
in leggero aumento (+2,49%).
NOVITÀ Il risultato che vedi dipende dai dati che siamo riusciti ad estrarre dall'annuncio: ottieni una stima più accuranta di questo immobile, inserendo dati più precisi.
N.B. L'Opinione di Caasa® è un servizio sperimentale realizzato tramite tecniche di Intelligenza Artificiale, fornito senza alcuna garanzia di correttezza e completezza. Leggi il disclaimer o segnalaci un problema.
IMMAGINI
IN SINTESI
DESCRIZIONE
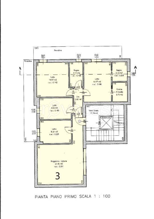
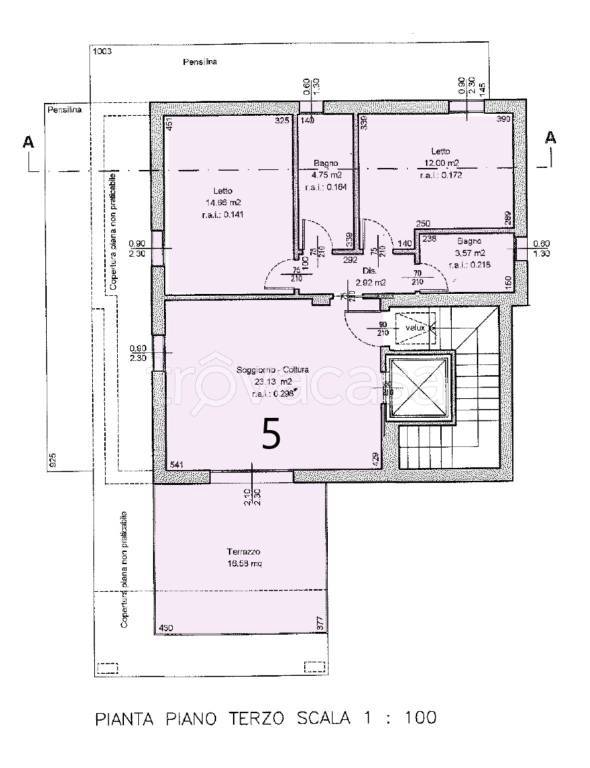
di nuova costruzione con posto auto con terrazza di nuova costruzione con angolo cottura
In posizione privilegiata, a pochi passi dal mare e a breve distanza dal centro di Cervia, proponiamo nuova palazzina di sole 5 unità abitative, situata in contesto riservato e di pregio. Il fabbricato si sviluppa su più livelli e comprende: due appartamenti al piano terra, uno al piano primo, uno al piano secondo, uno al piano terzo. Le unità sono progettate per garantire comfort e funzionalità, sono composte da: soggiorno con angolo cottura, due o tre camere da letto, uno o più bagni, terrazzi abitabili. Gli appartamenti saranno realizzati con finiture di alto livello e particolare attenzione alla qualità costruttiva e al benessere abitativo. Ogni unità è dotata di posto auto di proprietà (eventuali altre pertinenze disponibili su richiesta). Soluzione ideale sia come abitazione principale sia come residenza al mare, in una delle zone più apprezzate di Cervia, comoda ai servizi e vicinissima alla spiaggia

