Valutazione immobiliare indipendente, accurata e gratuita
L'Opinione di Caasa® per l'appartamento in vendita a Cervia in zona Pinarella a 370.000 € (cod.650637e8)
Secondo Caasa, per l'appartamento in vendita a Cervia in zona Pinarella, la richiesta di 370.000 € è significativamente vantaggiosa rispetto agli annunci simili.
Analisi immobiliare
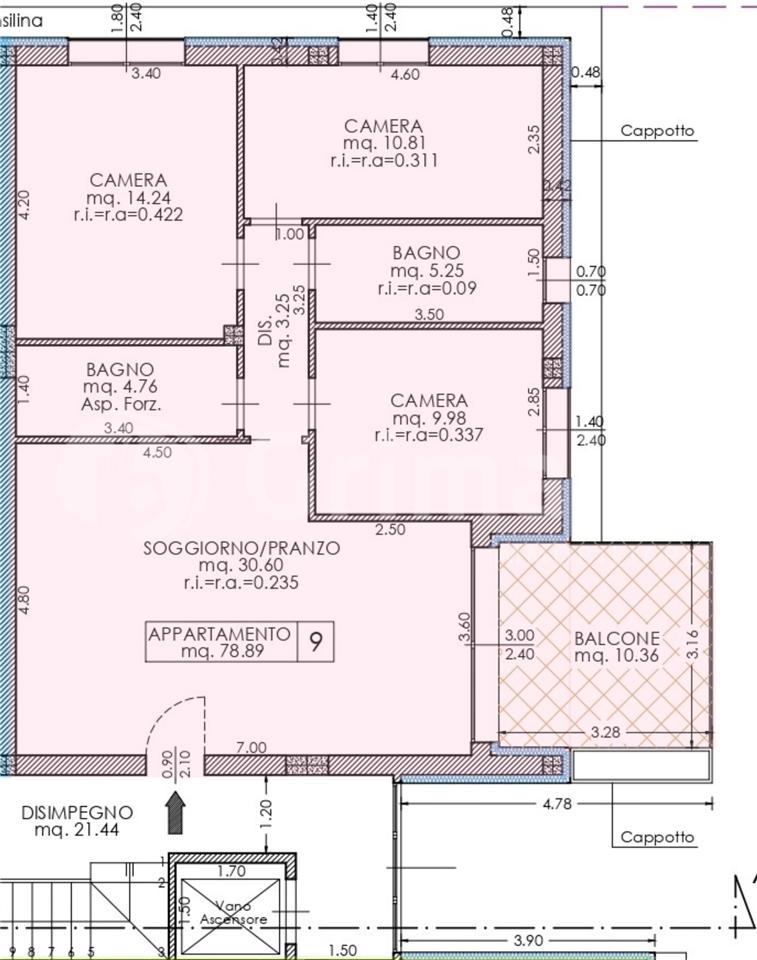
L'appartamento, situato nella zona OMI D3, è proposto in vendita a
370.000 € per una
superficie commerciale di
80 m² e quindi ad un prezzo per metro quadrato pari a
4625 €/m²
.
Questo valore
è significativamente più basso di quello stimato da Caasa per immobili in vendita simili per tipologia, caratteristiche, classe energetica e localizzati nella stessa zona OMI, che è compreso tra
5.247 €/m² e
5.548 €/m².
La conoscenza con buona approssimazione della localizzazione dell'immobile ha consentito di utilizzare come raffronto i dati medi elaborati esattamente nella zona OMI di appertenenza (PINARELLA - TAGLIATA ZONA PERIFERICA RETROBALNEARE) per appartamenti (da 3.020 €/m² a 5.155 €/m²) e per quadrivani (da 3.005 €/m² a 4.845 €/m²). Inoltre, Caasa ha potuto affinare la stima anche con la conoscenza della classe energetica (A+) oltre che dello stato dell'immobile (di nuova costruzione) e di alcune caratteristiche significative come la presenza dell'ascensore, la disponibilità di una cantina o il posto auto. Per queste considerazioni è possibile considerare un intervallo di valori accettabili per l'offerta abbastanza limitato.
Mercato immobiliare a Cervia
Per quanto riguarda più in generale la città di Cervia, sono presenti al momento ben oltre 2.000 annunci per
appartamenti in vendita (meno di un terzo dell'intera provincia)
e il maggior numero di annunci per questa tipologia sono relativi alla zona di Milano Marittima, mentre nella zona di Pinarella è presente un numero significativamente inferiore di annunci.
La richiesta media nella zona dove sorge l'appartamento (Pinarella) è pari a
3.990 €/m², molto vicina ai valori della zona Milano Marittima che sono i più alti della città .
Per quanto riguarda la dinamica dei prezzi, negli ultimi 6 mesi i prezzi medi in tutta la città per appartamenti in vendita sono
sostanzialmente stabili (+1,20%).
NOVITÀ Il risultato che vedi dipende dai dati che siamo riusciti ad estrarre dall'annuncio: ottieni una stima più accuranta di questo immobile, inserendo dati più precisi.
N.B. L'Opinione di Caasa® è un servizio sperimentale realizzato tramite tecniche di Intelligenza Artificiale, fornito senza alcuna garanzia di correttezza e completezza. Leggi il disclaimer o segnalaci un problema.
IMMAGINI
IN SINTESI
PROPOSTO DA:
MIMA LUXURY HOUSE
DESCRIZIONE
di nuova costruzione con posto auto con terrazza con termocondizionamento di nuova costruzione con angolo cottura con cantina con ascensore con riscaldamento autonomo
Grimaldi Immobiliare è entusiasta di presentare un'esclusiva opportunità di nuova costruzione nel cuore di Pinarella di Cervia: un moderno Quadrilocale situato al prestigioso Piano Secondo, sinonimo di massima luminosità e tranquillità, con ascensore. L'immobile unisce il comfort della vicinanza al mare con l'eccellenza dell'efficienza energetica. Composizione Interna (Funzionalità e Design) L'appartamento vanta una distribuzione ottimale degli spazi: Zona Giorno Open Space: Ampio soggiorno con elegante angolo cottura, pensato per massimizzare la convivialità e la luce naturale. Terrazzo Abitabile: Accessibile direttamente dalla zona giorno, rappresenta un fondamentale sfogo esterno dove godersi cene all'aperto e momenti di relax al riparo da occhi indiscreti. Zona Notte: Tre generose camere da letto, perfette per ospitare famiglie o creare spazi dedicati (studio/smart working). Servizi: Doppi bagni moderni e funzionali, un dettaglio essenziale per il comfort quotidiano. Vantaggi della Nuova Costruzione ( Questo immobile è un investimento nel futuro, garantendo un altissimo standard di vita e costi di gestione minimi: Efficienza Energetica A4: Il massimo della categoria per un notevole risparmio in bolletta e un ridotto impatto ambientale. Clima Ideale: Isolamento termico garantito dal Cappotto Esterno e comfort diffuso grazie al Riscaldamento Autonomo a Pavimento. Sostenibilità: Impianto Fotovoltaico a servizio dell'unità. Pertinenze Esclusive e Dettagli Comodità: Posto auto scoperto di proprietà esclusiva al piano terra (indispensabile a Cervia). Spazio Extra: Cantina privata. Sicurezza: Accesso protetto tramite Porta Blindata. Questa soluzione è ideale per chi cerca una residenza moderna, vicina al mare, che offra il lusso del risparmio energetico e l'indipendenza di un piano alto. Punti di forza evidenziati: Piano Secondo: Sottolineato come vantaggio (luminosità, vista, tranquillità). A4 e Vantaggi: La Classe A4 è stata collegata direttamente ai benefici per l'acquirente (risparmio in bolletta). Terra[…]


