Valutazione immobiliare indipendente, accurata e gratuita
Appartamento in vendita a Cervia in zona Milano Marittima a 280.000 € (cod.6504604a)
Caasa non ha sufficienti informazioni per commentare l'appartamento a Cervia in zona Milano Marittima - 6504604a.
Analisi immobiliare
I dati in posseso di Caasa per quest'immobile sono insufficienti, inaffidabili o contraddittori per proporre un'analisi attendibile.
Mercato immobiliare a Cervia
Per quanto riguarda più in generale la città di Cervia, sono presenti al momento ben oltre 2.000 annunci per
appartamenti in vendita (meno di un terzo dell'intera provincia)
e il maggior numero di annunci per questa tipologia sono relativi proprio alla zona di Milano Marittima.
La richiesta media nella zona dove sorge l'appartamento (Milano Marittima) è pari a
5.120 €/m² e ne fa la più pregiata della città .
Possiamo inoltre considerare che in tutta la città negli ultimi 6 mesi, i prezzi per appartamenti in vendita sono
sostanzialmente stabili (+1,20%).
NOVITÀ Il risultato che vedi dipende dai dati che siamo riusciti ad estrarre dall'annuncio: ottieni una stima più accuranta di questo immobile, inserendo dati più precisi.
N.B. L'Opinione di Caasa® è un servizio sperimentale realizzato tramite tecniche di Intelligenza Artificiale, fornito senza alcuna garanzia di correttezza e completezza. Leggi il disclaimer o segnalaci un problema.
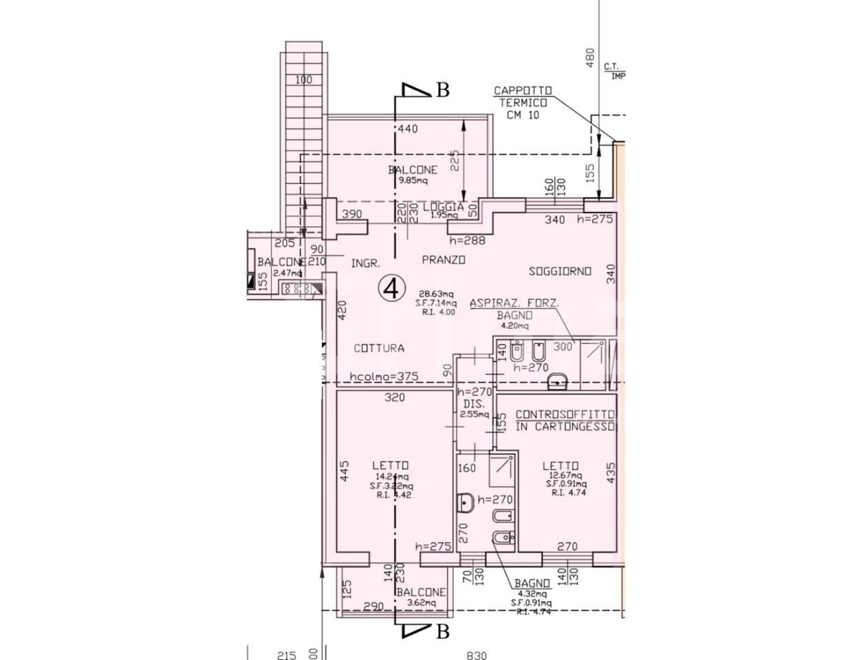
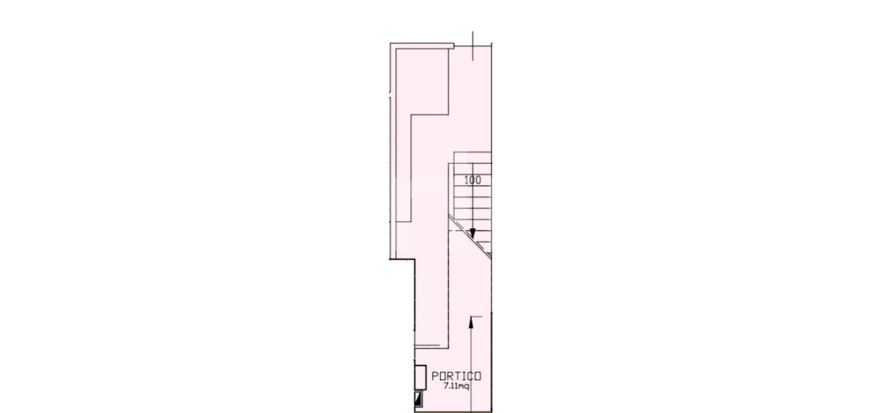
IMMAGINI
IN SINTESI
PROPOSTO DA:
MIMA LUXURY HOUSE
DESCRIZIONE
di nuova costruzione con posto auto con giardino con balcone con termocondizionamento di nuova costruzione con angolo cottura
Grimaldi Immobiliare propone una soluzione abitativa di altissimo livello in una delle zone più richieste di Tagliata di Cervia: centrale, vicina a tutti i servizi, ma estremamente tranquilla. Questo Trilocale è perfetto per chi desidera l'autonomia […]
