Valutazione immobiliare indipendente, accurata e gratuita
L'Opinione di Caasa® per l'appartamento in vendita a Cervia in zona Milano Marittima a 395.000 € (cod.6501e7c5)
Secondo Caasa, per l'appartamento a Cervia in zona Milano Marittima, la richiesta di 395.000 € è leggermente vantaggiosa rispetto agli annunci simili.
Analisi immobiliare
L'appartamento, situato nella zona OMI B5, è proposto in vendita a
395.000 € per una
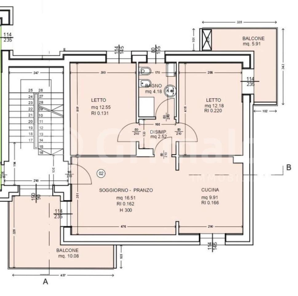
superficie commerciale di
75 m² e quindi ad un prezzo per metro quadrato pari a
5266 €/m²
.
Tale prezzo
è di poco inferiore a quello stimato da Caasa per immobili in vendita simili per tipologia, caratteristiche, classe energetica e localizzati nella stessa zona OMI, che è compreso tra
5.700 €/m² e
6.101 €/m².
La conoscenza con buona approssimazione della localizzazione dell'immobile ha consentito di utilizzare come raffronto i dati medi elaborati esattamente nella zona OMI di appertenenza (CERVIA ZONA RETROBALNEARE) per appartamenti (da 3.625 €/m² a 6.225 €/m²). Inoltre, Caasa ha potuto affinare la stima anche con la conoscenza della classe energetica (A+) oltre che di alcune caratteristiche significative come il garage o la disponibilità di una cantina. In virtù di queste considerazioni i valori accettabili per l'offerta costituiscono un intervallo abbastanza limitato.
Mercato immobiliare a Cervia
Per quanto riguarda più in generale la città di Cervia, sono presenti al momento ben oltre 2.000 annunci per
appartamenti in vendita (meno di un terzo dell'intera provincia)
e il maggior numero di annunci per questa tipologia sono relativi proprio alla zona di Milano Marittima.
La richiesta media nella zona dove sorge l'appartamento (Milano Marittima) è pari a
5.110 €/m² e ne fa la più pregiata della città .
Relativamente alla dinamica dei prezzi, possiamo dire che negli ultimi 6 mesi i prezzi medi in tutta la città per appartamenti in vendita sono
sostanzialmente stabili (+1,20%).
NOVITÀ Il risultato che vedi dipende dai dati che siamo riusciti ad estrarre dall'annuncio: ottieni una stima più accuranta di questo immobile, inserendo dati più precisi.
N.B. L'Opinione di Caasa® è un servizio sperimentale realizzato tramite tecniche di Intelligenza Artificiale, fornito senza alcuna garanzia di correttezza e completezza. Leggi il disclaimer o segnalaci un problema.
IMMAGINI
IN SINTESI
PROPOSTO DA:
MIMA LUXURY HOUSE
DESCRIZIONE
con posto auto con terrazza con garage con balcone con termocondizionamento con cantina con riscaldamento autonomo
Grimaldi Immobiliare è lieta di proporre in vendita a Cervia un moderno appartamento, sinonimo di comfort abitativo e risparmio energetico. Via Monte Rosa, a pochi passi dal centro e a 150 m dal Canale di Cervia, in zona tranquilla, ma allo stesso te […]
