Valutazione immobiliare indipendente, accurata e gratuita
L'Opinione di Caasa® per la casa indipendente in vendita a Cervia in zona Milano Marittima a 440.000 € (cod.64fd91e2)
Secondo Caasa, per la casa indipendente a Cervia in zona Milano Marittima, la richiesta di 440.000 € è significativamente vantaggiosa rispetto agli annunci simili.
Analisi immobiliare
La casa indipendente, situata nella zona OMI D2, è proposta in vendita (da AGENZIA ZOFFOLI) a
440.000 € per una
superficie commerciale di
128 m² e quindi ad un prezzo per metro quadrato pari a
3437 €/m²
.
Questo prezzo
è più vantaggioso di quello stimato da Caasa per immobili in vendita simili per tipologia e caratteristiche e localizzati nella stessa zona OMI, che è compreso tra
3.905 €/m² e
4.244 €/m².
Grazie alla conoscenza con buona approssimazione della localizzazione dell'immobile, è stato possibile utilizzare come raffronto i dati medi elaborati esattamente nella zona OMI di appertenenza (CERVIA ZONA TERME E MALVA) per case indipendenti (da 3.085 €/m² a 6.065 €/m²) e per ville (da 2.930 €/m² a 6.005 €/m²). Anche se Caasa non è riuscita a determinare la classe energetica, ad affinare la stima ha contribuito anche la presenza di alcune caratteristiche significative come il posto auto. Per queste considerazioni l'intervallo dei valori accettabili per l'offerta è relativamente limitato.
Mercato immobiliare a Cervia
Per quanto riguarda più in generale la città di Cervia, sono presenti al momento ben oltre mille annunci per
case indipendenti in vendita (meno di un terzo dell'intera provincia)
e il maggior numero di annunci per questa tipologia sono relativi proprio alla zona di Milano Marittima.
La richiesta media nella zona dove sorge la casa indipendente (Milano Marittima) è pari a
4.615 €/m² e ne fa la più pregiata della città .
Possiamo inoltre considerare che in tutta la città negli ultimi 6 mesi, i prezzi per case indipendenti in vendita sono
in debole aumento (+2,19%).
NOVITÀ Il risultato che vedi dipende dai dati che siamo riusciti ad estrarre dall'annuncio: ottieni una stima più accuranta di questo immobile, inserendo dati più precisi.
N.B. L'Opinione di Caasa® è un servizio sperimentale realizzato tramite tecniche di Intelligenza Artificiale, fornito senza alcuna garanzia di correttezza e completezza. Leggi il disclaimer o segnalaci un problema.
IMMAGINI
IN SINTESI
DESCRIZIONE
con posto auto con giardino con termocondizionamento con angolo cottura
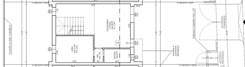
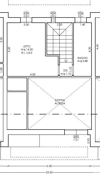
CERVIA - VILLA A SCHIERA CON GIARDINO. In zona residenziale, si vende villetta a schiera centrale, di nuova realizzazione, sviluppata su 2 livelli: al piano terra ampio giardino sul fronte, ingresso su ampio e luminoso soggiorno, con doppia altezza, con angolo cottura e accesso allo spazio esterno sul retro, camera doppia e bagno. Al piano superiore camera matrimoniale, bagno e ulteriore locale utilizzabile come studio-cabina armadio. L'immobile è dotato di giardino privato, posto auto, impianti autonomi, riscaldamento a pavimento, A/C, pannelli fotovoltaici. Prezzo richiesto: € 440.000 - PER INFO: EMAIL: info@agenziazoffoli.it, TEL. 0544-995261, viale Matteotti 90, Milano Marittima




