Valutazione immobiliare indipendente, accurata e gratuita
L'Opinione di Caasa® per l'appartamento in vendita a Cervia in zona Milano Marittima a 340.000 € (cod.64fb07d4)
Secondo Caasa, per l'appartamento a Cervia in zona Milano Marittima, la richiesta di 340.000 € è significativamente vantaggiosa rispetto agli annunci simili.
Analisi immobiliare
L'appartamento, situato nella zona OMI B5, è proposto in vendita a
340.000 € per una
superficie commerciale di
80 m² e quindi ad un prezzo per metro quadrato pari a
4250 €/m²
.
Questo valore
è significativamente più basso di quello stimato da Caasa per immobili in vendita simili per tipologia e caratteristiche e localizzati nella stessa zona OMI, che è compreso tra
4.951 €/m² e
5.354 €/m².
Grazie alla conoscenza con buona approssimazione della localizzazione dell'immobile, è stato possibile utilizzare come raffronto i dati medi elaborati esattamente nella zona OMI di appertenenza (CERVIA ZONA RETROBALNEARE) per appartamenti (da 3.675 €/m² a 6.200 €/m²). Anche se Caasa non è riuscita a determinare la classe energetica, ad affinare la stima hanno contribuito anche lo stato dell'immobile (di nuova costruzione) e la presenza di alcune caratteristiche significative come la disponibilità di una cantina. In virtù di queste considerazioni l'intervallo dei valori accettabili per l'offerta è relativamente limitato.
Mercato immobiliare a Cervia
Per quanto riguarda più in generale la città di Cervia, sono presenti al momento ben oltre 2.000 annunci per
appartamenti in vendita (meno di un terzo dell'intera provincia)
e il maggior numero di annunci per questa tipologia sono relativi proprio alla zona di Milano Marittima.
La richiesta media nella zona dove sorge l'appartamento (Milano Marittima) è pari a
5.105 €/m² e ne fa la più pregiata della città .
Per quanto riguarda la dinamica dei prezzi, negli ultimi 6 mesi i prezzi medi in tutta la città per appartamenti in vendita sono
sostanzialmente stabili (+1,20%).
NOVITÀ Il risultato che vedi dipende dai dati che siamo riusciti ad estrarre dall'annuncio: ottieni una stima più accuranta di questo immobile, inserendo dati più precisi.
N.B. L'Opinione di Caasa® è un servizio sperimentale realizzato tramite tecniche di Intelligenza Artificiale, fornito senza alcuna garanzia di correttezza e completezza. Leggi il disclaimer o segnalaci un problema.
IMMAGINI
IN SINTESI
PROPOSTO DA:
MIMA LUXURY HOUSE
DESCRIZIONE
di nuova costruzione di nuova costruzione con angolo cottura con cantina
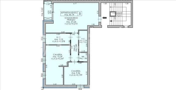
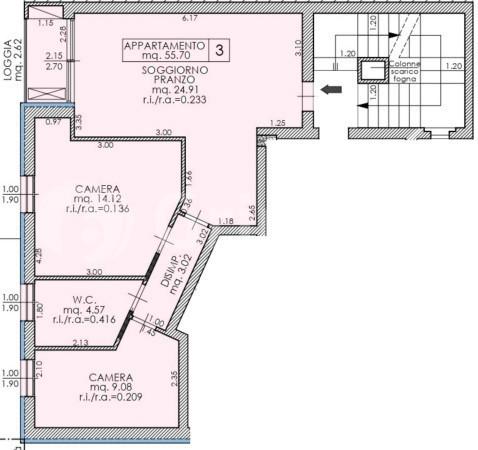
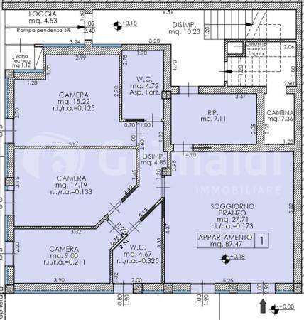
Nuova costruzione nel centro storico di Cervia,affiliata Grimaldi Immobiliare, presenta una straordinaria opportunità nel cuore del centro storico di Cervia, in via XX Settembre. Una nuova palazzina di sole 5 unità abitative è in fase di realizzazione, offrendo un connubio perfetto tra modernità e tradizione. Gli appartamenti sono pensati per chi desidera vivere in una zona esclusiva e ricca di fascino, a pochi passi dai principali servizi e dalle bellezze della città. Dettagli degli appartamenti disponibili Attualmente sono disponibili due appartamenti, entrambi dotati di finiture moderne e spazi ben distribuiti. Appartamento 1 (€ 450.000): Un ampio e luminoso appartamento al piano terra. L'unità è composta da un soggiorno con angolo cottura, tre camere da letto, due bagni e un ripostiglio. L'ideale per famiglie o per chi necessita di spazi generosi. C'è anche la possibilità di acquistare una cantina separatamente. Appartamento 3 (€ 340.000): Situato al piano primo, questo appartamento è composto da un soggiorno con angolo cottura, due camere da letto, un bagno e un ripostiglio. Un'occasione perfetta per chi cerca una soluzione comoda e funzionale nel centro storico. È possibile acquistare una cantina a parte. Gli appartamenti 2, 4 e 5 sono già stati venduti, a conferma dell'alta richiesta per questa tipologia di immobili in una posizione così strategica. Per maggiori dettagli, planimetrie o per fissare un appuntamento, non esitate a contattare: Viale Gramsci 33,MI.MA Tel:05441888701 Email: milano.marittima@grimaldifranchising.it

