Valutazione immobiliare indipendente, accurata e gratuita
Casa indipendente in vendita a Cervia in zona Pinarella a 609.000 € (cod.64f5514e)
Caasa non ha sufficienti informazioni per commentare la casa indipendente a Cervia in zona Pinarella - 64f5514e.
Analisi immobiliare
I dati in posseso di Caasa per quest'immobile sono insufficienti, inaffidabili o contraddittori per proporre un'analisi attendibile.
Mercato immobiliare a Cervia
Per quanto riguarda più in generale la città di Cervia, sono presenti al momento ben oltre mille annunci per
case indipendenti in vendita (meno di un terzo dell'intera provincia)
e il maggior numero di annunci per questa tipologia sono relativi alla zona di Milano Marittima, mentre nella zona di Pinarella è presente un numero significativamente inferiore di annunci.
La richiesta media nella zona dove sorge la casa indipendente (Pinarella) è pari a
3.680 €/m², molto vicina ai valori della zona Milano Marittima che sono i più alti della città .
Possiamo inoltre considerare che in tutta la città negli ultimi 6 mesi, i prezzi per case indipendenti in vendita sono
sostanzialmente stabili (-0,03%).
NOVITÀ Il risultato che vedi dipende dai dati che siamo riusciti ad estrarre dall'annuncio: ottieni una stima più accuranta di questo immobile, inserendo dati più precisi.
N.B. L'Opinione di Caasa® è un servizio sperimentale realizzato tramite tecniche di Intelligenza Artificiale, fornito senza alcuna garanzia di correttezza e completezza. Leggi il disclaimer o segnalaci un problema.
IMMAGINI
IN SINTESI
PROPOSTO DA:
Le Note di Casa
DESCRIZIONE
di nuova costruzione con posto auto con garage con giardino con balcone con termocondizionamento con angolo cottura di nuova costruzione per vacanza
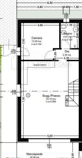
Villa di Testa – Moderna, Indipendente e a 600 metri dal Mare In una zona residenziale tranquilla e verde di Pinarella di Cervia, a soli 600 metri dalla spiaggia, proponiamo in vendita la prima villa di testa all'interno di un elegante complesso di nuova costruzione. Questa soluzione si distingue per la sua posizione angolare, che garantisce massima privacy, tripla esposizione solare e un ampio giardino privato ideale per pranzi all'aperto, relax e momenti in famiglia. Composta da: Zona giorno con angolo cottura a doppio volume, luminosa e con accesso diretto al giardino 2 camere da letto (una al piano terra e una matrimoniale al piano superiore) 2 bagni finestrati, uno per piano Possibilità di soppalco 2 posti auto privati inclusi all'interno della proprietà Ampio giardino privato su due lati Ingresso indipendente, con accesso da corte comune Dotazioni esclusive: – altissima efficienza Riscaldamento a pavimento con pompa di calore Pannelli fotovoltaici da 2 kW dedicati Predisposizione aria condizionata Infissi in PVC con avvolgibili elettrici, portone blindato, videocitofono Predisposizione impianto satellitare e irrigazione in giardino Via Pinarella – posizione strategica, vicina al mare ma fuori dal caos. Servizi IMPIANTI A NORMA PREDISPOSIZIONE ARIA CONDIZIONATA LOGGE E/O BALCONI PANELLI FOTOVOLTAICI RISCALDAMENTO A PAVIMENTO POMPA DI CALORE TV - TV.SAT VICINO ALLA PINETA CASA VACANZA VICINO AL MARE CAMERA MATRIMONIALE CAMERA MATRIMONIALE IN MANSARDA CAMERA SINGOLA CLASSE ENERGETICA A4



