Valutazione immobiliare indipendente, accurata e gratuita
Appartamento in vendita a Cervia in zona Milano Marittima (cod.64f07775)
Caasa non ha sufficienti informazioni per commentare l'appartamento a Cervia in zona Milano Marittima - 64f07775.
Analisi immobiliare
I dati in posseso di Caasa per quest'immobile sono insufficienti, inaffidabili o contraddittori per proporre un'analisi attendibile.
Mercato immobiliare a Cervia
Per quanto riguarda più in generale la città di Cervia, sono presenti al momento ben oltre 2.000 annunci per
appartamenti in vendita (meno di un terzo dell'intera provincia)
e il maggior numero di annunci per questa tipologia sono relativi proprio alla zona di Milano Marittima.
La richiesta media nella zona dove sorge l'appartamento (Milano Marittima) è pari a
5.155 €/m² e ne fa la più pregiata della città .
Relativamente alla dinamica dei prezzi, possiamo dire che negli ultimi 6 mesi i prezzi medi in tutta la città per appartamenti in vendita sono
sostanzialmente stabili (+1,20%).
NOVITÀ Il risultato che vedi dipende dai dati che siamo riusciti ad estrarre dall'annuncio: ottieni una stima più accuranta di questo immobile, inserendo dati più precisi.
N.B. L'Opinione di Caasa® è un servizio sperimentale realizzato tramite tecniche di Intelligenza Artificiale, fornito senza alcuna garanzia di correttezza e completezza. Leggi il disclaimer o segnalaci un problema.
IMMAGINI
IN SINTESI
PROPOSTO DA:
SIAP96 srls
DESCRIZIONE
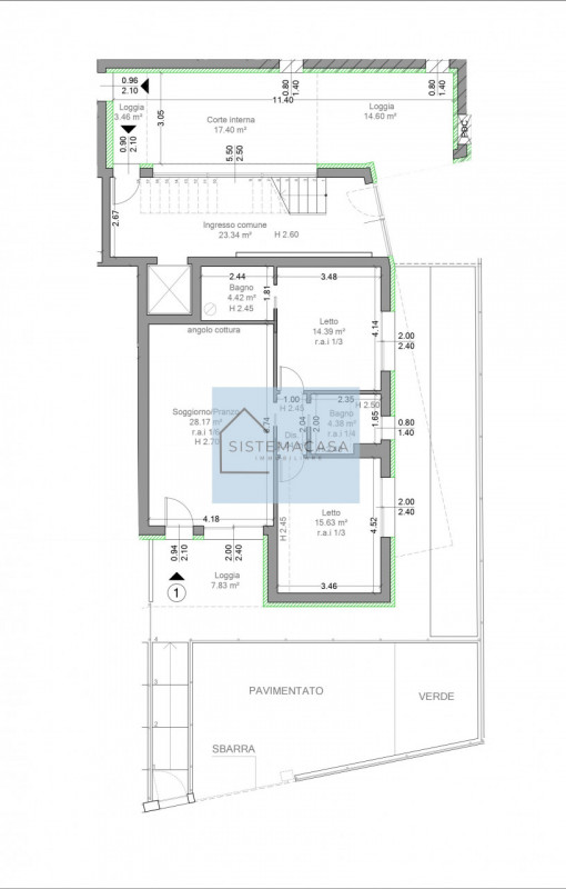
di nuova costruzione con posto auto con giardino di nuova costruzione con termocondizionamento con angolo cottura con cantina con ascensore con riscaldamento autonomo
Nella zona esclusiva tra Cervia e Milano Marittima, proponiamo ampio trilocale di più di 110 mq commerciali, nuovo in classe A4, con posto auto assegnato e cantina privata. L'immobile sorge al piano terra in un complesso residenziale di lusso in classe A4, dotato di ascensore e creato rispettando i più alti standard costruttivi per efficienza energetica, qualità dei materiali e ricercatezza delle finiture. La composizione dei locali è la seguente: - Ingresso tramite portone blindato antieffrazione, funzione di insonorizzazione e telaio in lamiera d'acciaio prefilmata - Zona living con cucina a vista ed ampia vetrata di accesso alla zona esterna - Disimpegno e doppia camera matrimoniale in gres porcellanato o, a scelta, pavimento in legno di rovere a listoni con formato e colore a scelta - Doppio bagno con rivestimenti su misura, sanitari sospesi e lavandino di design, termoarredo e piatto doccia custom con funzione punti luce e cromoterapia - Zona esterna pavimentata/verde. Illuminazione tramite punti luce di design, presa per corrente e rubinetto per acqua - Posto auto assegnato con sbarra / dissuasore carrabile automatizzato - Cantina situata al piano terra L'immobile riporta i più alti standard di finiture disponibili sul mercato, tra le quali: - Cappotto esterno termico in grafite e finiture interne ed esterne in intonaco di alto pregio - Impermeabilizzazioni con massimo livello di isolamento, qualità di materiali e messa in posa per eccellente affidabilità - Rivestimenti facciate in materiali compositi di pregio effetto legno con sottostruttura in alluminio - Realizzazione soglie e banchine in marmo pregiato nero lucidato in abbinamento ai dettagli degli infissi esterni ed agli elementi di design delle facciate - Vano scale e relativi corridoi in gres porcellanato con illuminazione di design a led e profili in alluminio e vetro - Impianto fotovoltaico con predisposizione tramite tubo corrugato di colonnina di ricarica per auto elettrica nel proprio posto auto - Infissi in lega di alluminio a taglio t[…]







